


































ЖК «1-й Ясеневский» строят в Коммунарке возле Троицкого лесопарка. Ближайшая станция метро — «Корниловская». Девелопер проекта — ГК ФСК, основанная в 2005 году.
Надежность застройщика
Проекты компании ФСК представлены в Москве и Подмосковье, Санкт-Петербурге и Ленинградской области и других регионах России. В портфеле девелопера — около 17 млн кв. м недвижимости, более 1 млн кв. м из них введены в эксплуатацию в 2024 году. Проекты комфорт-класса реализуются под брендом «1-й ДСК».
Расположение и транспортная доступность проекта
Жилой комплекс «1-й Ясеневский» расположен в районе Коммунарка вблизи деревни Мамыри и Троицкого лесопарка. До станции метро «Корниловская» — около 20 минут пешком. Рядом с новостройкой есть автобусная остановка, общественный транспорт курсирует до станции метро «Теплый Стан». Для автомобилей есть выезд на Калужское шоссе и далее на МКАД. Дорога до ТТК займет 30 минут, до Кремля — 40 минут, без учета пробок.
Экология и особенности района
«1-й Ясеневский» возводится на территории поселения Мосрентген, которое с 2024 году относится к району Коммунарка. Экологическая обстановка в поселении Мосрентген не безупречная для ТиНАО: по границам проходят МКАД, Киевское и Калужское шоссе. Кроме того, опасение вызывает завод, чьим именем названо поселение, — вредные отходы давно закопаны, но они еще могут «фонить». Самая крупная зеленая зона — Троицкий лесопарк, по соседству расположены Тропаревский лесопарк и Хованское Северное кладбище.
Что касается ЖК «Первый Ясеневский», то он удачно расположен вблизи Троицкого леса, который отделяет его от МКАД и попутно обеспечивает живописные виды из окон.
Архитектура и благоустройство
В составе жилого комплекса строят три корпуса высотой 5–18 этажей, они будут сданы в эксплуатацию одновременно — в III квартале 2026 года. Здания будут выполнены в минималистичном стиле, для облицовки фасадов выбрана клинкерная плитка светлых и коричневых оттенков.
Территория комплекса разделена под разные сценарии досуга. Застройщик предусмотрел прогулочные маршруты, детские площадки для разных возрастов и отдельную игровую зону, спортивные площадки, беговые и велосипедные дорожки. Центром притяжения станет городская площадь. Изюминкой проекта станут фруктовые деревья во дворах и маленькие огороды.
Планировки и типы помещений
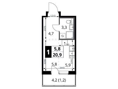
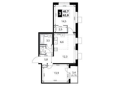
Площадь квартир в «1-м Ясеневском» варьируется от 19,6 до 100,3 кв. м, жилье продается без отделки, с предчистовой или чистовой отделкой.
В первой половине декабря 2025 года для покупки доступны 327 квартир площадью от 20,9 до 82,5 кв. м. Есть планировки с кухней-гостиной, гостевыми санузлами, гардеробными, балконами или лоджиями. Цены — от 12,2 млн рублей за студию с предчистовой отделкой площадью 21,8 кв. м. Купить квартиру предлагается в ипотеку или по специальным программам от застройщика.
Для сравнения: ближайшая новостройка — ЖК «Форевиль» от 3S Group (Три Эс Груп). Это бизнес-класс, жилой комплекс строят в окружении леса. Передача ключей запланирована на первое полугодие 2027 года. Цены на квартиры — от 8,4 млн рублей (с учетом скидки) за 21-метровую студию без отделки.
Инфраструктура и удобства для жителей
Первые этажи корпусов займут коммерческие помещения, а на подземных этажах расположатся кладовки. Для автомобилей предусмотрен многоуровневый наземный паркинг. В лобби разместятся зоны ожидания, помещения для хранения колясок, велосипедов, самокатов и тюбингов, а также лапомойки.
Рядом с новостройкой недавно открылся корпус школы №2094 на 1,1 тыс. мест — с классом робототехники, ИТ-кластером, бассейном и спортзалами. Рядом работает дошкольное отделение этой же школы, планируется строительство еще одного детского сада.
Неподалеку есть вещевая ярмарка «Славянский рынок», строительный ТЦ «Корниловский», «Мега», «Ашан». Совсем рядом — 63 га Троицкого парка.
Преимущества проекта
1. Разнообразные планировки квартир, несколько вариантов отделки.
2. Хорошая транспортная доступность.
3. Близость парка.
4. Рядом — школа и детский сад.
Технические параметры
Класс энергоэффективности — В
Тип остекления — оконное
Наличие подземного паркинга — нет
Система «умная квартира» — есть
Комментарий эксперта
ЖК «1-й Ясеневский» возводится в достаточно удачной локации ТиНАО — недалеко от МКАД, но при этом от магистрали он отделен Троицким лесом. К тому же неподалеку есть новая станция метро.
Рядом с новостройкой открыты школа и детский сад, построены несколько домов по программе реновации, на первых этажах которых работают магазины и другие объекты полезной инфраструктуры.
К минусам, помимо отсутствия подземного паркинга, можно отнести соседство с крупным продовольственным кластером «Фуд Сити» и довольно большой промзоной с западной стороны.
В целом проект выглядит вполне симпатичным, он сочетает городской комфорт и элементы жизни за городом — фруктовые деревья и небольшие огородики во дворах. Ну а по соседстве с крупным парком многие жители «старой» Москвы могут только мечтать!
Метро «Теплый Стан» → Пройти пешком 73 метра (1 минута) → Остановка «Метро «Теплый Стан» → Автобус № 504 (19 минут в пути) → Остановка «Улица Героя России Соломатина» → Пройти пешком 223 метра (3 минуты)
Метро «Корниловская → Пройти пешком 1360 метров (16 минут)