












































































































































ЖК «Рассказово» — масштабный проект комплексной застройки в 8 км от МКАД в Новой Москве. Удачное расположение, богатая инфраструктура и пешая доступность новой станции метро обеспечили высокий спрос на квартиры в этом ЖК, вероятно, поэтому застройщик Sezar Group решил изменить свои планы и возвести в среднеэтажном микрорайоне высотные дома.
Надежность застройщика
Компания Sezar Group представлена на московском рынке недвижимости более 20 лет, примерно половину этого срока она реализует масштабный проект ЖК «Рассказово». В 2014 году проект был отмечен наградой Urban Awards как лучший строящийся комплекс комфорт-класса в Новой Москве. Так как первая и вторая очередь домов уже заселены, покупатели могут лично увидеть, насколько реальность соответствует фотографиям на сайте застройщика. Большинство корпусов сданы в срок, хотя имелись и случаи задержки до 1 года.
Описание ЖК
Облик «Рассказова» сильно изменился за прошедшие 10 лет: по плану это должен был быть уютный ЖК с домами высотой 7–11 этажей. Но на старте проекта по соседству с ним ещё не было станции метро «Рассказовка», транспортная доступность была ограничена, а главными преимуществами комплекса были малоэтажность, «зеленое» окружение и незначительная удаленность от МКАД — 8 км по Киевскому или Боровскому шоссе.
Теперь же до входа в подземку около 15 минут пешком и 35 мин. по прямой ветке до делового центра «Москва-Сити». Транспортная доступность в сочетании с московской пропиской сделали ЖК «Рассказово» еще более привлекательным: квартиры здесь подойдут даже тем, кто работает или учится в центре Москвы, ведь до дома и места работы/учебы можно добираться без пробок.
Комплекс с трех сторон окружен Ульяновским лесопарком, рядом преимущественно малоэтажная застройка, а чуть дальше расположен благоустроенный парк «Рассказовка». Экологическая обстановка в этой части Новой Москвы благоприятная, однако близость аэропорта «Внуково» может доставлять некоторые неудобства.
Первая и вторая очереди проекта были среднеэтажными, они сданы и полностью заселены. Новые дома достигли высоты в 22 этажа, корпус № 14 уже заселен, корпус №15 — на завершающей стадии строительства. Стоит отметить, что увеличилось не только число этажей, но и секций — их в корпусе №15 будет 22. И несмотря на то, что в новой очереди предусмотрен подземный паркинг на 143 машино-места, еще 800 мест предлагается на наземных стоянках, ситуация с парковкой уже сейчас стала непростой.
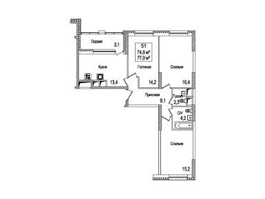
К достоинствам проекта можно отнести индивидуальную архитектуру и большой выбор планировочных решений, наличие лотов с видом на лес. В ЖК «Рассказово» можно купить квартиру от 32 до 89 кв. м., с 1, 2 или 3 изолированными комнатами. Есть варианты с двумя санузлами, панорамными лоджиями (которые можно приспособить под кабинет), гардеробными, просторными кухнями. Высота потолков достигает 3,5 м. Квартиры реализуются без отделки, со свободной планировкой — полное отсутствие несущих стен и пилонов внутри помещений позволяет адаптировать пространство под индивидуальные потребности собственника.
Также в ЖК «Рассказово» можно купить кладовые помещения и места в подземном паркинге, как стандартные, так и семейные сразу на 2 автомобиля.
Территория комплекса закрыта от посторонних, въезд осуществляется через КПП. Во внутренних дворах установлены детские площадки и спортивное оборудование, выполнено озеленение.
Инфраструктура
Из инфраструктуры здесь представлены супермаркеты, несколько кафе и ресторанов, аптеки. Работают два частных детских сада — один встроенный, второй — расположен в отдельном здании. Запланировано строительство муниципальной школы на 1900 учеников и собственного торгового центра.
Ближайшие муниципальные сады и школы находятся неподалеку от станции метро. До них можно дойти пешком за 20 мин., но дорога вдоль шоссе может быть небезопасной для школьников. До поликлиники в Новопеределкино можно доехать на транспорте или личном автомобиле. Также в пешей доступности есть торговый центр «Сказка».
Плюсы и минусы
Близость станции метро, наличие московской прописки, неплохая экология делают этот ЖК привлекательным, но подходящим прежде всего парам и семьям без маленьких детей. Инфраструктура здесь пока не позволяет быстро и комфортно добираться до образовательных и медицинских учреждений.
Ещё одна серьезная проблема — дефицит машино-мест. Кроме того, машины паркуются прямо во дворах, что снижает комфорт проживания.
Метро «Рассказовка» → Автобус №844, 892 (10 минут) → Остановка «Рассказовка-3»
Ж/д станция «Мичуринец» → Пройти пешком 1,9 км до остановки «Улица Самуила Маршака» (23 минуты) → Автобус №497 до остановки Метро «Рассказовка» (12 минут) → Пройти пешком 110 м (2 минуты)
От ЖК до Боровского шоссе 850 метров, 2 километра до Киевского шоссе, а до МКАД – 7 км. Въезд на территорию комплекса осуществляется с автодороги от деревни Рассказовка до города Московский.
Узнайте, нужно ли заказывать пропуск при посещении отдела продаж компании Отдел продаж по телефону +7 (499) 719-45-41.