





































Жилой комплекс «УЛЬТИМА Сити» строят в районе Печатники на перспективной территории Южного порта. Здесь возведут 9 высотных корпусов, в будущем рядом откроется станция метро «Южный порт».
Надежность застройщика
ГК «Кортрос» присутствует на рынке более 18 лет, за это время застройщик построил 3,4 млн кв. м недвижимости. Компания присутствует в восьми регионах РФ, включая Москву, Пермь, Екатеринбург, Калининград. Является системообразующей организацией.
Описание проекта
ЖК бизнес-класса «УЛЬТИМА Сити» возводят на Южнопортовой улице в районе Печатники (ЮВАО) на территории Южного Порта. Ближайшие станции метро — «Печатники» и «Кожуховская», до них около 30 минут ходьбы. В 2028 году недалеко от «УЛЬТИМА Сити» планируется открыть станцию метро «Южный порт». Рядом со строящимся ЖК есть автобусные остановки, транспорт курсирует до станций МЦК «ЗИЛ» и Курьяново МЦД-2.
Экологическая обстановка в районе Печатники оценивается как приемлемая (6 баллов из 10 в экологическом рейтинге). На территории района расположена бывшая промзона «Южный порт», по его границе проходят ТТК и ЮВХ. Зеленых зон в районе мало, самая большая из них — парк Печатники, протянувшийся вдоль берега Москвы-реки. По соседству расположены музей-заповедник «Коломенское», парки Люблинский, Шкулева и Кузьминки.
В составе жилого комплекса «УЛЬТИМА Сити» построят девять корпусов высотой до 64 этажей, здания будут объединены переходными галереями. Во входных группах появятся места для отдыха, колясочные и лапомойки, в зоне ресепшн жителей и гостей будет встречать цифровой консьерж.
На территории квартала разместятся детские и спортивные площадки, беседки, амфитеатр, теплицы, водные и художественные объекты.
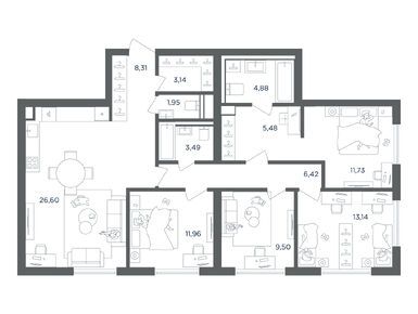
В составе первой очереди строят два корпуса высотой 52 и 45 этажей на 1 079 квартир, двухуровневый паркинг рассчитан на 473 машино-места, там же разместятся 213 кладовых и автомойка.
Квартирография включает варианты от студий площадью 28,2 кв. м до четырехкомнатных площадью 114,97 кв. м, есть квартиры с террасами, лоджиями, несколькими санузлами и кладовыми на кухнях. Эксклюзивные форматы представлены двухуровневыми вариантами со вторым светом, площадь таких квартир — от 77,7 до 141,9 кв. м.
Продажи проекта стартовали в мае 2025 года. В середине июля покупателям предложены 115 квартир без отделки площадью от 28,28 до 106,6 кв. м, цены — от 13,1 млн рублей. Ввод корпусов в эксплуатацию запланирован на II квартал 2029 года.
Инфраструктура
Собственная инфраструктура включает детский сад на 225 мест и школу на 500 мест, после окончания строительства застройщик передаст их городу. На первых этажах корпусов первой очереди запроектированы коммерческие помещения, там откроются магазины и кафе.
Плюсы и минусы
Территория бывшей промзоны «Южный порт» сейчас активно развивается, со временем здесь появится «Второй Сити». Здесь строят жилье и инфраструктуру, в том числе транспортную.
Таким образом, «УЛЬТИМА Сити» возводится в весьма перспективном районе. Уже к окончанию строительства первой очереди рядом с домами появится новая станция метро, а строения, напоминающие о промышленном прошлом (которые сейчас окружают новостройку), скорее всего, будут снесены.
Кроме того, в составе ЖК построят детский сад и школу (сейчас социальной инфраструктуры рядом нет), а неподалеку находятся Перервинский плес и парк Печатники.
Метро «Печатники» → Пройти пешком 82 метра до остановки (1 минуту) → Остановка «Метро «Печатники» → Автобус № 736 (7 минут в пути) → Остановка «Метродепо Печатники» → Пройти пешком 1,92 километра (23 минуты)
Узнайте, нужно ли заказывать пропуск при посещении отдела продаж компании Кортрос ГК по телефону +7 (495) 663-82-47.