































ЖК «Никольские луга» от компании ПИК — это бюджетный проект с московской пропиской в 6 км от МКАД.
Надежность застройщика
ПИК является системообразующим предприятием и лидером по объемам строительства в России. Застройщик использует современные технологии, предлагает оптимальные планировочные решения, создает социальную и торговую инфраструктуру. Компания создана в 1994 году.
Описание ЖК
ЖК «Никольские луга» строится в столичном районе Южное Бутово, недалеко от МЦД «Щербинка» (до нее прогулочным шагом около 17 минут), в 5 минутах езды на автомобиле от Варшавского шоссе. Рядом с комплексом находится заказник Южное Бутово и, чуть подальше, Бутовский лесопарк.
В рамках этого масштабного проекта будут возведены панельные дома (высотой 9-17 этажей). Девять корпусов уже сданы. Срок сдачи 4-го корпуса запланирован на III квартал 2026 года — продажи квартир в нем уже открыты.
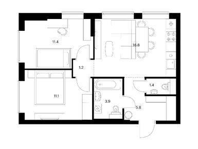
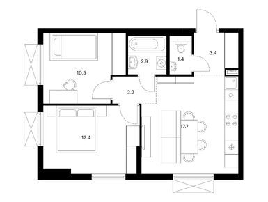
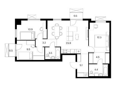
Дома возводятся из современных материалов с применением панельной технологии, планировки отличаются эргономичностью и функциональностью. В ЖК «Никольские луга» можно купить квартиру площадью от 19 до 88 кв. м. В продаже представлены классические «однушки», «двушки», «трешки», студии, а также квартиры евроформата. Есть варианты с большими окнами, балконом, просторной кухней-гостиной, мастер-спальней, гардеробной, постирочной. Покупатели получают жилье с чистовой отделкой. Доступна практически любая ипотека, ЖК аккредитован многими банками РФ.
Инфраструктура
В новом микрорайоне появится две школы и три детских сада, на первых этажах откроются магазины и службы сервиса. В ЖК «Никольские луга» застройщик также создаст свою «фирменную» жилую среду, включающую озелененные благоустроенные дворы с прудами и прогулочными зонами, спорткомплекс и уникальное игровое пространство для детей.
Остальная инфраструктура есть в соседнем населенном пункте Дрожжино: сетевые магазины, поликлиника и частные медцентры, кафе, парикмахерские и спортивные клубы. До многих объектов можно дойти пешком за 20–35 минут, либо на машине – в 2 раза быстрее.
Плюсы и минусы
Комплексная застройка обеспечивает возможность иметь все необходимое в шаговой доступности: пешком водить детей в сады и школы, спускаться в магазин в домашней одежде, проводить выходные, не покидая территории собственного двора. Возможно, кто-то из жителей найдет себе здесь работу или откроет собственный бизнес на первом этаже жилого дома, избавив себя от необходимости частых поездок в столицу.
Те, кто учатся или работают в Москве, смогут быстро добраться до нее на личном автомобиле или электричке. Собственно, жители «Никольских лугов» и сами будут москвичами – согласно прописке.
У самого проекта сложно найти минусы, а вот некоторые особенности локации стоит отметить. С одной стороны комплекс граничит с Бутовской промзоной, с другой соседствует с железной дорогой, с третьей — с оживленным Варшавским шоссе. Рассчитывать на безупречную экологию и тишину здесь не приходится.
В остальном комплекс отвечает потребностям современных людей: от амбициозной молодежи до семей с детьми.
Станция «Щербинка» → Пройти пешком 220 метров до остановки (2 минуты) → МЦД «Щербинка 6А» → Автобус № 937 (8 минут в пути) → Остановка «г. Щербинка» → Пройти пешком 1,1 метров (12 минут).