





















































































«АФИ Девелопмент» в своё время провела ребрендинг своих проектов, назвав их
«Резиденциями» - «Резиденции композиторов», «Резиденции архитекторов». Можно поспорить,
насколько эти названия соответствуют концепциям проектов и т.п., но тем не менее –
запоминающиеся. Хотя те же «Садовые кварталы» или ЗИЛАРТ, в которых разные дома и
кварталы спланированы разными архитекторами, наверно, в большей степени заслуживают
такого названия.
Местоположение комплекса практически в центре Москвы, на берегу реки Яузы, обладает таким
достоинством как хорошая транспортная доступность (как автомобильная, так и общественным
транспортом – благодаря близости станции метро и МЦД «Электрозаводская»). Правда, в н.в. до
станции около 1 км пешком, однако при строительстве обещанного московскими властями
пешеходного моста расстояние сократится почти вдвое.
Социальная инфраструктура представлена неплохо – в радиусе 1 км имеется несколько детских
садов и школ, есть и медицинские объекты. Кроме того, в рамках проекта предусмотрен
собственный детский сад. С торгово-развлекательными объектами в окружении тоже всё хорошо,
а в дополнение проектом предусмотрены магазины ежедневного спроса, аптека, кафе,
рестораны, салон красоты, а также другие предприятия бытовой сферы и сферы услуг – в общем,
стандартный набор для ретейла на первом этаже. Но вот парков в пешей доступности нет –
только небольшие скверики. Так что экология, особенно с учётом расположения в восточной части
центра Москвы, явно не относится к сильным сторонам проекта. Хорошо хоть, что сам участок
использовался для ткацкого и мыловаренного производства – это не металлургическая
промышленность с её токсичными отходами. Собственный пешеходный бульвар с озеленением,
запланированный в рамках проекта, придётся весьма кстати.
Этажность проекта относительно небольшая (до 17 этажей, в основном до 12), что радует – это
более соразмерно человеческому масштабу, чем современные высотки, и соответствует
исторической части города.
Архитектура комплекса довольно традиционная, без каких-либо откровений. Лоджии с
прозрачным стеклянным ограждением – отличное решение, позволяющее сохранить наряду с
панорамным остеклением максимальный обзор из квартир на улицу.
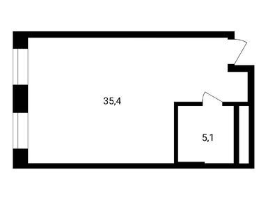
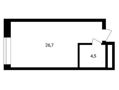
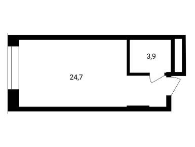
Планировочные решения квартир активно используют решения с
объединённой кухней-гостиной, хотя есть варианты и с возможностью выделения отдельной
кухни. Сами решения не очень привычны (что связано с конфигурацией корпусов), к некоторым квартирам есть вопросы по зонированию, площадям, необходимости в ряде квартир делать проходную кухню или гостиную, количеству и
конфигурации санузлов – в общем, поработать здесь явно было над чем на этапе проектирования,
но почему-то не стали.
Говорить об инвестиционной составляющей уже поздно, но
рассмотреть приобретение квартиры в этом проекте для собственного проживания можно. А там и пешеходный мост до станции построят!
Метро «Электрозаводская» → Пройти пешком 740 метров (10 минут)
Метро «Бауманская» → Пройти пешком 270 метров (3 минуты) → Остановка «Станция метро «Бауманская» → Автобус № 22 (3 минуты в пути) → Остановка «Пер. Переведеновский» → Пройти пешком 230 метров (3 минуты).