





































Проект комфорт-класса Holland Park строится на северо-западе столицы в районе Покровское-Стрешнево рядом с Москвой-рекой.
Надежность застройщика
Застройщиком ЖК «Холланд Парк» выступает ПИК — одна из наиболее известных и крупных строительных компаний в России, входящая в перечень системообразующих предприятий. Большинство проектов ПИК строится согласно фирменному стандарту, но в Holland Park можно наблюдать некоторые отступления — более высокие потолки, угловое остекление и французские балконы, а также отсутствие отделки во всех лотах.
Описание ЖК
Расположение Holland Park на редкость удачное для Москвы: на застраиваемом участке не было промышленных предприятий (здесь располагался Тушинский аэродром), совсем рядом река — один из наиболее чистых ее участков, вокруг — современные кварталы, готовые и строящиеся, новая инфраструктура, которая понравится любителям спорта, активного отдыха и семьям с детьми, да и метро «Спартак» в 5 мин. ходьбы. На машине до центра города можно добраться по Волоколамскому шоссе примерно за 20 минут без учета пробок, на общественном транспорте — за 45 мин. вне зависимости от трафика.
В районе есть несколько промышленных предприятий, но в целом экология хорошая, согласно рейтингу от EcoStandard. В пешей доступности Экопарк Primavera и Берег реки Сходни. На машине можно за 10 мин. доехать до парка Покровское-Стрешнево, за 20 мин. — до Москворецкого природно-исторического парка.
ЖК Holland Park — это масштабная новостройка, включающая в себя несколько жилых кварталов с подземными паркингами и сопутствующей инфраструктурой. Высота зданий от 12 до 24 этажей. Каждый корпус состоит из нескольких секций, которые сообщаются между собой посредством одноэтажных галерей. Первые четыре корпуса уже сданы. Срок сдачи корпуса №8 намечен на I квартал 2026 года.
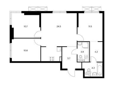
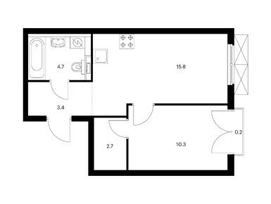
Квартиры в ЖК «Холланд Парк» представлены самых разных форматов и под любой состав семьи. В продаже есть компактные студии площадью от 21,8 кв. м., однокомнатные, двухкомнатные, трехкомнатные квартиры площадью до 91,2 кв. м. Есть лоты с мастер-спальнями, гардеробными, постирочными. В части квартир выполнено угловое остекление с высотой окон от двух метров, есть французские балконы.
Отделка квартир в «Холланд Парке» не предусмотрена, что, с одной стороны, дает жильцам свободу в планировании и оформлении пространства, с другой — создает неудобства в виде шума и грязи в лифтах и МОПах.
Инфраструктура
Вместе с домами в ЖК «Холланд Прак» застройщик возведет два детских сада и две школы. Первые этажи частично отдадут под коммерцию — магазины, аптеки, кафе, салоны красоты и службы быта, у них будут отдельные входные группы.
Рядом с ЖК построен дворец спорта с бассейном, хоккейной ареной и площадкой для спортивных танцев. По соседству расположен тренировочный центр с футбольными полями и тренажерным залом. На стадионе «Лукойл Арена» (бывш. «Открытие Банк Арена»), который находится в 10 минутах ходьбы, можно посещать не только спортивные матчи, но и концерты.
Проект в целом имеет спортивный уклон — так, на реках и каналах можно отдыхать и заниматься водным спортом (в получасе ходьбы от новостройки на берегу реки Сходни работают базы сапсерфинга и вейк-клубы). Дворы-парки с местами для отдыха, детскими и спортивными площадками будут свободны от машин, набережную благоустроят и тоже озеленят.
Плюсы и минусы
Holland Park — один из наиболее интересных проектов ПИК в комфорт-классе. С большим вниманием застройщик отнесся к архитектурной концепции, благоустройству и созданию удобной городской инфраструктуры. Улучшенные планировки и отсутствие готовой отделки позволяют адаптировать квартиры под запросы и привычки будущих жильцов.
Недостаток в том, что все перечисленные преимущества отразились на цене. Цена на самую маленькую студию в ЖК «Холланд Парк» более 11,8 млн руб., а чтобы купить «двушку» без ремонта, потребуется не меньше 20,4 млн руб. Из чего можно сделать вывод о том, что недвижимость здесь скорее подойдет для собственного проживания, чем для инвестирования.
Метро «Спартак» → Пройти пешком 400 метров (5 минут)