










































































Жилой комплекс Rakurs будет построен в районе Щукино недалеко от станций метро «Октябрьское поле» и МЦК «Зорге».
Надежность застройщика
Застройщик проекта — ООО «СЗ «ЛБМ Инжиниринг», являющееся структурой компании Dar. Сейчас девелопер занимается строительством ЖК Rakurs и планирует вывести еще один проект в Сокольниках.
Описание ЖК
ЖК бизнес-класса Rakurs строят на улице Маршала Бирюзова в районе Щукино на северо-западе Москвы. Станция метро «Октябрьское поле» находится в 6 минутах ходьбы от будущего жилого комплекса, станция МЦК «Зорге» — в 5 минутах.
Щукино — один из наиболее экологически чистых районов «старой» Москвы. Эксперты компании EcoStandard оценивают обстановку здесь как благоприятную. Основные транспортные магистрали — Волоколамское шоссе (которое проходит по окраине района) и улица Маршала Бирюзова. На территории района есть несколько парков и скверов, а промзона «Октябрьское поле» активно реорганизуется.
ЖК «Ракурс» — это 3 корпуса высотой от 13 до 44 этажей, они рассчитаны на 744 квартиры. Во дворе предусмотрены детский городок и места для занятий спортом, для автомобилей — подземный паркинг.
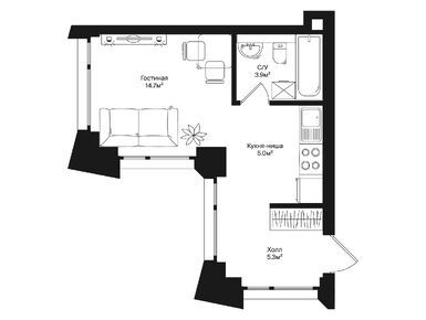
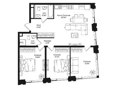
В середине августа 2025 года в продаже есть 165 квартир в трех корпусах — от студий площадью 28,7 кв. м до лотов с тремя спальнями, кухней-гостиной и террасой площадью 126,5 кв. м. Жилье реализуется без отделки и с отделкой white box, цены — от 15 млн рублей. Купить квартиру предлагается в ипотеку (в том числе по программам семейной и траншевой ипотеки), в рассрочку под 0% и по программе trade-in.
Инфраструктура
В составе проекта запланирован образовательный центр с детским садом и начальной школой. Также собственная инфраструктура включает объекты ретейла на первых этажах и комьюнити-центр с библиотекой, коворкингом и лекторием. Вся нужная инфраструктура есть и рядом с новостройкой, в том числе корпуса Курчатовской школы, магазины и клиники.
Плюсы и минусы
ЖК Rakurs строится в престижном обжитом районе на северо-западе Москвы. Планировки квартир рассчитаны как на покупателей без пары, так и на молодые семьи и семьи с детьми. Для последних будет построен образовательный центр — правда, школа в нем будет только начальная. Впрочем, в окружении новостройки есть и школы, и другая инфраструктура.
Минусом можно назвать достаточно высокие цены и то, что дома будут с двух сторон окружены улицей Берзарина, а с одной стороны проходит линия МЦК — то есть жителям придется смириться с шумом автомобилей и поездов.
Метро «Октябрьское Поле» → Пройти пешком 540 метров (6 минут).
Метро «Народное Ополчение» → Пройти пешком 53 метра до остановки (1 минута) → Остановка «Метро «Народное Ополчение» → Автобус № 800 (11 минут в пути) → Остановка «Метро «Октябрьское поле» → Пройти пешком 690 метров (8 минут).
МЦК «Зорге» → Пройти пешком 360 метров (5 минут).
Узнайте, нужно ли заказывать пропуск при посещении отдела продаж компании Dar (Дар) по телефону +7 (495) 668-81-79.