























«EvoPark Сокольники» — новый проект девелопера «Основа» в восточной части Москвы, в нескольких минутах ходьбы от набережной Яузы и парка Сокольники.
Надежность застройщика
Строительная и инвестиционная компания «Основа» вышла на рынок в 2016 году. Меньше чем за 10 лет ей удалось занять 14 строчку в рейтинге ЕРЗ по объемам строительства в Москве. В настоящее время девелопер одновременно реализует 7 проектов, в числе которых «EvoPark Сокольники», Emotion, Nametkin Tower, UNO и другие ЖК в разных районах столицы.
Описание ЖК
«ЭвоПарк Сокольники» строится на ул. Потешной, в 15 минутах ходьбы от метро «Преображенская площадь», рядом с парком, сквером и набережной. Локация отличается высокой транспортной доступностью, которую, кроме метрополитена, обеспечивают автобусные и трамвайные маршруты. Автомобилисты смогут за 15 минут добраться до ТТК по ул. Стромынке, около 20–25 минут займет путь до Садового кольца.
Строительство ведется у самой границы района Преображенское, ближе к районам Сокольники и Богородское, поэтому при оценке экологической ситуации стоит ориентироваться скорее на эти территории. Благодаря большой площади зеленых насаждений и не слишком плотной застройке экологическая обстановка в Сокольниках и Богородском является благоприятной (5 из 10 баллов по уровню негативного влияния в рейтинге EcoStandard).
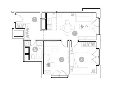
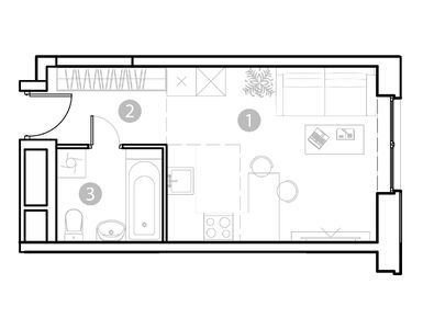
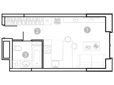
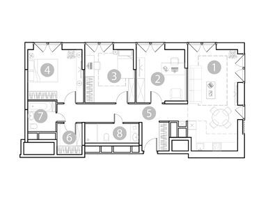
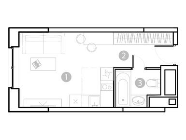
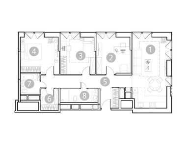
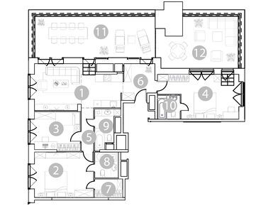
Всего в проекте будет две секции высотой до 20 этажей с панорамными окнами и видовыми террасами. В продаже есть помещения площадью от 23 до 111 кв. метров, студии и лоты с несколькими комнатами. Цены на недвижимость в «ЭвоПарк Сокольники» стартуют от 8,4 млн рублей, что почти в два раза ниже, чем в строящихся по соседству ЖК.
В проекте предусмотрены дизайнерские лобби, система «Умный дом» и подземный паркинг на 98 автомобилей. На придомовой территории будет выполнено благоустройство и озеленение.
Инфраструктура
У резидентов «ЭвоПарк Сокольники» будет большой выбор мест для прогулок, досуга и занятий спортом. В локации много медицинских учреждений различного профиля, не менее десяти общеобразовательных школ и детских садов, до которых можно дойти пешком за несколько минут, спортивные клубы для взрослых и секции для детей, спортивный комплекс «Спартак» и теннисный корт, почта, суды, деловые центры, супермаркеты.
Плюсы и минусы
Новый проект ГК «Основа» подойдет тем, кто ищет недвижимость в развитом, экологически благоприятном районе с высокой транспортной доступностью для последующей сдачи в аренду или собственного проживания. Большой выбор планировочных решений, авторская архитектура и дизайн общественных пространств делают «ЭвоПарк Сокольники» привлекательным для семейных покупателей и инвесторов.
Недостатком проекта будет дефицит парковочных мест.
Метро «Преображенская площадь» → Пройти пешком 123 метра до остановки (1 минута) → Остановка «Метро «Метро Преображенская площадь» → Трамвай № 46,11, 7 (4 минуты в пути) → Остановка «Мосгорсуд» → Пройти пешком 750 метров (9 минут).
Узнайте, нужно ли заказывать пропуск при посещении отдела продаж компании ГК «Основа» по телефону +7 (495) 604-47-16.