





























Жилой комплекс Solos построят в районе Сокольники рядом с одноименным парком. Ближайшие станции метро — «Рижская» и «Сокольники».
Надежность застройщика
Девелопер проекта — компания Dar. Она создана в 2024 году другим девелопером — «Бэсткон». Застройщик специализируется на возведении недвижимости бизнес- и премиум-класса, сейчас в его портфеле два строящихся проекта в Москве — Rakurs и Solos.
Описание ЖК
Жилой комплекс бизнес-класса Solos строят на участке площадью 2,6 га на Сокольническом Валу в районе Сокольники на востоке Москвы. Станции метро «Сокольники» и «Рижская» находятся в 23 минутах ходьбы от будущего ЖК, как и станция Рижская МЦД-2. До них можно доехать и на автобусе. Дорога на машине до ТТК составит 1 минуту, до центра Москвы — 15 минут.
Сокольники — один из экологически благополучных районов Москвы. Половину его территории занимает парк Сокольники, а крупных промышленных предприятий здесь нет.
ЖК Solos строится совсем рядом с парком Сокольники. Девелопер построит две башни высотой 41 и 49 этажей, в лобби разместятся консьерж-сервис, колясочные и лапомойки, зоны ожидания и санузлы. На придомовой территории появятся детские и спортивные площадки, сухой фонтан с арт-объектом, места для отдыха. Предусмотрены подземный паркинг на 584 машино-места и 426 кладовых.
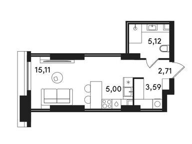
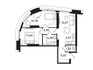
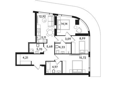
В жилом комплексе будет 1 243 квартиры площадью от 29,12 до 147,52 кв. м, на верхних этажах запроектированы пентхаусы. Продажи стартовали в мае 2025 года, в середине июля для покупки доступны 126 квартир от студий площадью 29,19 кв. м до вариантов с четырьмя комнатами и кухней-гостиной площадью 127,56 кв. м. Квартиры продаются без отделки, цены — от 14,7 млн рублей.
Инфраструктура
Собственная инфраструктура включает коворкинг и переговорные в лобби одного из корпусов, видовой ресторан-оранжерею, различные объекты на первых этажах (супермаркет, кофейня, аптека, салон красоты).
Относительно недалеко есть детские сады, школы и другие объекты инфраструктуры.
Плюсы и минусы
«Солос» — единственный проект бизнес-класса, который сейчас строят вплотную к парку Сокольники. Среди плюсов: видовые квартиры (окна выходят на парк или на центр города), разнообразные планировки квартир с возможностью перепланировки, шаговая доступность одного из самых крупных московских парков.
Минусы тоже имеются: проект возводится между Сокольническим Валом и ТТК, неподалеку проходит железная дорога, рядом есть несколько АЗС. Впрочем, от шума магистралей башни будут защищены «зеленым барьером» — крупными деревьями.
Метро «Рижская» → Пройти пешком 156 метров до остановки (2 минуты) → Остановка «Рижский вокзал» → Автобус № 778 (7 минут в пути) → Остановка «1-я Рыбинская улица» → Пройти пешком 460 метров (5 минут).
Узнайте, нужно ли заказывать пропуск при посещении отдела продаж компании Dar (Дар) по телефону +7 (495) 157-38-05.