






















ЖК «UNO. Соколиная гора» возводится на 8-й улице Соколиной Горы рядом со станцией МЦК «Соколиная Гора».
Надежность застройщика
ЖК «UNO Соколиная гора» — проект ГК «Основа». Компания работает с 2016 года и входит в топ-15 столичных девелоперов по объему строительства. В портфеле «Основы» сегодня 20 жилых проектов общей площадью около 2 млн кв. м.
Кроме девелопмента, ГК «Основа» занимается управлением недвижимостью и инвестициями в инновационные проекты.
Описание ЖК
ЖК бизнес-класса «UNO. Соколиная гора» строят в районе Соколиная Гора на востоке Москвы. Расположение проекта можно оценить как неоднозначное: с одной стороны проходят железнодорожные пути и МСД, с другой стороны находится комплекс медицинских учреждений. Однако у локации есть и плюсы: до станции МЦК «Соколиная Гора» всего 300 метров или 5 минут пешком, за такое же время можно дойти до лесопарка Измайлово.
Экология в районе Соколиная Гора — не самая благоприятная. На этой территории много производств и почти нет зеленых зон, а по границам проходят МСД и шоссе Энтузиастов. Однако ЖК «UNO. Соколиная гора» расположен на границе района, рядом с крупным парком, что обеспечивает лучшее качество воздуха и возможность проводить время на природе, заниматься спортом на природе.
ЖК «Uno Соколиная гора» состоит из двух секций высотой 17 и 21 этаж. Комплекс рассчитан на 642 квартиры площадью от 20,8 до 107 кв. м, в подземном паркинге будет 129 машино-мест, еще 26 мест для автомобилей разместятся на территории проекта.
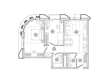
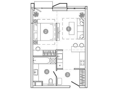
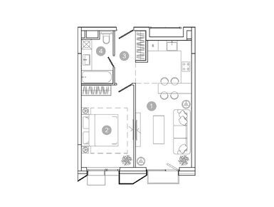
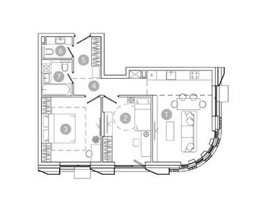
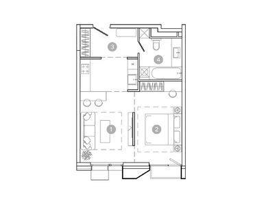
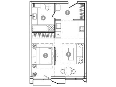
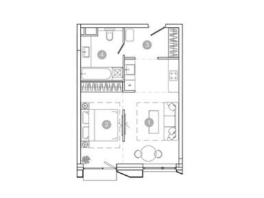
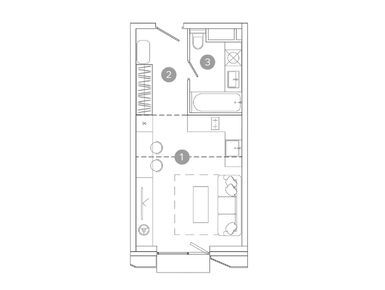
Все планировки квартир в проекте – евроформата: с большой кухней-гостиной, которую при желании можно разделить на две комнаты. В многокомнатных квартирах есть мастер-спальня и гостевой санузел.
В середине марта 2025 года в продаже есть 181 квартира площадью от 20,8 до 107,2 кв. м. Стоимость самого доступного лота — 9,1 млн рублей, самая большая и самая дорогая квартира обойдется в 45 млн рублей.
Инфраструктура
На первых этажах корпусов будет зона ретейла, в которой разместятся магазины, кафе, салоны красоты и другие сервисы для повседневного комфорта. Во внутреннем пространстве будет обустроен двор-сад, закрытый от машин и посторонних. На его территории предусмотрены тихие уголки для отдыха, работы или чтения, места для пикников, зоны с тренажерами и турниками, беседки, детские площадки.
Детские сады, школы, магазины и медицинские учреждения есть в 15-минутной пешей доступности от новостройки.
Плюсы и минусы
ЖК «UNO. Соколиная гора» имеет небезупречное для проекта бизнес-класса расположение. Однако ситуацию во многом компенсируют большой парк, раскинувшийся почти под самыми окнами, хорошая транспортная доступность, современное благоустройство и интересные планировки.
Метро «Шоссе Энтузиастов» → Пройти пешком 1,46 километров (18 минут).
Метро «Соколиная гора» → Пройти пешком 240 метров (3 минуты).