









































Nametkin Tower возводится в районе Черемушки на улице Наметкина, ближайшая станция метро — «Новые Черемушки».
Надежность застройщика
Строительством комплекса занимается ООО «СЗ «Гартея», которое входит в состав ГК «Основа». Холдинг основан в 2016 году, он специализируется на девелопменте в формате «умный дом», инвестициях в развитие семейной и досуговой инфраструктуры, высокотехнологичные проекты и инновации. В портфеле «Основы» — 20 проектов в Московском регионе и один реализованный проект в Чехии.
Описание проекта
Комплекс бизнес-класса Nametkin Tower строят в районе Черемушки (ЮЗАО) вблизи четырех станций метро — «Новые Черемушки», «Калужская», «Воронцовская» и «Зюзино». Дойти до них пешком можно за 10–20 минут. Рядом с новостройкой есть автобусные остановки, можно доехать до метро «Варшавская», «Калужская», «Ясенево» и «Новые Черемушки».
Расстояние до ТТК — около 6 км, до Садового кольца — 10 км, до МКАД — 8 км.
Экологическую ситуацию в Черемушках нельзя назвать хорошей, эксперты оценивают ее как удовлетворительную. Основной недостаток района — загруженные дороги. По границам Черемушек проходят Нахимовский и Севастопольский проспекты, улицы Обручева и Профсоюзная. Кроме того, на территории района расположена часть бывшей промзоны «Воронцово». Крупных парков в районе нет, но по соседству находится Битцевский лес.
«Наметкин Тауэр» будет состоять из четырех секций высотой от 24 до 29 этажей, также здесь расположится двухуровневый подземный паркинг на 670 машино-мест. Ввод в эксплуатацию запланирован на IV квартал 2025 года.
Двор будет закрыт от машин, в нем предусмотрены беговые и пешеходные дорожки, рампы для экстремальных видов спорта, отдельные маршруты для мам с колясками и места для тихого отдыха.
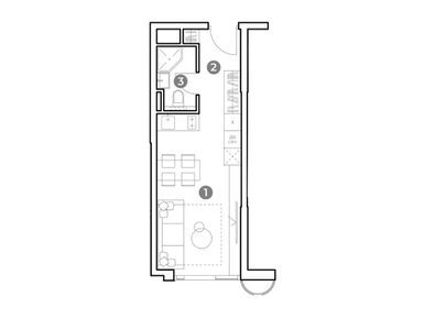
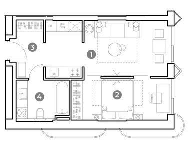
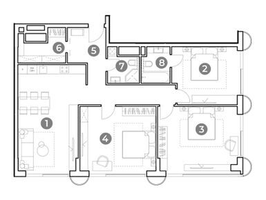
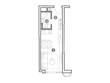
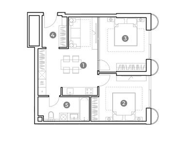
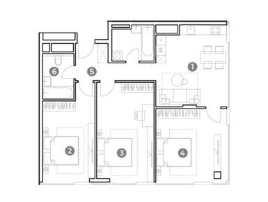
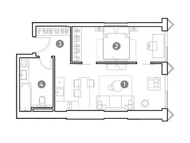
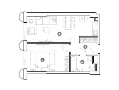
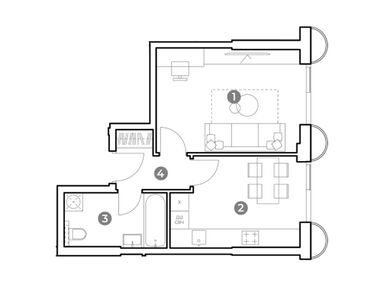
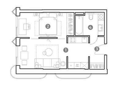
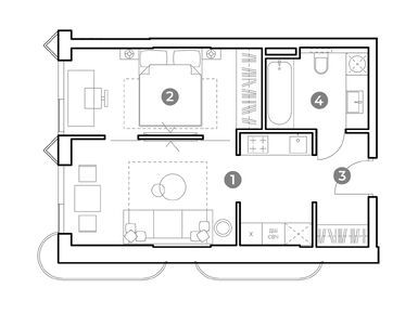
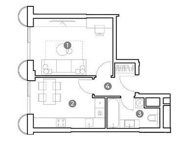
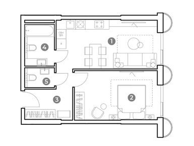
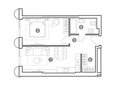
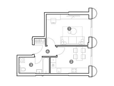
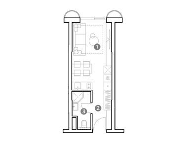
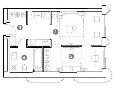
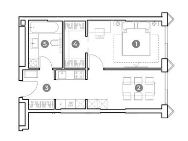
Застройщик предлагает различные варианты лотов: от 21-метровых студий до 4-комнатных площадью 111 кв. м. Высота потолков — 3,1 м. В конце октября 2024 года для покупки доступны лоты площадью от 21,1 до 110,1 кв. м, минимальная стоимость — 9 млн рублей. Недвижимость продается без отделки, но есть опция дозаказа отделки white box.
Купить недвижимость можно в ипотеку (в том числе по ставке 0,11% на первый год), в беспроцентную рассрочку с первоначальным взносом не менее 10% (рассрочка предоставляется до ввода проекта в эксплуатацию) и trade-in. Также действует акция «Подожди ставки», ее условия: первый взнос 30%, далее — фиксированный платеж до марта 2026 года от 180 тыс. рублей.
Инфраструктура
Внутренняя инфраструктура комплекса включает супермаркет, спортивный и медицинский центры, ресторан. На 25 этаже разместится приватная досуговая зона площадью 2,5 тыс. кв. м. Это общественное пространство будет разделено на несколько функциональных секций: лаунж-зону, зону для занятий спортом и проведения мероприятий, пространство для детских игр и хобби-комнату.
В районе есть много школ и детских садов, развивающих секций, фитнес-центров, магазинов и супермаркетов. Рядом с новостройкой работают отделения банков, аптеки, ветеринарная клиника, кафе, рестораны и ТЦ «Калужский» с кинотеатром.
Плюсы и минусы
Бесспорным плюсом этого проекта является его расположение — близость метро, развитая инфраструктура района. В самом комплексе появится приватное пространство, где можно будет проводить деловые встречи и мероприятия, заниматься спортом или просто отдыхать, не выходя из здания.
Метро «Новые Черёмушки» → Пройти пешком 96 метров (1 минута) → Остановка «Метро «Новые Черёмушки» → Автобус № т60, 246, 648, с5 (5 минут в пути) → Остановка «Улица Намёткина» → Пройти пешком 217 метров (3 минуты).
Метро «Зюзино» → Пройти пешком 40 метров (1 минута) → Остановка «Метро «Зюзино» → Автобус № т60, т72 (6 минут в пути) → Остановка «Улица Намёткина» → Пройти пешком 217 метров (3 минуты).
Узнайте, нужно ли заказывать пропуск при посещении отдела продаж компании ГК «Основа» по телефону +7 (495) 668-82-47.