






























Emotion (Эмоушен) возводится в районе Хорошево-Мневники, в 10 минутах езды от Садового кольца. В нем будут представлены лоты бизнес-класса, а также инфраструктура для работы и отдыха, включая собственный спа-центр с открытым бассейном.
Надежность застройщика
Реализацией проекта занимается ГК «Основа». Компания основана в 2016 году, в её портфеле 15 проектов на разной стадии готовности, 6 новостроек сданы. Все объекты отличаются яркой авторской архитектурой, функциональностью, инновационными решениями. Особое внимание уделяется созданию семейной досуговой инфраструктуры: бассейны, спа, парки квестов, аттракционы — все это в том или ином виде присутствует в комплексах ГК «Основа».
Описание
Emotion расположен в респектабельном районе на северо-западе Москвы. Он находится буквально на въезде в Хорошево-Мневники и по праву может стать его триумфальными воротами. Это территория «Большого Сити» — новый центр деловой жизни столицы. Отсюда до ТТК — менее 5 мин на машине, до «Москва-Сити» — 7 мин, до Кремля — 15 мин.
Добраться до новостройки без машины можно на автобусе или метро. До ближайших станций «Шелепиха» и «Полежаевская» – 20–25 мин ходьбы. Однако транспортная система района совершенствуется. Уже в 2026–2027 году всего в 5 минутах ходьбы откроется ст. м. «Звенигородская», которая даст еще больше преимуществ этому проекту.
Район Хорошево-Мневники не самый «зеленый» в Москве, но ему повезло с соседями. По его границе расположены живописные парки Мневниковской поймы, природно-исторический парк «Москворецкий», а знаменитый Серебряный бор и вовсе входит в границы района. Экологическая обстановка в этой локации «приемлемая», согласно оценке компании EcoStandard.
Emotion от ГК «Основа» представляет собой 4 секции, которые вместе образуют сложную геометрическую форму. Напоминает скульптуру в современном стиле. И, конечно, такой проект обращает на себя внимание, несмотря на то, что его высота, по современным московским меркам, невелика — всего 28 этажей.
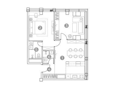
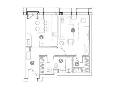
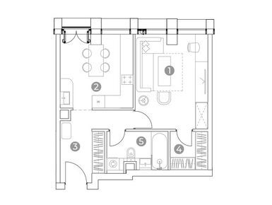
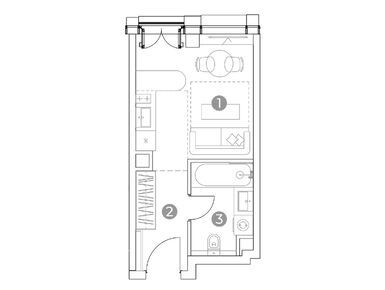
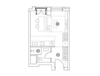
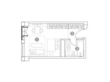
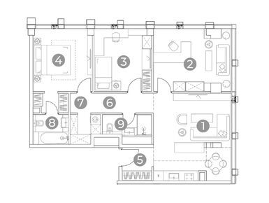
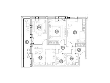
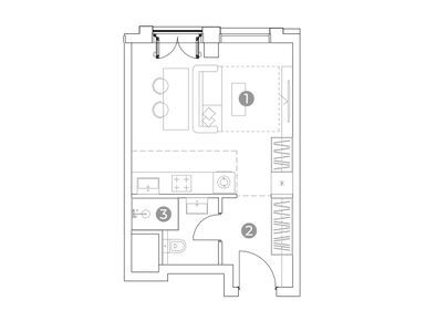
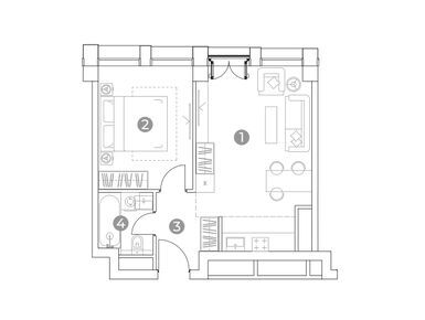
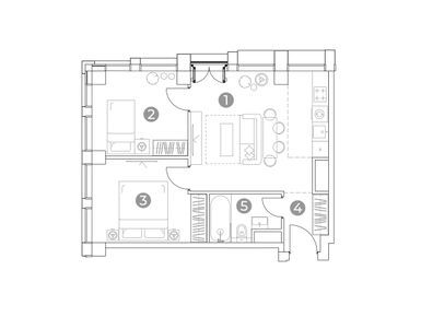
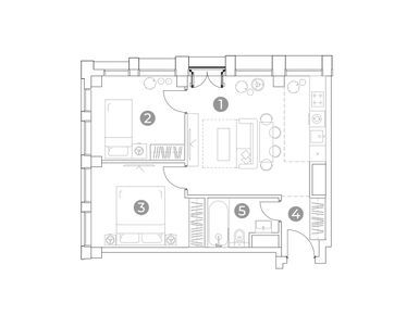
Срок сдачи первых секций запланирован на II квартал 2027 года. Будет 551 лот, среди которых множество студий и однокомнатных, а также просторные варианты с 2, 3 и даже 4 спальнями. В числе планировок есть и эксклюзивные: со вторым светом, с террасами, балконами и окнами в ванной. Площадь помещений от 18 до 140 кв. м.
На территории Emotion появятся современные детские площадки, зоны для занятий спортом на открытом воздухе, а также сад скульптур и стильная подсветка.
Инфраструктура
Застройщик не слишком заботится о «социалке», ведь ее немало в соседних кварталах. До школ, садиков и поликлиник можно дойти пешком. А вот развлечениям и отдыху в Emotion уделяется много внимания. Здесь будет все необходимое, чтобы весело проводить время в кругу семьи, друзей и даже в одиночестве. Магазины и бутики, кофейни и рестораны, огромный спа с бассейном под открытым небом, спортивные залы, салоны красоты и хобби-комната.
Плюсы и минусы:
Главным плюсом новостройки является расположение. Людям бизнеса оно особенно понравится, ведь рядом «Москва-Сити» и ЦАО, в котором сосредоточены главные объекты деловой инфраструктуры столицы. Кроме того у района не туманные, а вполне реальные перспективы развития с обозначенными сроками — так, например, станция метро откроется уже через 2,5 года. Ещё одно преимущество — неплохое соотношение парковочных мест и общего числа лотов — 380 / 551.
Минус в том, что строить это чудо инженерной мысли будут долго — до середины 2027 года. Да и цены на этапе котлована сложно назвать демократичными.
Станция метро «Хорошёво» → Пройти пешком 1,60 километров (20 минут).
Узнайте, нужно ли заказывать пропуск при посещении отдела продаж компании Отдел продаж по телефону +7 (499) 719-45-41.