















«Evopark Измайлово» («Эвопарк Измайлово») — новостройка в 10 минутах ходьбы от Измайловского парка.
Адрес: Москва, Электродная ул., 2А.
Надежность застройщика
Проект реализует ГК «Основа». Компания, основанная в 2016 году, развивается в четырех основных направлениях: девелопмент в формате «умный дом», управление объектами коммерческой недвижимости, инвестиции в развитие семейной досуговой инфраструктуры, инвестиции в высокотехнологичные проекты и инновации. В портфеле девелопера 20 ЖК в Москве и Московской области на разных стадиях строительства, в их числе «Evopark Измайлово» («Эвопарк Измайлово»).
Описание ЖК
«Evopark Измайлово» строится в районе Перово на востоке Москвы. Проект расположен в непосредственной близости от Измайловского парка и пересечения крупных автомагистралей — МСД и шоссе Энтузиастов. Дорога на автомобиле до ТТК занимает порядка 10–15 мин., до Садового кольца — 15–20 минут. По шоссе Энтузиастов можно быстро выехать из Москвы в сторону области, путь на машине до МКАД занимает порядка 15 мин.
В 5 минутах от новостройки находится станция метро «Шоссе Энтузиастов» (Калининская линия), а за 10 минут можно дойти до одноименной станции МЦК. Транспортную доступность локации также обеспечивают трамваи и автобусы, дойти до остановок наземного транспорта можно за 5-7 мин.
С точки зрения экологии район сложно назвать благополучным из-за большой площади, занимаемой промышленными предприятиями, а также множества крупных автомобильных магистралей и железных дорог. Но в целом состояние экологии здесь оценивается как «удовлетворительное» (по критериям EcoStandard). Соседство с промзонами нивелируется близостью большого парка.
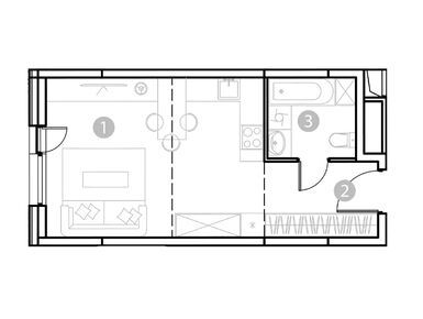
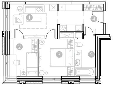
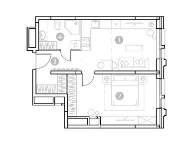
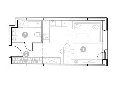
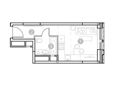
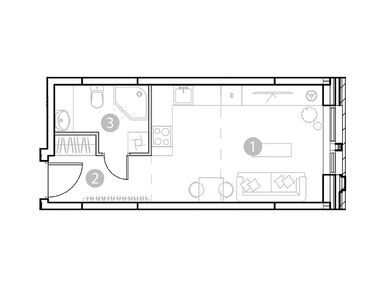
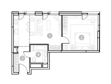
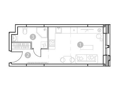
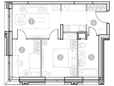
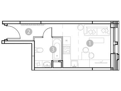
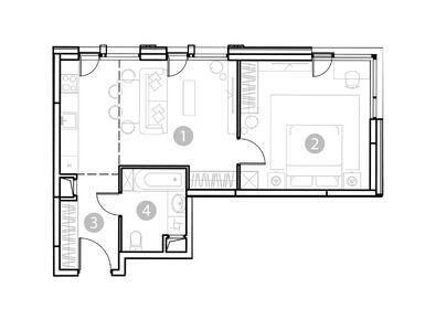
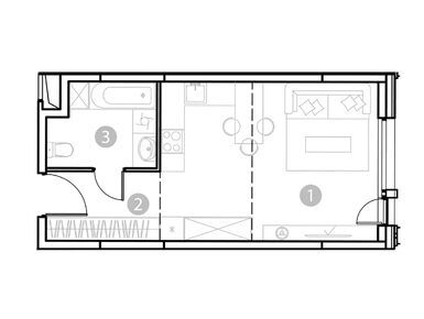
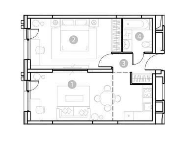
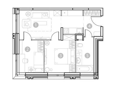
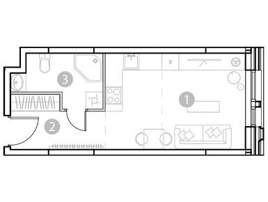
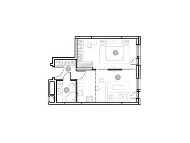
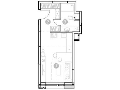
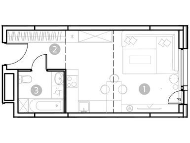
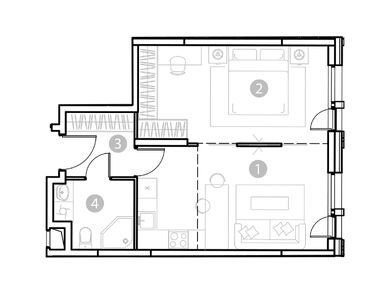
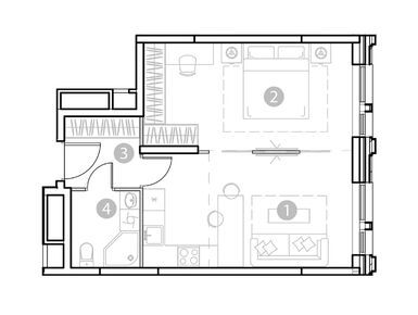
«Evopark Измайлово» представляет собой 18-этажное здание с подземным паркингом на 49 автомобилей. Первые этажи будут отведены под коммерческую инфраструктуру, выше будут располагаться 289 помещений, которые можно использовать как для постоянного проживания, так и для сдачи в аренду. В проекте есть два типа планировочных решений: студии и двухкомнатные евроформата. Площадь лотов — от 30 до 51 кв. м. Особенности юнитов: совмещенные санузлы, панорамные окна, подготовка к подключению системы «Умный дом». Отделка не предусмотрена.
Стоимость помещений в «Evopark Измайлово» немного ниже средней цены на квартиры в ЖК бизнес-класса. Купить здесь 30-метровую студию можно за 9 млн руб., а самый дорогой лот обойдется в 16 млн руб. (информация актуальна на середину февраля 2025 года).
На придомовой территории будет выделено 49 мест для парковки автомобилей, а также появится благоустроенный двор с детскими площадками и зонами отдыха.
Инфраструктура
В самом «Evopark Измайлово» объектов социальной инфраструктуры не запланировано, но в будущем они появятся в новом ЖК, который будет возведен в рамках редевелопмента промзоны «Прожектор». В проекте, представленном на сайте Московского стройкомплекса, заявлены школы на 2100 учеников, детские сады на 1050 детей, учреждения дополнительного образования, спортивный комплекс, поликлиника и технопарк.
Сейчас объекты инфраструктуры находятся на значительном удалении от застраиваемого участка. До ближайших школ, детских садов и медицинских учреждений — 1,5-2,5 км (около 20-25 мин. ходьбы). Но, например, до спортивных клубов, супермаркета «Пятерочка» и кофейни можно дойти за 5 мин.
Плюсы и минусы
Как проект для долгосрочных инвестиций «Эвопарк Измайлово» имеет ряд преимуществ: близость метро, современную архитектуру и благоустройство, соседство с большим парком, расположение в локации, перспективы развития которой уже определены. В ближайшее время район Перово преобразится, а его близость к центру обеспечит высокий спрос на покупку и аренду недвижимости.
«Эвопарк Измайлово» не подойдет для проживания семей с детьми, в силу того что объекты инфраструктуры находятся на значительном удалении, а в самом проекте не предусмотрены лоты семейного формата.
Метро «Шоссе Энтузиастов» → Пройти пешком 390 метров (5 минут).