







































































































ЖК «Very Ботанический сад» строят в районе Марфино рядом с Главным ботаническим садом РАН. Ближайшие станции метро — «Владыкино» и «Фонвизинская».
Надежность застройщика
ГК «Основа» образована в 2016 году. Основные направления деятельности компании: девелопмент в формате «умный дом», инвестиции в развитие семейной досуговой инфраструктуры и в высокотехнологичные проекты, управление объектами коммерческой недвижимости. В московском портфеле девелопера — 20 проектов на разной стадии реализации. Компания входит в топ-20 столичных застройщиков по объему текущего строительства (в рейтинге Единого ресурса застройщиков).
Расположение и транспортная доступность проекта
Жилой комплекс бизнес-класса «Very Ботанический сад» находится на улице Ботаническая в районе Марфино (СВАО). До станций метро «Владыкино» и «Фонвизинская» — около 20 минут пешком. Рядом с ЖК есть автобусные остановки, с них можно доехать до метро «Владыкино», «ВДНХ», «Парк Победы», «Марьина Роща», «Алексеевская», «Рижская», «Проспект Мира», «Сухаревская», «Лубянка», «Библиотека имени Ленина», «Кутузовская», «Лианозово», «Окружная», «Верхние Лихоборы», «Селигерская», «Яхромская», «Отрадное», станций Окружная и Бескудниково МЦД-1, Марьина Роща МЦД-2 и Останкино МЦД-3. Для автомобилей есть выезд на МСД, дорога до ТТК займет 15 минут.
Экология и особенности района
Экологическая обстановка в Марфино оценивается как приемлемая. Несмотря на то, что в самом районе отмечается дефицит зеленых зон, он граничит с Главным ботаническим садом РАН (около него и строится ЖК «Very Ботанический сад») и парком Останкино.
Архитектура и благоустройство
ЖК «Very Ботанический сад» состоит из пяти монолитно-кирпичных корпусов на 1 456 квартир. Три корпуса уже сданы в эксплуатацию, ввод двух оставшихся ожидается в IV квартале 2027 года.
Жилой комплекс вполне соответствует бизнес-классу. Он выполнен по индивидуальному проекту от архитектурного бюро APEX, дизайн лобби разработан студией Asthetique. Благодаря использованию современных материалов новостройка имеет класс энергоэффективности А+, а инновационные системы «Умный дом» обеспечивают комфорт и безопасность жильцов. Более 85% квартир имеют прекрасные видовые характеристики.
Свыше 77% площади квартала отдано под благоустройство: детские и спортивные площадки, места для отдыха, парящий мост-ручей со смотровой площадкой. Уникальный микроклимат создают более 1 тыс. высаженных деревьев и кустарников.
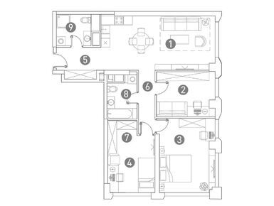
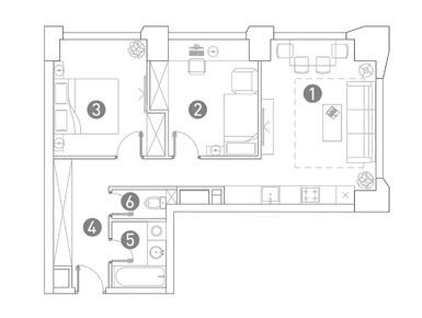
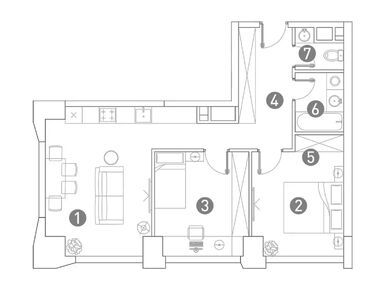
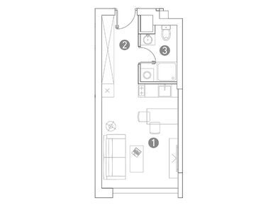
Планировки и типы помещений
В конце января 2026 года в продаже есть 131 квартира, в том числе 9 готовых. Площадь лотов — от 25,8 до 125,4 кв. м. Особенности планировок: евроформат, несколько санузлов, мастер-спальни, гардеробные, террасы. Чистовая отделка не предусмотрена, цены — от 16,3 млн рублей. Застройщик предлагает купить квартиру в ипотеку, рассрочку или по программе trade-in.
Для сравнения: ближайшие соседи ЖК «Very на Ботанической» — дом «Достижение» от Sminex (элитный проект рядом с парком Останкино, сдан в эксплуатацию, цены — от 21 млн рублей за 25-метровую студию) и квартал «Монс» от «Брусники» (бизнес-класс в Бутырском районе, первый корпус введут в III квартале 2027 года, цены — от 24,83 млн рублей за студию с отделкой white box площадью 44,1 кв. м).
Инфраструктура и удобства для жителей
В квартале работает термальный комплекс с эксплуатируемой кровлей. Проектом предусмотрен детский сад на 100 мест, есть подземный паркинг и кладовые. В лобби — лаундж-зоны и детские игровые комнаты.
Рядом с новостройкой, помимо крупных зеленых зон, есть магазины, пункты выдачи заказов, спорткомплекс, детские сады, школы и другие объекты инфраструктуры.
Преимущества проекта
· Надежный застройщик.
· Разнообразные планировки квартир.
· Есть квартиры с видом на парк
· Собственная и районная инфраструктура.
· Экологически благоприятная локация, соседство с крупными парками.
Технические параметры
Класс энергоэффективности — А+
Система «Умный дом» — есть
Тип остекления — стандартное и панорамное
Наличие подземного паркинга — есть
Комментарий эксперта
Жилой комплекс «Very Ботанический сад» позиционируется как эко-квартал, и с этим сложно не согласиться. Новостройка расположена в одной из самых зеленых локаций Москвы, на территории бывшей гостиницы «Останкино», и почти со всех сторон окружена парками. В пешей доступности от жилого комплекса имеются Ботанический сад и парк Останкино.
Транспортная доступность ЖК не идеальна: до станций метро «Фонвизинская» и «Владыкино» не меньше 20 минут пешком. Тем, кто предпочитает передвигаться на машине, придется учитывать дорожные пробки. Без них путь до проспекта Мира займет около 10 минут, до ТТК — 15 минут.
Еще один нюанс: практически вплотную к двум корпусам новостройки прилегает Ботаническая улица с оживленным движением и, соответственно, автомобильными выхлопами. Но, по логике, большой зеленый массив должен нивелировать возникающий негативный эффект.
Метро «Владыкино» → Пройти пешком 440 метров до остановки (5 минуты) → Остановка «Кинотеатр Рига» → Автобусы № т73, т36, 524, 803 (4 минуты в пути) → Остановка «Оранжерея Ботанического сада» → Пройти пешком 173 метра (2 минуты).