


















































































Проект «Мираполис» строится в Ярославском районе рядом со станцией МЦК «Ростокино» и нацпарком «Лосиный остров».
Надежность застройщика
Группа компаний «Основа» — девелоперская и инвестиционная компания, образована в 2016 году. Застройщик развивает четыре основные направления: девелопмент «умных домов», управление коммерческой недвижимостью, инвестиции в семейную досуговую инфраструктуру и высокотехнологичные проекты. Компания имеет 15 жилых проектов в столичном регионе, эксклюзивные общественные пространства и разнообразные технологии.
Описание проекта «Мираполис»
«Мираполис» расположен на Проспекте Мира, всего в 500 метрах от национального парка «Лосиный остров». Жителям доступны природное пространство и возможность проводить время на свежем воздухе.
В 8 минутах ходьбы находится станция МЦК «Ростокино». Рядом с новостройкой есть автобусные остановки, можно доехать до метро «ВДНХ» и «Семеновская».
Экологическая обстановка в Ярославском районе является приемлемой, основной источник загрязнения воздуха здесь — загруженные дороги. Район пересекает Ярославское шоссе, по границам проходят МСД и МКАД. На территории района есть несколько скверов, к нему примыкает национальный парк «Лосиный остров».
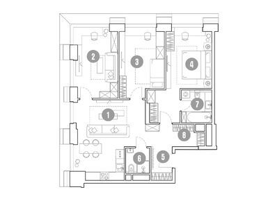
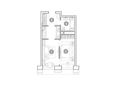
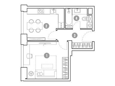
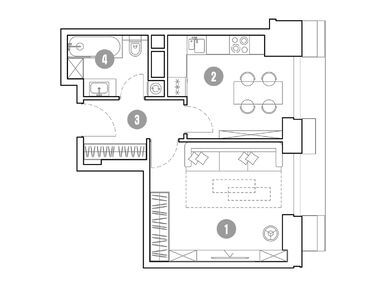
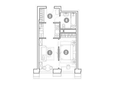
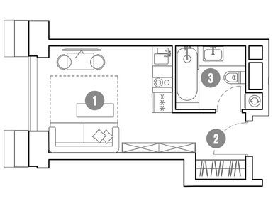
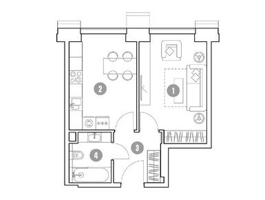
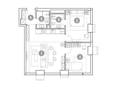
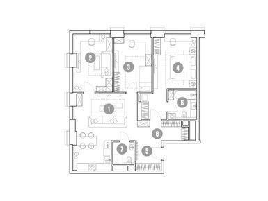
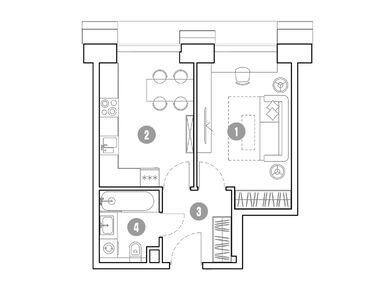
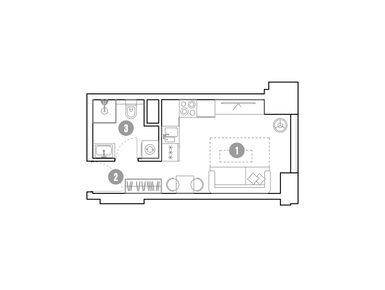
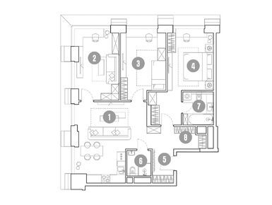
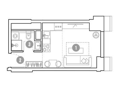
Квартал бизнес-класса «Мираполис» состоит из четырех небоскребов высотой 33–35 этажей. В середине августа 2024 года в продаже представлены студии, 1-, 2-, 3- и 4-комнатные лоты евроформата площадью от 19,6 до 123,7 кв. м. Предусмотрена опция дозаказа отделки white box. Цены — от 7,5 млн рублей. Ввод первого корпуса в эксплуатацию намечен на II квартал 2026 года.
В приватном дворе разместятся детская площадка и места для отдыха, спортивная площадка, зона фитнеса и йоги, лаундж-зона, амфитеатр, сад для медитации и общественная гостиная.
Инфраструктура
Собственная инфраструктура проекта включает торговый центр, супермаркет, магазины, рестораны и кафе, объекты сферы услуг, коворкинги и офисы, фитнес-клуб, бассейн и SPA.
Кроме того, «Мираполис» находится в непосредственной близости от крупных торговых и бизнес-центров, вузов и медицинских клиник.
Район, в котором расположен «Мираполис», отличается хорошей экологией. Важно отметить, что соседство с национальным парком «Лосиный остров» обеспечивает возможность наслаждаться окружающей средой, свежим воздухом и активно проводить время на природе.
Плюсы и минусы
«Мираполис» представляет собой современный проект бизнес-класса, обеспечивающий высокий уровень комфорта для своих резидентов. Система управления «Умный дом» автоматизирует процессы в жилом комплексе, позволяя жильцам управлять освещением, отоплением и другими функциями с помощью смартфона или планшета. Функциональные лобби с дизайнерской отделкой создают стильную и привлекательную атмосферу в общественных зонах.
Среди минусов можно назвать формат лотов, который подходит не всем покупателям, а также расположение проекта в окружении достаточно крупных транспортных артерий. Этот недостаток отчасти нивелируется удобным сообщением с МЦК.
МЦК «Ростокино» → Пройти пешком 600 метров (7 минут).
Метро «Свиблово» → Пройти пешком 550 метров до остановки (2 минуты) → Остановка «Верхоянская улица» → Трамвай № 17 (6 минут в пути) → Остановка «МЦК Ростокино» → Пройти пешком 330 метров (4 минуты).