











































ЖК «Гоголь Парк» — жилой комплекс комфорт-класса в северной части города Люберцы Московской области.
Адрес новостройки: Люберцы, улица Гоголя, дом 3.
Надежность застройщика
Строительством ЖК «Гоголь Парк» занимается застройщик ГК «Основа». Компания была основана в 2016 году, на сегодняшний день в её портфеле 20 жилых проектов на разных стадиях реализации. В рейтинге московских девелоперов ГК «Основа» занимает 12 место по объемам строительства.
Офис продаж «Гоголь Парк» располагается по адресу: Московская область, город Люберцы, ул. 8 Марта, дом 48, корпус 1.
Описание ЖК
ЖК «Гоголь Парк» находится в Люберцах, в 800 метрах от станции метро «Лухмановская». До МКАД от комплекса всего 4,5 км, на машине можно доехать за 10 минут. Путь до Садового кольца на автомобиле займет около 40 минут, если не будет серьезных пробок. До ТТК примерно 20 км или полчаса езды.
Ранее застройщик (ГК «Основа») уже сдал здесь два 25-этажных дома (в 2020 и 2021 годах). В рамках третьей очереди строятся два монолитных жилых корпуса высотой 22 и 25 этажей с подземным паркингом на 180 машино-мест. Там же на подземном этаже разместятся кладовые. В двух минутах от новой очереди расположен многоуровневый наземно-подземный паркинг на 570 машино-мест с сервисами для автомобилей, а по периметру возводимых домов предусмотрены гостевые парковки. Сроки сдачи корпусов третьей очереди: II квартал 2025 года.
Треть придомовой территории (площадь которой составит 2,1 га) будет отведена под зеленые зоны: газоны, хвойные и лиственные деревья и кустарники, лианы из девичьего винограда и цветники из многолетних растений.
На остальной части внутреннего двора будут построены ротонды, игровые площадки для детей разных возрастов, огороженные теневым навесом, всесезонная спортивная площадка под крышей, а также зоны для прогулок и спокойного отдыха.
Входы в здания расположены на уровне земли, в просторных лобби будут организованы мягкие зоны ожидания, комнаты матери и ребенка, гостевые санузлы и помещения для хранения детских колясок и велосипедов.
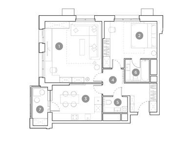
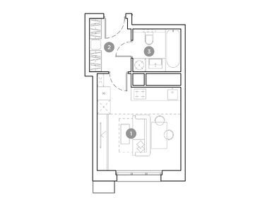
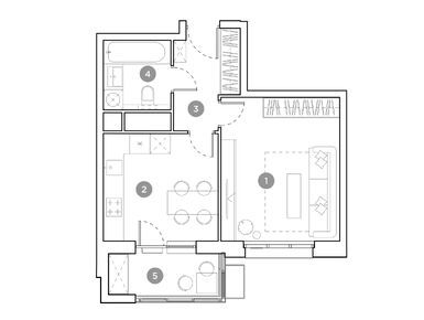
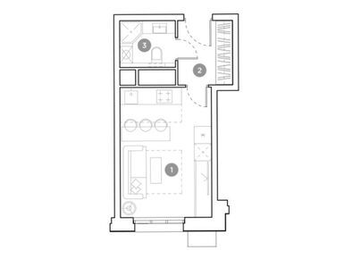
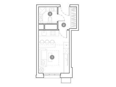
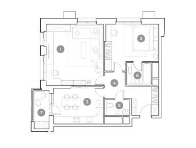
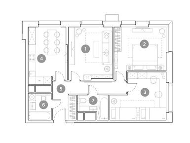
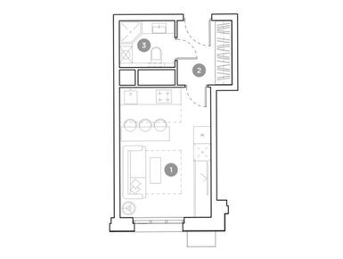
В ЖК «Гоголь Парк» запроектировано 810 квартир различных планировок: от студий площадью 22–29,7 кв. метра до одно-, двух- и трехкомнатных квартир. Площадь самого большого из имеющихся в продаже лотов составляет 76 кв. метров. В проекте есть как классические варианты планировок, так и квартиры евроформата, также есть лоты с балконами и угловым остеклением.
Самое доступное предложение в ЖК «Гоголь Парк» на конец декабря 2024 года — студия площадью 22 кв. метра, купить её можно за 6,9 млн рублей. Самый дорогой вариант стоит 21 млн рублей — это квартира с тремя изолированными спальнями, кухней площадью 13,6 кв. метров и двумя санузла. Общая площадь этого лота — 75,7 кв. метров. Все квартиры сдаются без отделки, но есть возможность заказать отделку white box.
В ЖК «Гоголь парк» купить квартиру можно в ипотеку, также застройщик предлагает рассрочку и вариант с покупкой в Trade-in.
Инфраструктура
Между корпусами комплекса застройщик планирует построить двухэтажный детский сад (на 75 мест) с отдельной игровой площадкой. После строительства девелопер передаст его городу. В шаговой доступности от ЖК находятся ещё несколько школ и детских садов.
Помещения на первых этажах корпусов отданы под коммерческую инфраструктуру. В уже построенных домах сейчас работают: танцевальная студия, кофейня, пункты выдачи товаров, магазины, салон красоты и муниципальный Дворец детского (юношеского) творчества.
Плюсы и минусы
Станция метро в шаговой доступности добавляет плюсов любому проекту. Кроме неё, здесь рядом есть школы, детские сады (а ещё один появится прямо во дворе комплекса) магазины и другие необходимые для комфорта сервисы.
С чем может возникнуть сложность, так это с парковочными местами. Подземный паркинг рассчитан всего на 180 машино-мест, еще 69 будут на придомовой территории, это при том, что в доме будет проживать 810 семей. Есть ещё многоуровневый паркинг на 570 машино-мест, но им уже пользуются жители домов первой очереди.
Станция метро «Лухмановская» → Пройти пешком 340 метров (4 минуты).
Узнайте, нужно ли заказывать пропуск при посещении отдела продаж компании Отдел продаж по телефону +7 (499) 719-45-41.