











ЖК «Малиново» станет продолжением частично реализованного проекта «Созвездие» в Восточном микрорайоне Звенигорода. Новую очередь ЖК под новым названием строит ГК «Основа».
Надежность застройщика
ГК «Основа» — известный столичный застройщик, на счету которого более 20 реализованных проектов общей площадью 2 млн кв. метров. Девелопер большое внимание уделяет инновационным технологиям в жилом строительстве, поэтому его комплексы отличаются повышенной комфортностью, экономичностью и экологичностью.
Описание ЖК
ЖК «Малиново» строится в экологически благоприятном районе Подмосковья — рядом лесные массивы, Москва-река, особо охраняемая территория «Мозжинский овраг». При этом локация хорошо развита с точки зрения социальной инфраструктуры и транспорта. В нескольких сотнях метров проходит ЦКАД, связь с Москвой обеспечивают Ильинское и Новорижское шоссе, также можно построить маршрут по платной дороге М-1. Время проезда до МКАД — около 40 минут, до центра Москвы — не менее часа без учета пробок.
Из Звенигорода до Москвы (метро «Строгино») курсируют прямые автобусы. Также есть автобусное сообщение с пос. Голицино, где находится одноименная железнодорожная станция.
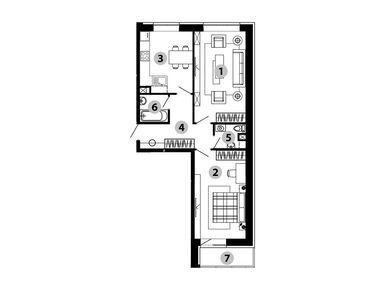
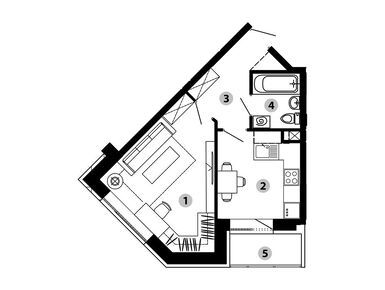
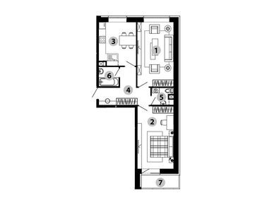
В рамках перезапущенного жилого комплекса ГК «Основа» построит два 12-этажных дома, как это было запроектировано изначально. Жилой фонд будет состоять из однокомнатных и двухкомнатных лотов, причем все «двушки» будут распашного типа с окнами на две стороны. Таким образом в ЖК «Малиново» можно будет купить квартиру одновременно с видом и на Звенигород, и на излучину Москвы-реки и заповедник. Площадь лотов — от 40 до 61 кв. метра.
Изначально декларируемый срок сдачи двух домов — конец 2024 года.
Инфраструктура
На территории ЖК появятся детские и спортивные площадки, а также плоскостная парковка. Собственных социальных объектов не запланировано, так как в пешей доступности есть всё необходимое — школы, детские сады, магазины, салоны красоты и спортивный комплекс.
Плюсы и минусы
У тех, кто ищет квартиру в новостройке в Звенигороде, выбор ограничен несколькими вариантами — среди них ЖК «Малиново» и ЖК «Малиновый ручей», но в последнем уже не получится купить недвижимость от застройщика.
ЖК «Малиново» — интересный проект для молодых семей или одиноких покупателей. Его преимущества: удобная и развитая локация, приятные виды из окон, продуманные планировки и доступные цены (от 4,3 до 9,2 млн руб. в июле 2024 года).
Среди недостатков – довольно большое расстояние до Москвы, таким образом, проект больше подходит тем, кто работает в Звенигороде или поблизости.
Метро «Кунцевская» → Пройти пешком 550 метров (5 минут) → Станция Кунцево → Электрички до Можайска, Голицыно, Звенигорода (37 минут) → Станция Голицыно → Пройти пешком 100 метров (1 минута) → Остановка «Станция Голицыно» → Автобус №22 или маршрутное такси №22 (21 минута) → Остановка «Игнатьево» → Пройти пешком 150 метров (1 минута).
Узнайте, нужно ли заказывать пропуск при посещении отдела продаж компании Отдел продаж по телефону +7 (499) 719-45-41.