













































«Level Академическая» — дом бизнес-класса в минуте ходьбы от одноименной станции метро.
Адрес новостройки: Москва, район Академический, ул. Профсоюзная, д. 2/22.
Надежность застройщика
«Level Академическая» — это проект застройщика Level Group (Левел Групп). Компания была основана в 2016 году. В портфеле девелопера девять реализованных проектов в Москве: бизнес-центр, школа «Летово», три клубных дома бизнес-класса, три жилых комплекса бизнес-класса и один комплекс комфорт-класса. Еще 11 проектов сейчас находятся на разных стадиях реализации.
Офис продаж проекта находится по адресу: Москва (м. Академическая), ул. Дмитрия Ульянова, 17, корпус 1.
Описание ЖК
ЖК «Level Академическая» строится в Юго-Западном административном округе Москвы, в 40 метрах от станции метро «Академическая». До ТТК можно добраться на машине за 5 минут, до Садового кольца — за 9 минут (если не будет пробок).
ЖК «Level Академическая» — это 19-этажный дом класса «бизнес», рассчитанный на 291 квартиру и 84 машино-места в двухуровневом подземном паркинге. Высокотехнологичный проект предполагает установку в доме собственных центральных водонагревателей, которые обеспечат подачу горячей воды круглый год, установку пяти лифтов с доступом в паркинг с жилых этажей и дополнительного лифта между 1 и -1 этажами. В лобби и на территории будет работать wi-fi, а безопасность обеспечит круглосуточная охрана и система видеонаблюдения.
Закрытый внутренний двор ЖК «Левел Академическая» разместится на стилобате, здесь появятся детская игровая площадка, зоны для занятий спортом, приватные локации для работы и отдыха на открытом воздухе.
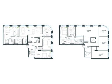
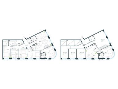
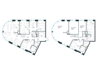
В комплексе запроектированы более 20 различных планировок: есть студии, двух-, трех- и четырехкомнатные квартиры евроформата (есть варианты с радиусными окнами, мастер-спальнями и окнами в ванной). Есть большие семейные квартиры с четырьмя спальнями и огромной кухней-гостиной. Также есть необычные форматы с патио, с увеличенной высотой потолков (до 6,6 м) или возможностью установки камина.
Площадь квартир в проекте варьируется от 17,9 кв. м до 143,1 кв. м. Сдаются они без отделки. Во всех квартирах спроектированы панорамные окна в пол.
Сейчас в «Левел Академическая» купить квартиру можно по цене от 18,7 млн рублей (все данные, приведенные в комментарии, актуальны на середину января 2025 года). За эти деньги можно приобрести студию площадью 21,3 кв. м. Самое дорогое предложение — пятикомнатная видовая квартира со вторым светом на 19-м этаже. Ее площадь составляет 143,1 кв. м, а стоимость — 178,6 млн рублей.
В ЖК «Level Академическая» можно купить квартиру со скидкой до 40% при условии 100% оплаты. Также покупатели могут воспользоваться предложениями банков-партнёров и оформить ипотеку на срок до 30 лет. Есть варианты купить недвижимость в рассрочку, по программе трейд-ин или обменять квартиру в одном из строящихся проектов Level Group на новую в «Level Академическая».
Инфраструктура
На 1 и -1 этажах ЖК «Левел Академическая» будет работать торговый центр с супермаркетом, кафе и различными магазинами, в которых можно будет купить всё необходимое — от продуктов до бытовой техники. Попасть в зону ретейла жители дома смогут на лифте через паркинг.
В шаговой доступности от комплекса работают несколько школ, детских садов, городская клиническая больница, поликлиника и несколько парков. Также рядом находятся несколько институтов и университетов, а до кампуса МГУ – 4 км.
Плюсы и минусы
Комплекс расположен в одном из самых обжитых и развитых районов престижного округа Москвы. Поблизости находится вся необходимая инфраструктура. Дом строится на перекрестке, от которого удобно будет выехать в любую сторону (хоть к ТТК или МКАД, хоть к центру города). Вход на станцию метро находится в 1 минуте от ЖК.
Из минусов можно отметить небольшое количество парковочных мест в проекте. На почти 300 квартир в подземном паркинге, согласно проектной декларации, предусмотрено всего 84 машино-места. При этом на придомовой территории парковочных мест, согласно документу, не будет.
Метро «Академическая» → Пройти пешком менее 100 метров (1 минута)
Метро «Профсоюзная» → Пройти пешком 1400 метров (17 минут)
Метро «Университет» → Пройти пешком менее 79 метров (1 минута) → Остановка «Метро «Университет» → Автобус №119 → Проехать 8 остановок (9 минут) → Остановка «Метро «Академическая» → Пройти пешком 167 м (2 минуты)
Узнайте, нужно ли заказывать пропуск при посещении отдела продаж компании Level Group (Левел Групп) по телефону +7 (495) 668-82-65.