Рейтинг@Mail.ru
Переверните экран
Новостройки Квартиры Ипотека Новостройки Москвы Новостройки Подмосковья Новостройки Новой Москвы Готовые новостройки Новостройки на карте Акции от застройщиков Коммерческие помещения Продавцы и застройщики Панорамы новостроек Видеообзор новостроек Экспертиза новостроек Экология Москвы и Подмосковья Студии 1-комнатные 2-комнатные 3-комнатные Квартиры на карте Ипотечный калькулятор Семейная ипотека Военная ипотека Банки и программы Медиа Новости недвижимости Мнение эксперта Аналитика рынка Покупателю Экспертиза новостроек Эксперты и авторы О проекте Контакты Реклама на сайте Vk Youtube Telegram Дзен Машиноместа Апартаменты #траншевая ипотека #рассрочка IT-ипотека Квартиры со скидками до 35% Видео 360° новостроек Субсидированная застройщиком Rutube Поиск дома в Москве Программа реновации в Москве Новостройки премиум-класса Новостройки бизнес-класса Рассрочка Траншевая ипотека Дома и коттеджи Бизнес-центры Бизнес-центры в Москве Бизнес-центры рядом с метро Строящиеся бизнес-центры Бизнес-центры класса A Бизнес-центры класса B

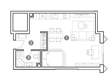
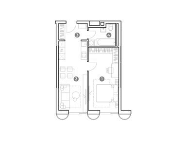
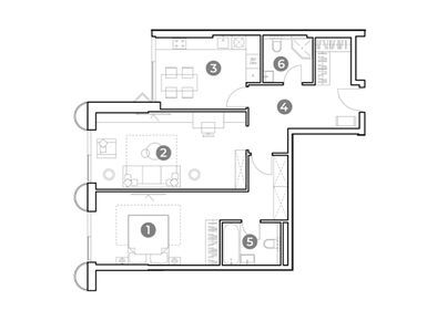
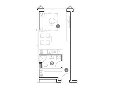
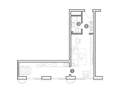
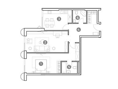
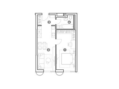
Планировки в NAMETKIN TOWER (Наметкин Тауэр)

Москва, ЮЗАО, Черемушки
от 11 до 47.7 млн
 
Цены за помещения от 5 февраля
по данным официального сайта
Звоните, мы ещё работаем!
Зафиксировать цену
ГК «Основа»
ГК «Основа»
09:00 — 21:00
Заказать обратный звонок
Задать вопрос
Посмотреть все спецпредложения

Скидки и спецпредложения от застройщиков

Выгодные предложения на новостройки

Квартиры от застройщиков с акциями

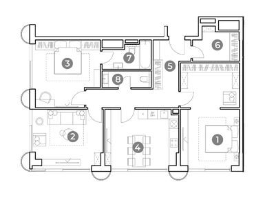
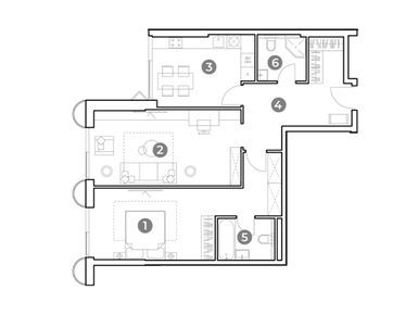
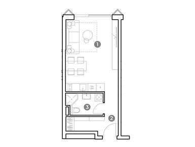
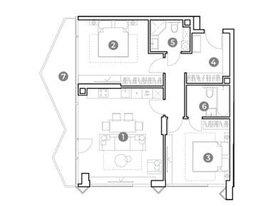
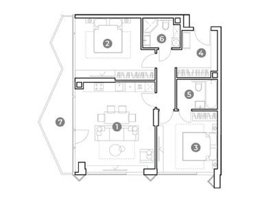
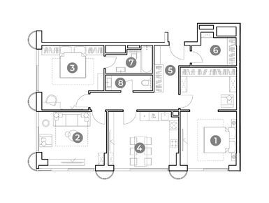
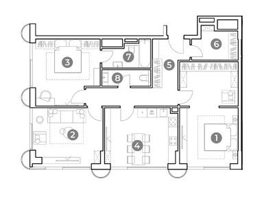
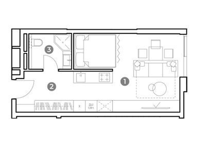
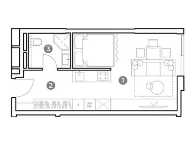
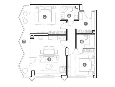
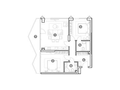
Планировки четырехкомнатных помещений в NAMETKIN TOWER (Наметкин Тауэр)

Специальные предложения на новостройки

Отзывы о NAMETKIN TOWER (Наметкин Тауэр)

Самый полезный отзыв
К
Карина
19 февраля 2024
Оценка:
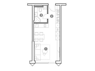
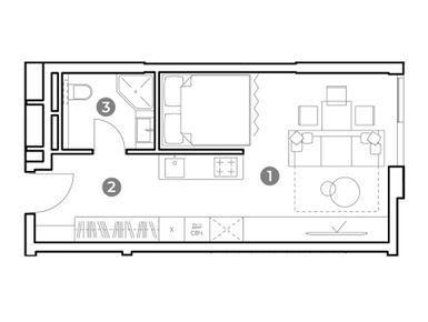
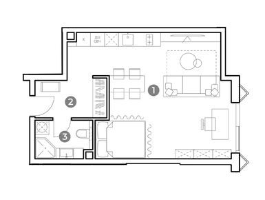
Планировки
Внешний вид фасада
Прежде чем поехать в офис продаж, то я записалась предварительно, поэтому кто хочет поехать "на удачу" не рекомендую, так как офис работает исключительно по предварительной записи. Нам все наглядно показали, все устроило нас. Отдельно хочется отметить, что налог на недвижимость всего составит 0,5%, пока пониженная ставка обращайтесь в офис продаж.
Ответить
Полезный отзыв?
Самый новый отзыв
V
Vlada
04 февраля
Оценка:
Голландские архитекторы создают крутой проект. Высокие потолки, панорамные окна, а главный фишка лаунж-зона на 25 этаже с баром и видами на Москву. Хочешь работай в коворкинге, хочешь играй в бильярд или просто отдыхай у бассейна. Во дворе никаких машин, только зоны отдыха и спорта. Рядом парки и вся инфраструктура под рукой.
Ответить
Полезный отзыв?
Добавьте отзыв, заполнив личные данные, или сначала войдите на сайт, тогда информация будет автоматически взята из личного профиля.
Оценка*