



































ЖК «Кронштадтский 9» находится на севере Москвы, в Головинском районе. Локация отличается сформированной инфраструктурой и близостью к крупным паркам и Химкинскому водохранилищу.
Надежность застройщика
Застройщик с 30-летним опытом – ПИК – возводит ЖК «Кронштадтский 9» по своему стандарту, но с некоторыми улучшениями: вместо корзин под кондиционеры здесь есть техническая ниша, аккуратно скрытая за фасадом, предусмотрена система приточной вентиляции, уменьшена этажность зданий и число квартир на этаже, зато площадь самих квартир стала больше, а в квартирах предлагается предчистовая отделка.
Описание ЖК
Первое, на что обращаешь внимание при знакомстве с проектом, — прекрасная транспортная доступность. Станция метро «Водный стадион» расположена менее чем в 200 метрах от крайних домов ЖК. Ленинградское шоссе расположено близко, но отделено от комплекса жилым массивом. Благодаря удобным развязкам выехать на магистраль можно всего за 3 мин., хотя в часы-пик не исключены заторы. Дорога на машине до ТТК займет 15 мин., до делового центра «Москва-Сити» или Кремля — около получаса.
Экологическая обстановка в районе приемлемая для комфортной жизни. В самом районе есть Крондштадтский сквер, усадьба Михалково с живописными прудами и парк Петра Алексеева — все это в 15–20 мин. ходьбы. Так же за 15 мин. можно дойти до парка Дружбы, Химкинского водохранилища и парка Северного речного вокзала, в 20 мин. парк Покровское-Стрешнево.
«Кронштадтский 9» — это 10 монолитных корпусов высотой от 21 до 32 этажей, из которых 7 уже сданы и введены в эксплуатацию. Ещё 3 корпуса будут закончены в I квартале 2028 года.
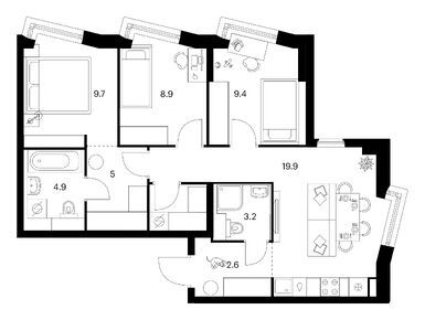
В ЖК «Кронштадтский 9» предлагаются квартиры с европланировками и предчистовой отделкой. В продаже есть студии площадью 23–26 кв. м, однокомнатные — 36,4–46,7 кв. м, двухкомнатные — 55,7–88,7 кв. м, трехкомнатные — 82,8–96,6 кв. м. Есть лоты с гардеробными, гостевыми санузлами, постирочными, мастер-спальнями.
Купить квартиру в ЖК «Кронштадтский, 9» можно по предоплате или в ипотеку, в том числе с использованием программ господдержки для семей с детьми.
У жителей комплекса будет своя закрытая территория, доступ на которую будет осуществляться через подъезды или калитку с магнитным замком. Здесь появятся качели, домики и песочницы для детей, места для отдыха и занятий спортом, озеленение.
Инфраструктура
В рамках проекта запланировано строительство 2 детских садов (один из которых уже работает), каждый из которых сможет вместить до 100 детей. На первых этажах зданий откроются магазины, пекарни, аптеки и другие сервисы. Под домами — подземный паркинг на 830 машино-мест.
В пешей доступности от новостройки есть несколько муниципальных детских садов и школ, а также детская и взрослая поликлиники. Практически через дорогу расположен торговый центр «Водный», а на машине или общественном транспорте за 5–10 минут можно добраться и до крупного ТЦ «Метрополис».
Плюсы и минусы
Комплекс имеет удачное местоположение, которое отличается высокой транспортной доступностью, развитой инфраструктурой, близостью парков и водоемов. Улучшенные планировки и увеличенные площади квартир в сочетании с предчистовой отделкой обеспечивают будущим хозяевам возможность реализовать собственные дизайнерские идеи и адаптировать пространство под собственные потребности.
Минусом проекта, как и у большинства всех прочих ЖК в Москве, будет малое количество парковочных мест на придомовой территории. Чтобы ежедневно не думать о том, куда поставить автомобиль, в ЖК «Кронштадтский 9» можно купить место в подземном паркинге.
Метро «Водный стадион» → Пройти пешком 36 метров → Остановка «Ст. м «Водный стадион» → Автобусы №65, 65к, 72 или маршрутное такси №595м, 639м, 65м, 72м, 8м (6 минут) → Остановка «Академия туризма» → Пройти пешком 300 метров (4 минуты)
Проект расположен в 700 метрах от Ленинградского шоссе и в 3 минутах ходьбы от метро «Водный стадион». Добраться до МКАД на автомобиле можно за 16 минут.