
























ЖК «Алтуфьевское 53» возводится на Алтуфьевском шоссе в одноименном районе на северо-востоке Москвы, ближайшая станция метро — «Отрадное».
Надежность застройщика
ПИК является одним из крупнейших застройщиков в России, компания работает на рынке жилья 30 лет. За это время девелопер реализовал множество проектов и приобрел определенный авторитет среди покупателей жилья. ПИК также уделяет внимание внедрению новых технологий и инноваций в свою деятельность, в частности, использует системы управления жизненным циклом зданий (создание его умной цифровой копии), «умные» технологий в жилых комплексах и другое. Кроме того, ПИК придерживается политики прозрачности, в том числе предоставления клиентам всей необходимой информации о проекте и стадиях его готовности, а также гарантийной поддержки после покупки.
Описание жилого комплекса «Алтуфьевское 53»
ЖК комфорт-класса «Алтуфьевское 53» находится в 15 минутах езды от станции метро «Отрадное» и в 25 минутах ходьбы от станции Дегунино МЦД-1. Также на автобусах можно доехать до метро «Владыкино», «Бибирево», «Фонвизинская», «Войковская» и «ВДНХ», МЦД Грачевская. Комплекс имеет удобный выезд на МКАД и ТТК благодаря своему расположению на Алтуфьевском шоссе. Время в пути на авто до ТТК — 20–30 минут, до Садового кольца — 25–35 минут в зависимости от пробок.
Алтуфьевский район — не самый экологически благополучный в Москве. Единственной большой зеленой зоной здесь является сквер у пруда Марс, район пересекает Алтуфьевское шоссе. На территории района расположена часть промзоны «Алтуфьевское шоссе».
В рамках проекта «Алтуфьевское 53» будет построено несколько монолитных корпусов. Корпуса 2.1 и 2.2 построены и сданы. Завершение строительства корпуса 1.1 запланировано на 4 квартал 2028 года.
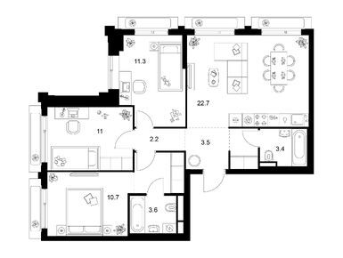
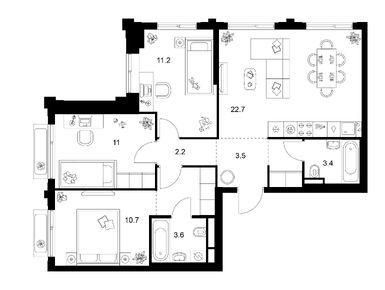
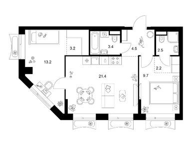
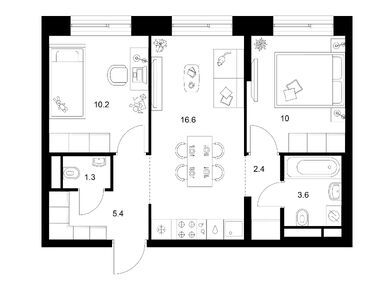
В продаже представлены студии, 1-, 2- и 3-комнатные квартиры площадью от 24 до 84,5 кв. м. Есть различные варианты планировок, включая лоты с гардеробной, кухней-гостиной и двумя санузлами. В корпусах 1.1 и 2.1 жилье будет сдаваться с готовой отделкой, в корпусе 2.2 с предчистовой. Сейчас продажи ведутся в корпусе 1.1.
Во дворах-парках разместятся детские и спортивные площадки, скамейки и беседки.
Инфраструктура
Жилой комплекс «Алтуфьевское 53» расположен в СВАО, в районе с развитой инфраструктурой, где находятся детские сады, школы, торговые центры, фитнес-клубы, бассейн. На территории квартала будут построены два детских сада и школа, на подземных уровнях жилых корпусов запроектированы паркинги с машино-местами и кладовыми. До сквера у пруда Марс — 5 минут пешком.
Плюсы и минусы
Среди преимуществ этого ЖК — расположение в «старой» Москве, с удобным выездом на транспортные магистрали. Развитая инфраструктура в районе, включая социальные и спортивные объекты. Наличие уютных парков с детскими площадками и местами для отдыха, а также спортивных площадок на территории комплекса. Функциональные планировки квартир, отделка и удачное расположение домов, обеспечивающее хорошую инсоляцию.
Среди минусов – соседство с веткой железной дороги и промзоной, дефицит зеленых насаждений, довольно большое расстояние до метро.