













































































































































































































































































Жилой комплекс «Левел Лесной» находится в Красногорском районе Московской области. Ближайшая станция метро — «Пятницкое шоссе», до нее порядка 25 минут пешком.
Надежность застройщика
Проект реализует компания Level Group, основанная в 2016 году. Застройщик реализует проекты в востребованных локациях Москвы. Помимо жилья, компания строит социальные и коммерческие объекты, в их числе школа «Летово», которая заняла первое место в мировом рейтинге.
Описание ЖК
Жилой комплекс «Левел Лесной» — первый проект Level Group за пределами Москвы. Весной этого года девелопер выкупил у компании «ПроГород» проект строительства жилого комплекса «Город в лесу». Level Group завершит строительство комплекса и построит новые очереди.
На момент сделки в жилом комплексе было построено 86 тыс. кв. м жилья и строилось еще 95,5 тыс. кв. м. Проект получил новое название — Жилой комплекс «Левел Лесной».
Большую часть Красногорского городского округа занимают хвойные и смешанные леса, поэтому экологическая ситуация здесь хорошая. Основное негативное влияние оказывают автомобильные дороги.
Жилой комплекс «Левел Лесной» строится в поселке Отрадное в окружении парков, от Пятницкого шоссе его отделяет лесополоса. На территории жилого комплекса есть парк площадью 7 га.
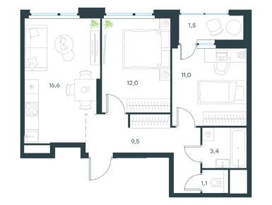
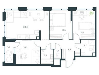
Сейчас в продаже имеются квартиры в корпусах 24/1, 24/3 и 27. Высота корпусов не превышает 15 этажей, площадь лотов — от 27,53 кв. м до 142,49 кв. м. Планировки — от студий до вариантов с четырьмя спальнями, кухней-гостиной и террасой. Уникальные форматы представлены трехсторонними квартирами, с угловым остеклением, с окнами в пол, с окном в ванной.
Квартиры в корпусе 24/1 продаются без отделки, в корпусах 24/3 и 27 — с предчистовой отделкой. Выдача ключей запланирована для корпуса 27 на IV квартал 2025 года, для корпусов 24/1 и 24/3 — на II квартал 2027 года.
Дворы закрыты от машин, для жителей обустроены детские и спортивные площадки, места для отдыха. Для автомобилей имеются подземные паркинги.
До станции метро «Пятницкое шоссе» можно дойти за 25 минут. Рядом с домами останавливаются автобусы и маршрутки, можно доехать до станций метро «Сходненская», «Тушинская», «Пятницкое шоссе» и «Волоколамская» и станции МЦД Павшино.
Инфраструктура
На территории жилого комплекса «Левел Лесной» уже работают три частных детских сада, частная школа и множество объектов инфраструктуры на первых этажах: магазины, салоны красоты, кафе, аптеки, стоматология, химчистка, фитнес, пункты выдачи товаров и др.
Супермаркеты, магазины, клиники, аптеки, почта, рестораны, салоны красоты, спортивные и творческие секции, детские развивающие центры имеются и в пешей доступности в Отрадном, как можно увидеть на карте. В 12 минутах пешком находится ТРЦ «Отрада» с продуктовым и строительным гипермаркетами, множеством магазинов, фудкортом, развлечениями для детей и кинотеатром.
Плюсы и минусы
Жилой комплекс «Левел Лесной» строится в привлекательной локации — в окружении лесов и относительно недалеко – по подмосковным меркам – от метро. Проект обеспечен всей необходимой инфраструктурой, нужные объекты имеются и за пределами жилого комплекса.
Минус у проекта только один: он находится не в Москве (а это отсутствие московской прописки), и в обозримом будущем метро в пешей доступности не появится. Однако до станций подземки и МЦД можно доехать на автобусе, маршрутке или велосипеде и даже дойти пешком – например, до «Пятницкого шоссе». А цены на квартиры здесь ниже, чем в Москве, — от 6,9 млн рублей за студию площадью 28,9 кв. м (на середину июня 2024 года).
Метро «Пятницкое шоссе» → Пройти 120 метров пешком (менее 1 минуты) → Остановка «Метро «Пятницкое шоссе» → Автобусы № 1016, 400к, 32э, 575, маршрутные такси № 1212к, 570, 575 (7 минут в пути) → Остановка «Санаторий» → Пройти пешком 590 метров (7 минут)
От жилого комплекса до МКАД — 6 км, до центра Москвы — 22 км, до метро «Митино» — 4 км. До метро «Пятницкое шоссе» можно доехать за 10-15 минут или дойти за 35 минут пешком.
Узнайте, нужно ли заказывать пропуск при посещении отдела продаж компании Level Group (Левел Групп) по телефону +7 (495) 157-07-18.