







































































































































































































В подмосковном Одинцово продолжается строительство масштабного ЖК комфорт-класса «Одинбург», в котором реализуются типовые и эксклюзивные квартиры с видом на Дубковский лес.
Надежность застройщика
Застройщиком выступает AFI Development. Компания работает с 2001 года, свою деятельность она начинала в Ставропольском крае, но на сегодняшний день является активным игроком и лидером на московском рынке. Диверсифицированный портфель девелопера составляет 3,6 млн кв. м недвижимости, из них более 1,6 млн кв. м – на территории Москвы и Московской области.
Описание ЖК
ЖК «Одинбург» расположен в северной части Одинцово, в 13 км от МКАД. По платной трассе добраться от Москвы до новостройки можно за 15 минут или за 23 минуты — по Минскому шоссе. Минимальное время в пути до Садового кольца — полчаса автомобилем. В 6 минутах езды от ЖК «Одинбург» расположена станция Отрадное, от которой — 40 минут в пути до Белорусского вокзала или 21 минута до метро «Кунцевская».
Сам ЖК окружен зелеными массивами (Подушкинский лес, Дубковский лес), которые нивелируют негатив от соседства с транспортными магистралями.
Комплекс состоит из 11 монолитных корпусов высотой от 16 до 24 этажей. Несколько многосекционных зданий образуют полукруг с лучами, другие — стоят особняком. Большая часть проекта уже реализована, на стадии строительства 3 корпуса, которые будут последовательно сданы во II и III кварталах 2025 года.
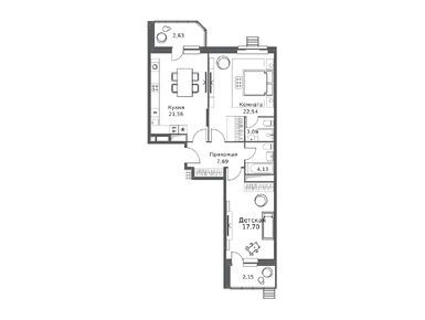
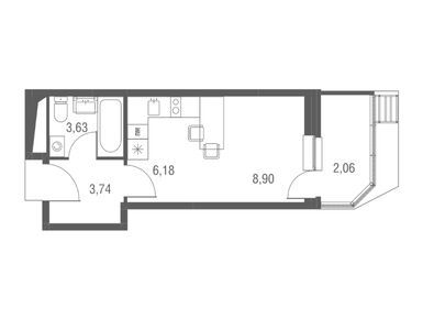
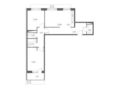
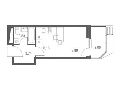
Купить квартиру в ЖК «Одинбург» можно в любом из строящихся корпусов. Планировки в основном типовые, от студий до «трешек», однако есть и предложение двухуровневых квартир. Площадь лотов варьируется от 24 до 91 кв. м., а высота потолков — от 2,8 до 5,8 м. Квартиры в ЖК «Одинбург» предлагаются без отделки и в состоянии white box.
Вопрос с парковкой решается за счет двух паркингов: подземного и 8-уровнего наземного. Владельцы квартир в ЖК «Одинбург» могут выбрать и купить наиболее удобное и подходящее по цене машино- или мотоместо.
Комплексное благоустройство включает в себя места для прогулок, отдыха и занятий спортом, на территории также есть закрытые детские площадки и центральная площадь с фонтаном.
Инфраструктура
Жилой комплекс позиционируется как «город в городе». В той части проекта, что уже введена в эксплуатацию расположена всевозможная инфраструктура — от продуктовых магазинов до салонов красоты. На территории ЖК уже работают детский сад, центр развития ребенка, а ближайшая городская школа — в 3 минутах ходьбы. В радиусе 15 минут ходьбы расположены городская больница, военно-клинический госпиталь, детская больница, две поликлиники и другие учреждения здравоохранения.
Плюсы и минусы
В ЖК «Одинбург» в Одинцово можно купить функциональную и недорогую квартиру для собственного проживания. Особенно привлекателен этот проект для семей с детьми, которым важно природное окружение и насыщенная инфраструктура рядом с домом.
Масштабность проекта одновременно является его плюсом и минусом. Многие из жителей в своих отзывах пишут, что здесь «слишком много народу», а также отмечают слабую шумоизоляцию в квартирах.
Метро «Кунцевская» → Пройти пешком 870 метров до остановки (10 минут) → Остановка «Улица Клочкова» → Автобус № 339 (49 минут в пути) → Остановка «Комбинат бытового обслуживания» → Пройти пешком 530 метров (6 минут).
Метро «Парк Победы» → Пройти пешком 69 метров до остановки (1 минуту) → Остановка «Метро «Парк Победы» → Автобус № 339 (1 час в пути) → Остановка «Комбинат бытового обслуживания» → Пройти пешком 530 метров (6 минут).
Метро «Юго-Западная» → Пройти пешком 230 метров до остановки (3 минуты) → Остановка «Метро «Юго-Западная» → Автобус № 461 (51 минута в пути) → Остановка «Комбинат бытового обслуживания» → Пройти пешком 590 метров (7 минут).
Ж/д станция Москва (Белорусский вокзал) → 39 минут в пути → Ж/д станция Отрадное → Пройти пешком 2,4 км (29 минут).
Транспортная доступность жилого комплекса обеспечена непосредственной близостью с Минским и Рублево-Успенским шоссе, а также с новой платной трассой, благодаря которой до МКАД можно добраться в течение 7 минут. Рядом с микрорайоном имеются остановки автобусов и маршрутных такси; в 5 минутах транспортом расположена железнодорожная станция «Отрадное», а в 10 минутах – «Одинцово». Проектом предусмотрено создание сети внутриквартальных дорог с остановками общественного транспорта.
Узнайте, нужно ли заказывать пропуск при посещении отдела продаж компании Отдел продаж по телефону +7 (499) 719-45-41.