





















































Жилой комплекс «Аникеевский» строится в Красногорском районе Подмосковья в 5 минутах езды от станции Аникеевка МЦД-2 и в 12 минутах езды от МКАД. В составе проекта предусмотрены детские сады и поликлиника. Проект реализует ГК «Гранель».
Надежность застройщика
ГК «Гранель» образована в 1992 году, в настоящее время она включена в список системообразующих компаний РФ. В портфеле девелопера — 6,5 млн кв. м недвижимости. Сейчас «Гранель» строит несколько жилых комплексов в Москве и Подмосковье, входит в топ-20 российских застройщиков по объему текущего строительства (в рейтинге Единого ресурса застройщиков), а в Московской области — в топ-5.
Расположение и транспортная доступность проекта
ЖК «Аникеевский» возводится вблизи деревни Николо-Урюпино городского округа Красногорск, примерно в 25–35 минутах ходьбы от станции Аникеевка МЦД-2. До этой станции можно доехать и на маршрутке — остановки есть рядом с домами. Также маршрутки курсируют до станций Павшино, Пенягино и Трикотажная МЦД-2, станции метро «Тушинская». В перспективе на Новорижском шоссе откроются станции Рублево-Архангельской линии метро.
Экология и особенности локации
Экология в Красногорском городском округе удовлетворительная, большую его часть занимают леса. Работающие промышленные предприятия не оказывают серьезного негативного воздействия, а благодаря розе ветров сюда не попадает грязный воздух из Москвы. Основной источник загрязнения — автомагистрали.
«Аникеевский» возводится в центре лесного массива, вдали от производств и дорог, так что с экологической ситуацией здесь все в порядке.
Архитектура и благоустройство
ЖК комфорт-класса «Аникеевский» строят в два этапа. Первая очередь включает малоэтажные дома (4–7 этажей), в составе второй возведут 14-этажные корпуса. Все дома в проекте будут оформлены в едином стиле и цветовой гамме — спокойные бежевые, песочные и коричневые тона.
Во дворах предусмотрены детские и спортивные площадки, места для отдыха.
Планировки и типы помещений
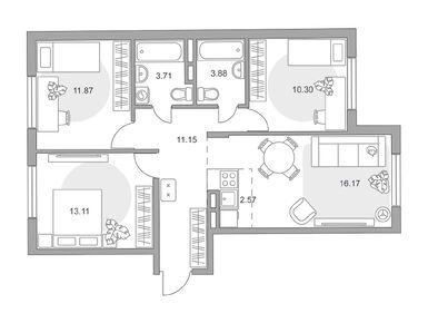
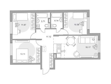
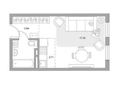
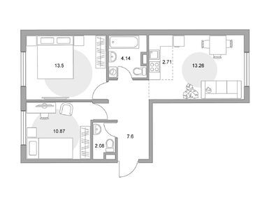
В марте 2026 года в продаже есть 433 квартиры в строящихся корпусах. Площадь лотов — от 21,05 до 75,49 кв. м. Особенности планировок: евроформат, гардеробные, два окна в студиях, гостевые санузлы. Некоторые квартиры имеют неправильную форму.
Жилье продается без отделки и с отделкой, цены — от 4,6 млн рублей за студию без отделки площадью 22,92 кв. м. Купить квартиру можно в ипотеку.
Инфраструктура и удобства для жителей
На первых этажах корпусов запроектированы коммерческие помещения, уже работают магазин стройматериалов, пункт выдачи заказов и аптека, скоро откроется поликлиника. Работает детский сад, планируется построить еще один.
В соседнем ЖК «Лесобережный» (он уже полностью построен) есть магазины, пекарня, пункты выдачи заказов, аптеки, фитнес-клуб, салон красоты. На территории этого жилого комплекса работает Опалиховская гимназия (дошкольное и школьное отделение), около школы есть лыжная трасса. Рядом с ЖК «Аникеевский» — лесные массивы и река Липка.
Преимущества проекта
1. Экологически благоприятная локация.
2. Собственная инфраструктура.
Технические параметры
Класс энергоэффективности — С
Тип остекления — стандартное
Наличие подземного паркинга — нет
Комментарий эксперта
ЖК «Аникеевский» можно назвать настоящим оазисом — мало- и среднеэтажные дома в окружении лесов, на придомовой территории будут высажены ели, сосны и можжевельник. Здесь уже появляется собственная инфраструктура.
Такие недостатки, как отдаленность от станций метро и МЦД, а также неизбежные пробки на Новорижском шоссе, нивелируются ценами, они в этом проекте достаточно гуманные.
Метро «Волоколамская» → Пройти пешком 1,38 км до остановки (17 минут) → Остановка «Таможня» → Автобусы № 568, 540, 541, 549 или маршрутное такси № 151, 209к, 568к (6 минут в пути) → Остановка «Вокзальная улица» → Маршрутное такси № 21к (Лесобережный) (25 минут в пути) → Остановка «Заречная улица» → Пройти пешком 370 метров (4 минуты)
Метро «Волоколамская» → Пройти пешком 350 м до станции МЦД (4 минуты) → Станция МЦД «Волоколамская» → Электрички до станции МЦД «Павшино» (4 минуты в пути) → Станция МЦД «Павшино» → Пройти пешком 232 м до остановки (3 минуты) → Маршрутное такси № 21к (Лесобережный) (25 минут в пути) → Остановка «Заречная улица» → Пройти пешком 370 метров (4 минуты)
Узнайте, нужно ли заказывать пропуск при посещении отдела продаж компании ГК «Гранель» по телефону +7 (495) 926-98-50.