



































































«Солнечный Парк» — комплекс бизнес-класса в городе Щелково на северо-востоке Московской области, дома расположены рядом с парком и набережной реки Клязьмы.
Надежность застройщика
ЖК «Солнечный парк» — это проект застройщика «Р-Инвест» (непосредственно за этот проект отвечает дочерняя компания ООО «СЗ Олимп-Альянс»). Застройщик параллельно ведет еще два проекта в Щелково: ЖК «Дом на Сиреневой» и ЖК «Солнечная долина». На момент подготовки этого материала все дома уже сданы и введены в эксплуатацию.
Офис продаж проекта находится по адресу: Московская область, город Щелково, ул. Центральная, д. 71/1.
Описание ЖК
ЖК «Солнечный парк» расположен в центре подмосковного города Щелково, в 20 км от МКАД. Доехать от новостройки до Москвы на машине можно за 45 минут по Щелковскому или Ярославскому шоссе. До железнодорожной станции Воронок, от которой можно доехать на электричке до Ярославского вокзала, пешком около 1 км (12 минут ходьбы). До ближайшей станции метро («Щелковская») — 23 км, путь на машине займет более 35 минут, на общественном транспорте — не менее часа.
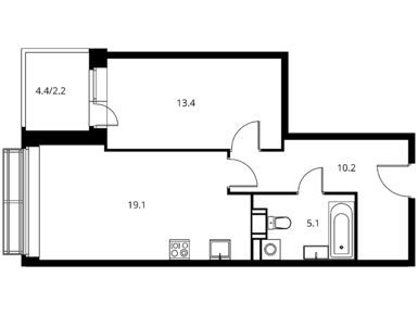
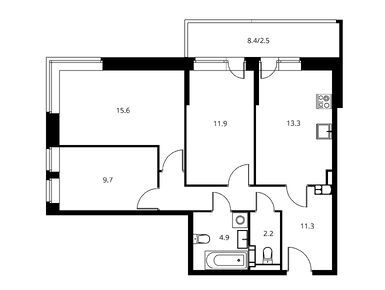
ЖК состоит из трех монолитно-кирпичных корпусов высотой 17 этажей, каждый из которых получил свое название: башня «Миллениум» (на 330 квартир), башня «Централ Парк» (на 167 квартир) и башня «Форест» (на 332 квартиры). Большая часть квартир в ЖК уже распродана, однако среди предложений ещё остаются квартиры разной площади и с разным количеством комнат.
В начале декабря 2024 года в ЖК «Солнечный парк» можно купить студию площадью 38 кв. метров, а также квартиры: однокомнатные (42-48 кв. метров), двухкомнатные (45-77 кв. метров), трёхкомнатные (78-83 кв. метра). В корпусе «Форест» квартиры реализуются с готовой отделкой, в «Централ Парк» — в формате предчистовой отделки, в корпусе «Миллениум» — без отделки.
Инфраструктура
В одноэтажной пристройке, которая расположится по длине всего ЖК, разместятся коммерческие объекты — здесь откроются кафе, магазины и различные сервисы.
Практически во дворе дома находится Щелковский парк культуры и отдыха с городским пляжем и набережной реки Клязьма. В шаговой доступности — школа тенниса, ФОК, стадион, скейтпарк.
Также рядом располагаются несколько детских садов, школ, Колледж экономики и права. В полутора километрах находится Щелковская городская больница и перинатальный центр.
Плюсы и минусы
У комплекса удачное расположение, которое сочетает в себе благоустроенный городской парк рядом с домом и развитую инфраструктуру центра города вокруг. Если нет необходимости ежедневно выбираться в Москву, то этот комплекс — хороший вариант. В противном случае, нужно отметить, что находится новостройка на значительном удалении от столицы. При этом здесь нет метро и (пока что) станций МЦД. Хотя станция электрички в пешей доступности может стать неплохой альтернативой автомобилю.
Метро «Щёлковская» → Остановка «Метро Щёлковская» → Автобусы № 349, 361, маршрутное такси № 361 (45 минут) → Остановка «Пенсионный фонд» → Пройти пешком 90 метров (1 минута)
Узнайте, нужно ли заказывать пропуск при посещении отдела продаж компании Отдел продаж по телефону +7 (499) 719-45-41.