






























































Жилой комплекс «Остафьево» строится в районе Щербинка Новомосковского административного округа в 11 км от МКАД по Варшавскому шоссе.
Надежность застройщика
Проект реализует ГК «Самолет», основанная в 2012 году. В портфеле девелопера — более 127 проектов в Москве, Подмосковье, Санкт-Петербурге, Ленинградской области и других регионах. «Самолет» занимает первое место в рейтинге Единого ресурса застройщиков по объемам текущего строительства в России, также он лидирует по этому показателю в Подмосковье, а в Москве занимает второе место.
Расположение и транспортная доступность проекта
ЖК «Остафьево» возводится в Щербинке (Новая Москва) по обе стороны Остафьевского шоссе. На территории квартала и рядом с ним есть остановки общественного транспорта, автобусы и маршрутки курсируют до станций Остафьево и Щербинка МЦД-2, метро «Бунинская аллея».
Для автомобилистов имеется выезд на Остафьевское шоссе, в 1,5 км от новостройки проходит скоростная хорда (участок дороги Варшавское шоссе – Андреевское – Яковлево), соединяющая Варшавское и Калужское шоссе.
Экология и особенности локации
Эксперты компании «ЭкоСтандарт» оценивают экологическую ситуацию в Щербинке как приемлемую. Району не хватает зеленых зон, на его территории работают несколько заводов, проходят Варшавское и Симферопольское шоссе, МЦД-2.
Жилой комплекс «Остафьево» расположен на Остафьевском шоссе. Рядом есть несколько небольших зеленых зон и водных объектов.
Архитектура и благоустройство
«Остафьево» — масштабный проект комфорт-класса с полноценной инфраструктурой. Часть корпусов введены в эксплуатацию, срок сдачи очередных домов — III квартал 2026 года.
Монолитные дома высотой 10–14 этажей выполнены в стиле современной классики. Дизайн-код проекта позиционируется как «Усадьба» — для отделки фасадов выбрана кирпичная кладка коричневых и темно-серых тонов. Облик корпусов дополняют панорамные балконы.
Территория квартала озеленена, для детей обустроены игровые зоны «Маяк» и «Алиса в стране чудес», предусмотрены места для спорта и отдыха, площадка для выгула собак, сеть велодорожек.
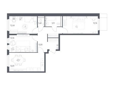
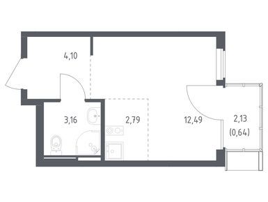
Планировки и типы помещений
В середине февраля 2026 года в продаже есть 191 лот площадью от 22 до 94,8 кв. м. Купить квартиру здесь можно с балконом или лоджией, гардеробной, мастер-спальней, постирочной, кухней-гостиной. Квартиры продаются без отделки, с предчистовой или чистовой отделкой, цены — от 8 млн рублей за студию площадью 26,8 кв. м.
Для сравнения: в радиусе 5 км от ЖК «Новая Щербинка» есть пять новостроек. Это «Алхимово» от ГК «Самолет» в Щербинке (готовый проект, цены от 9,2 млн рублей за студию с отделкой площадью 25,1 кв. м), «Юнино» от ПИК в Щербинке (четыре 17-этажных корпуса, два уже сданы, еще два будут введены в III квартале 2026 года. Цены — от 10,9 млн рублей за студию с отделкой площадью 20,2 кв. м), «Никольские луга» от ПИК в Южном Бутово (частично готовый масштабный проект, ближайший срок ввода — III квартал 2026 года, цены — от 9,8 млн рублей за студию с отделкой площадью 23,3 кв. м) и «Подольские кварталы» от ГК «Самолет» в Щербинке (первые четыре корпуса будут сданы в I квартале 2026 года, цены — от 7,5 млн рублей за студию без отделки площадью 22,28 кв. м).
Инфраструктура и удобства для жителей
На первых этажах построенных корпусов работают супермаркеты и магазины, пункты выдачи заказов, аптеки, фитнес-студия, салон красоты, кофейня и другие объекты. Открыты три детских сада и две школы, будут построены еще три детсада, одна школа, поликлиника и ТЦ с фудкортом. На территории квартала работает спорткомплекс.
В лобби предусмотрены мягкие зоны ожидания, помещения для хранения колясок и велосипедов. Для автомобилей — многоуровневые паркинги с автомойкой и автосервисом.
Рядом находятся парк Барыши и Березовая Карамзинская роща, пляж на берегу Молодцовского пруда, музей-усадьба «Остафьево», конный клуб.
Преимущества проекта
1. Московская прописка.
2. Разнообразие планировок.
3. Собственная инфраструктура.
Технические параметры
Класс энергоэффективности — А
Тип остекления — стандартное
Наличие подземного паркинга — нет
Комментарий эксперта
ЖК «Остафьево» — самодостаточный район со всей необходимой инфраструктурой, от магазинов до социальных объектов. Рядом есть зеленые зоны и места для отдыха.
Проект подойдет как для одиночек, так и для семей с детьми, а насыщенная собственная инфраструктура позволит не покидать жилой комплекс без особой надобности.
Минусом можно назвать отдаленность станций МЦД и метро, но до них можно добраться общественным транспортом.
Что гораздо более тревожит – так это переносы сроков ввода по четырем корпусам проекта: 20, 21, 22 и 23. Задержки ввода уже достигают 9 мес. (по одному из корпусов) и 1,5 года – еще по трем домам. Хотя, судя по дневнику строительства, корпуса уже возведены под крышу, в одном из них по состоянию на январь 2026 года велось остекление.
Ж/д. «Щербинка» → Маршрутное такси №1045 (10 минут в пути) → остановка «Аэропорт Остафьево» → (2 минуты)