Рейтинг@Mail.ru
Переверните экран
Новостройки Квартиры Ипотека Новостройки Москвы Новостройки Подмосковья Новостройки Новой Москвы Готовые новостройки Новостройки на карте Акции от застройщиков Коммерческие помещения Продавцы и застройщики Панорамы новостроек Видеообзор новостроек Экспертиза новостроек Экология Москвы и Подмосковья Студии 1-комнатные 2-комнатные 3-комнатные Квартиры на карте Ипотечный калькулятор Семейная ипотека Военная ипотека Банки и программы Медиа Новости недвижимости Мнение эксперта Аналитика рынка Покупателю Экспертиза новостроек Эксперты и авторы О проекте Контакты Реклама на сайте Vk Youtube Telegram Дзен Машиноместа Апартаменты #траншевая ипотека #рассрочка ИТ-ипотека Квартиры со скидками до 40% Видео 360° новостроек Субсидированная застройщиком Rutube Поиск дома в Москве Программа реновации в Москве Новостройки премиум-класса Новостройки бизнес-класса Рассрочка Траншевая ипотека Дома и коттеджи Бизнес-центры Бизнес-центры в Москве Бизнес-центры рядом с метро Строящиеся бизнес-центры Бизнес-центры класса A Бизнес-центры класса B Ипотека со ставкой 0,1%

Жилой дом «Кусковская ул., д. 12/1»

Жилой дом на ул. Кусковская, з/у 12 возводится по программе реновации жилья в Московском регионе. Ввод дома в эксплуатацию запланирован на 2 квартал 2025 года, а передача жилья в эксплуатацию и выдача ключей – на 4 квартал 2025 года.

В рамках строительства будут возведены два корпуса высотой 16 этажей с подземной автостоянкой. Каждый корпус включает 600 квартир.

Придомовая территория будет благоустроена и озеленена, появятся газоны, пешеходные дорожки, две спортивные площадки и четыре детские площадки с качелями, горками и песочницей. Две игровые площадки находятся между корпусами, две – западнее жилого комплекса. На одной спортивной площадке будут установлены баскетбольные кольца, ворота, на другой – спортивные тренажеры.

Первый этаж будет нежилым, здесь разместятся коммерческие помещения. На подземном этаже устроят паркинг на 381 машино-место.

Москва, ВАО, Новогиреево
от 16.8 до 26.8 млн
 
Цены за квартиры от 28 марта
по данным официального сайта
Звоните, мы ещё работаем!
Акции в марте
Фотографии
8
1

Жилой дом «Кусковская ул., д. 12/1» - цены за квартиры от застройщика 28 марта

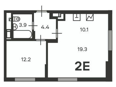
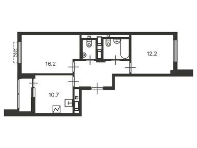
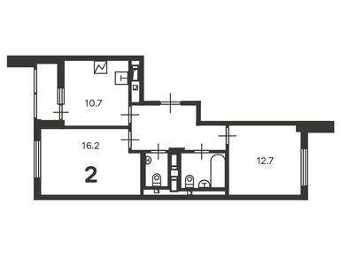
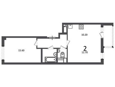
1-комнатные
37.80 — 49.70 м2
16.8 — 22.3  млн руб.
2-комнатные
57.20 — 57.90 м2
20.1 — 21.5  млн руб.
3-комнатные
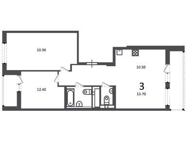
69.20 — 76.40 м2
25.2 — 26.8  млн руб.

Расположение

Регион Москва
Округ ВАО
Район Новогиреево
Метро
Перово
19 мин.
Станция МЦД
Шоссе Энтузиастов
Адрес
Кусковская ул., д. 12/1
на карте

Характеристики Жилой дом «Кусковская ул., д. 12/1» (корпус 1)

Застройщик
Срок сдачи
сдан корпус 1
Тип здания
монолит, панельный, железобетон
Количество этажей
16
Высота потолка
2.70
Отделка
есть
Тип кондиционирования
индивидуальное
Наличие ком помещений на первых этажах
есть
Класс новостройки
комфорт
Стадия строительства
сдан ГК

Подробная информация

Жилой дом на ул. Кусковская, з/у 12 возводится по программе реновации жилья в Московском регионе. Ввод дома в эксплуатацию запланирован на 2 квартал 2025 года, а передача жилья в эксплуатацию и выдача ключей – на 4 квартал 2025 года.

В рамках строительства будут возведены два корпуса высотой 16 этажей с подземной автостоянкой. Каждый корпус включает 600 квартир.

Придомовая территория будет благоустроена и озеленена, появятся газоны, пешеходные дорожки, две спортивные площадки и четыре детские площадки с качелями, горками и песочницей. Две игровые площадки находятся между корпусами, две – западнее жилого комплекса. На одной спортивной площадке будут установлены баскетбольные кольца, ворота, на другой – спортивные тренажеры.

Первый этаж будет нежилым, здесь разместятся коммерческие помещения. На подземном этаже устроят паркинг на 381 машино-место.

сдан
Задать вопрос
Выбирайте квартиру в Жилом доме «Кусковская ул., д. 12/1» по ценам от застройщика Фонд реновации.
1-комн. квартира 37,80 м2 16 906 233
Этаж 15/16
Москва, Жилой дом «Кусковская ул., д. 12/1»
Шоссе Энтузиастов
18 мин.
Сдан
1-комн. квартира 38,60 м2 18 020 976
Этаж 16/16
Москва, Жилой дом «Кусковская ул., д. 12/1»
Шоссе Энтузиастов
18 мин.
Сдан
1-комн. квартира 38,80 м2 18 114 349
Этаж 16/16
Москва, Жилой дом «Кусковская ул., д. 12/1»
Шоссе Энтузиастов
18 мин.
Сдан
1-комн. квартира 38,90 м2 17 016 802
Этаж 2/16
Москва, Жилой дом «Кусковская ул., д. 12/1»
Шоссе Энтузиастов
18 мин.
Сдан
Посмотреть 73 квартиры в Жилом доме «Кусковская ул., д. 12/1»
2-комн. квартира 57,20 м2 21 080 352
Этаж 9/16
Москва, Жилой дом «Кусковская ул., д. 12/1»
Шоссе Энтузиастов
18 мин.
Сдан
2-комн. квартира 57,50 м2 21 225 540
Этаж 10/16
Москва, Жилой дом «Кусковская ул., д. 12/1»
Шоссе Энтузиастов
18 мин.
Сдан
2-комн. квартира 57,60 м2 20 117 819
Этаж 2/16
Москва, Жилой дом «Кусковская ул., д. 12/1»
Шоссе Энтузиастов
18 мин.
Сдан
2-комн. квартира 57,70 м2 20 187 492
Этаж 3/16
Москва, Жилой дом «Кусковская ул., д. 12/1»
Шоссе Энтузиастов
18 мин.
Сдан
Посмотреть 50 квартир в Жилом доме «Кусковская ул., д. 12/1»
3-комн. квартира 69,20 м2 25 170 811
Этаж 2/16
Москва, Жилой дом «Кусковская ул., д. 12/1»
Шоссе Энтузиастов
18 мин.
Сдан
3-комн. квартира 72,20 м2 26 578 987
Этаж 9/16
Москва, Жилой дом «Кусковская ул., д. 12/1»
Шоссе Энтузиастов
18 мин.
Сдан
3-комн. квартира 72,30 м2 26 661 142
Этаж 10/16
Москва, Жилой дом «Кусковская ул., д. 12/1»
Шоссе Энтузиастов
18 мин.
Сдан
3-комн. квартира 76,40 м2 26 315 383
Этаж 14/16
Москва, Жилой дом «Кусковская ул., д. 12/1»
Шоссе Энтузиастов
18 мин.
Сдан
Посмотреть 9 квартир в Жилом доме «Кусковская ул., д. 12/1»
Жилой дом «Кусковская ул., д. 12/1»Возводится по программе реновации жилья.Фотосъемка 6.04.2024 г.Фотосъемка 6.04.2024 г.Фотосъемка 6.04.2024 г.Фотосъемка 6.04.2024 г.Фотосъемка 6.04.2024 г.Фотосъемка 6.04.2024 г.
Рассказать друзьям о Жилом доме «Кусковская ул., д. 12/1»
Копировать ссылку

Скидки и акции на новостройки Москвы

Посмотреть все спецпредложения

Жилой дом «Кусковская ул., д. 12/1» на карте

Застройщик Фонд реновации

Сданных
объектов
245
Строящихся
объектов
17
Рейтинг
Новострой-М
4.1
Сданных
вовремя
100%
Все новостройки застройщика

Отзывы о Жилом доме «Кусковская ул., д. 12/1»

Самый полезный отзыв
К
22 декабря 2025
Оценка
Достоинства
Планировки
Внешний вид фасада
Расположение
Проект выбрали по соотношению бюджета и качества. Дом спокойный, без лишней архитектурной демонстративности, но уютный. Планировки практичные, комнаты светлые. Район не самый активный, инфраструктура развивается. Зато рядом зелёные зоны. Подойдёт тем, кто ищет баланс между тишиной и городскими удобствами.
Ответить
Самый новый отзыв
К
22 декабря 2025
Оценка
Достоинства
Планировки
Внешний вид фасада
Расположение
Проект выбрали по соотношению бюджета и качества. Дом спокойный, без лишней архитектурной демонстративности, но уютный. Планировки практичные, комнаты светлые. Район не самый активный, инфраструктура развивается. Зато рядом зелёные зоны. Подойдёт тем, кто ищет баланс между тишиной и городскими удобствами.
Ответить

Оставить отзыв

Добавьте отзыв, заполнив личные данные, или сначала войдите на сайт, тогда информация будет автоматически взята из личного профиля.

Оценка*

Вопросы и ответы о Жилом доме «Кусковская ул., д. 12/1»

Д
День добрый. Подскажите какие дома планируется переселять в эти дома?
Ответить
Эксперт Новострой-М
16 июля 2025
Самый ценный ответ
Дмитрий, добрый день, к сожалению, этой информации нет в общем доступе

Задать вопрос

Напишите свой вопрос ниже — заполнив личные данные или войдите на сайт, тогда информация будет автоматически взята из личного профиля.