
























Новый проект комфорт-класса от ПИК ворзводится на севере Москвы — ЖК «Кольская 8» расположится в Бабушкинском районе, в 8 минутах ходьбы от станции метро «Свиблово».
Надежность застройщика
Компания ПИК — один из самых крупных и известных застройщиков России, она входит в перечень системообразующих предприятий страны, отличается финансовой стабильностью, имеет собственные стандарты строительства. ПИК принимает активное участие в программе редевелопмента промышленных зон, застраивая заброшенные территории предприятий современными жилыми кварталами — одним из таких является ЖК «Кольская 8».
Описание ЖК
Жилой комплекс расположен на значительном удалении от центра столицы — 10 км от ТТК и почти 12 км от Садового кольца. Проехать в центр можно через Енисейскую улицу и далее через проспект Мира, дорога займет примерно 25 минут без учета пробок.
Наиболее удобным способом перемещения для пешеходов будет метро, расстояние до ближайшей станции «Свиблово» — 870 метров. Так же можно воспользоваться автобусами, остановка расположена в двух минутах ходьбы от ЖК «Кольская 8».
Согласно рейтингу компании EcoStandard, экологическая обстановка в локации приемлемая, хотя еще несколько лет назад была лишь удовлетворительной. Район небольшой, но его насквозь «прорезает» семиполосная загруженная Енисейская улица. Также здесь еще есть остатки промзон (рядом с одной из них как раз и появится наша новостройка), за пределами района тоже много подобных территорий. В то же время всего в 3 км от новостройки начинается территория национального парка Лосиный остров (15 минут на машине). Буквально за 5 минут можно дойти до благоустроенных зеленых зон вокруг реки Яузы — крупных парков Свиблово и Яуза со стадионом, ледовым и спортивным комплексами, а также спортшколой. В одной остановке на метро — Ботанический сад РАН и другие парки.
Проект состоит из жилых блоков с подземными паркингами и кладовыми. Корпуса будут разновысотными — от 15 до 33 этажей. Первый блок уже сдан и полностью распродан, второй будет достроен к середине 2025 года.
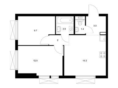
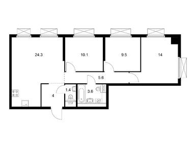
В ЖК «Кольская 8» можно купить жилье площадью 19 – 93 кв. метров, от студий до 3-комнатных квартир. В больших вариантах запроектированы гардеробные, совмещенные кухни-гостиные и дополнительные санузлы. Все помещения будут сданы с чистовой отделкой.
Инфраструктура
Наполнение проекта традиционное для ПИК — дворы-парки с местами для отдыха, спорта и детских игр. На первых этажах заработают магазины, кафе и разнообразные сервисы. Застройщик также предусмотрел свои детский сад и школу.
В шаговой доступности — детские сады, школы, поликлиники, отделения вузов, торговые центры, фитнес-клубы и многое другое.
Плюсы и минусы
В числе плюсов ЖК «Кольская 8» стоит отметить удачное расположение вблизи парковых зон и в пешей доступности от станции метро, возможность купить квартиру оптимального метража и планировки с уже готовым ремонтом, благоустроенный двор и собственную инфраструктуру.
Минусы традиционные для многих московских проектов — дефицит парковочных мест, узкие въезды-выезды, соседство с промзоной.
Метро «Свиблово» (Калужско-Рижская) → Пройти пешком 170 метров до остановки (2 минуты) → Остановка «Метро Свиблово 2А» → Автобус № 380, 61, 428, 628 (3 минуты в пути) → Остановка «Ивовая» → Пройти пешком 240 метров (3 минуты).