
















ЖК Pave — новый проект компании Forma в Даниловском районе недалеко от ж/д станции Дербеневская и Павелецкой набережной. Продажи стартовали в начале 2025 года, ввод первых корпусов запланирован на IV квартал 2028 года.
Надежность застройщика
Компания Forma основана в 2021 году как обособленная структура девелопера ПИК для реализации проектов более высокого ценового сегмента в Москве (от бизнес-класса и выше). Сегодня в портфеле компании — один сданный и четыре строящихся проекта.
Расположение и транспортная доступность проекта
Проект бизнес-класса Pave строят в Даниловском районе на юге Москвы, рядом с историческим центром столицы. Ранее на этом участке во 2-м Павелецком проезде находится хлебозавод №7. До ж/д станции Дербеневская — 700 метров или 8 минут пешком. Ближайшая станция метро — «Тульская», до нее 2 км или 24 минуты пешком. Около новостройки есть автобусные остановки, можно доехать до метро «Пролетарская».
Для автомобилей есть выезд на Павелецкую набережную и далее на Тульскую эстакаду и ТТК.
Экология и особенности района
Промышленное прошлое Даниловского района сказалось на экологической обстановке — эксперты компании EcoStandard оценивают как удовлетворительную, на 8 баллов из 10. Застройка района новыми жилыми комплексами улучшает ситуацию, но здесь по-прежнему не хватает зеленых зон.
Даниловский — единственный район Москвы, расположенный по обоим берегам Москвы-реки. А это означает, что здесь много набережных — и они постепенно обустраиваются. Среди зеленых зон можно отметить парк Тюфелева роща, сквер Чингиза Айтматова, сквер на Хавской, детский парк Липки, народный парк Кожухово на берегу Кожуховского пруда.
Территорию района пересекает ТТК, и здесь часты пробки — особенно в районе Тульской эстакады. Транспортную доступность для пассажиров обеспечивают несколько станций рельсового каркаса:
• «Автозаводская» Замоскворецкой линии метро и МЦК;
• «Технопарк» Замоскворецкой линии;
• «Тульская» Серпуховско-Тимирязевской линии;
• «ЗИЛ» Троицкой линии и МЦК.
В перспективе в Даниловском районе появятся несколько станций Бирюлевской линии метро.
Архитектура и благоустройство
Pave — это шесть корпусов переменной этажности (три башни высотой до 33 этажей и три секции высотой 7-11 этажей). Фасады зданий — строгие, ритмичные и регулярные, облицованы панелями из анодированного алюминия. Противовес им составляет внутренний объем кирпича, словно высеченный самой природой.
Эффект рукотворности добавляют нерегулярная расстановка окон и французских балконов, террасы, джамбо-окна, фактурная глубокая облицовка.
Концепция двора заключена в идее гармонии: четкая геометрия и плавная рукотворность. Здесь есть две точки притяжения: арт-объект и водная гладь.
Также предусмотрены две детские площадки для разных возрастов, зона воркаут и площадка для занятий йогой, зоны комьюнити и уличные коворкинги.
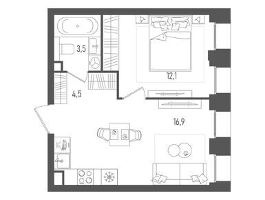
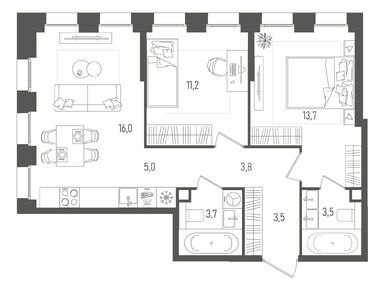
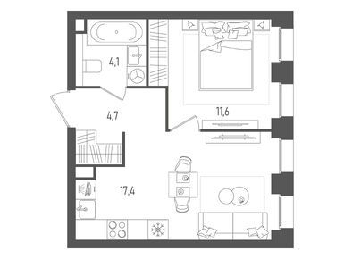
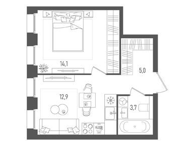
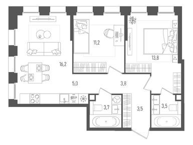
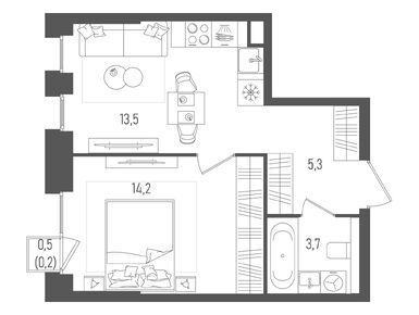
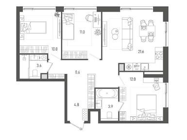
Планировки и типы помещений
В ЖК Pave будет 847 квартир площадью от 28 до 156 кв. м, в том числе с террасами, балконами, окнами в ванных. В большинстве квартир предусмотрены мастер-спальни. В пентхаусах предусмотрены дровяные камины. Квартиры продаются без отделки и с отделкой white box, в середине ноября 2025 года для покупки доступны 103 лота в четырех корпусах по цене от 19,67 млн рублей за 29-метровую студию без ремонта.
Купить квартиру можно в ипотеку или в рассрочку под 0% с первоначальным взносом 30–40%, а также по 100% оплате или по trade-in.
Для сравнения: в ближайшем окружении новостройки есть еще четыре сданных и строящихся ЖК, цены на квартиры в них начинаются от 18,4 млн рублей такова стоимость студии без отделки площадью 27 кв. м в ЖК «Павелецкая Сити».
Инфраструктура и удобства для жителей
В 3 корпусе запроектировано гранд-лобби с зонами ресепшн и ожидания, колясочной, фитнес-румом, гостиной, коворкингом и помещениями с постаматом и почтовыми ящиками. Для автомобилей предусмотрен подземный паркинг на 503 машино-места, там же разместятся кладовые.
В стилобатной части откроются магазины, рестораны, кофейни, фитнес-центр, бытовые сервисы и другие объекты. Неподалеку находятся школа №1257 с дошкольным отделением, множество магазинов, салоны красоты и пр. До Даниловского рынка — чуть больше получаса ходьбы или 13 минут на машине. Совсем рядом — Павелецкая набережная.
Преимущества проекта
1. Развитая локация.
2. Неплохая транспортная доступность.
3. Близость набережной.
4. Разнообразные планировки квартир, два варианта отделки.
Технические параметры
Класс энергоэффективности — А+
Тип остекления — панорамное
Наличие подземного паркинга — 503
Комментарий эксперта
ЖК Pave — новый проект компании Forma. В отличие от большинства новостроек Даниловского района, он возводится в развитой локации, а не на территории промзоны (впрочем, ранее здесь находился хлебозавод).
Транспортная доступность, на мой взгляд, не безупречна — пешком можно быстро дойти только для ж/д станции Дербеневская, до метро же придется идти больше 20 минут, что вряд ли можно назвать «шаговой доступностью». Владельцам авто придется смириться с пробками — на ТТК и особенно в районе Тульской эстакады они неизбежны.
Собственной социальной инфраструктуры у проекта нет (и это минус), но практически всё необходимое есть в окружении.
Планировки квартир позволяют поселиться здесь как одиночкам, так и семьям с детьми. Для инвесторов Pave вряд ли подойдет — все-таки порог входа достаточно высокий (причем здесь не самые дорогие квартиры в локации), но для собственного проживания — вполне. Тем более что сейчас проект находится на стадии котлована, то есть дальше цены будут только расти.
Метро «Тульская» → Пройти пешком 2 км (25 минут)
Метро «Павелецкая» → Пройти пешком 24 метра (1 минута) → Остановка «Метро «Павелецкая» → Автобус № 913 (15 минут в пути) → Остановка «2-ой Павелецкий проезд» → Пройти пешком 480 метров (6 минут)
Узнайте, нужно ли заказывать пропуск при посещении отдела продаж компании FORMA (Форма) по телефону +7 (495) 668-82-13.