




ЖК «Октябрьский» строят в поселке Октябрьский городского округа Люберцы, в 15 км от МКАД по Новорязанскому шоссе. Ввод в эксплуатацию запланирован на IV квартал 2027 года.
Надежность застройщика
Застройщик проекта — ООО «СЗ Кит». О нем известно, что он работает с 2015 года и входит в состав ГК «Карандаш Девелопмент» (основана в 2021 году), которая сейчас строит 4 проекта в Малаховке, Люберцах и Ярославле.
Расположение и транспортная доступность проекта
Жилой комплекс комфорт-класса «Октябрьский» строится на улице Новая в центре поселка городского типа Октябрьский (г. о. Люберцы). Автобусы и маршрутки, которые останавливаются недалеко от новостройки, курсируют до станций Люберцы, Быково и Раменское МЦД-3, метро «Котельники», «Лермонтовский проспект» и «Братиславская», автостанции Лыткарино. Для автомобилей есть выезд на Новорязанское шоссе и новую трассу ЮЛА (Южно-Лыткаринская автодорога).
Экология и особенности локации
Октябрьский — поселок городского типа (до 2024 года — рабочий поселок) в городском округе Люберцы. Он расположен на федеральной трассе М5 «Урал», на его территории есть несколько производственных предприятий. На месте бывшей ткацкой фабрики сейчас работает торговый комплекс «ТекстильПрофи». По соседству с поселком расположены Баулинский лес и парк Лесная Опушка (Томилинский лесопарк).
Архитектура и благоустройство
ЖК «Октябрьский» (Люберцы) — это две 16-этажные монолитные секции, которые будут облицованы кирпичом, керамическими камнями, блоками и другими мелкоштучными каменными материалами бежевого, желтого и светло-коричневого тонов. Облик дома гармонично вписывается в окружающую застройку.
На придомовой территории появятся детские и спортивные площадки, места для отдыха, прогулочный тротуар и гостевая парковка на 10 мест.
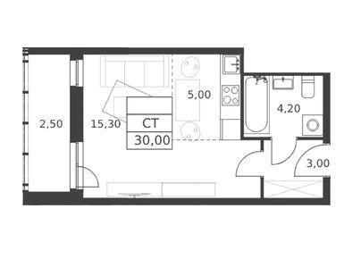
Планировки и типы помещений
В доме запроектированы 180 квартир: от 30-метровых студий до 3-комнатных площадью 77,3 кв. м. В первой половине ноября для покупки доступны 65 квартир с балконами или лоджиями, есть варианты с гостевыми санузлами и гардеробными. Высота потолков — 3–3,5 м.
На выбор покупателей предложены следующие варианты отделки:
• без отделки (установка оконных блоков, остекление балконов и лоджий, разводка труб и подключение радиаторов отопления, монтаж вертикальных стояков с отводами и установкой приборов учета и запорной арматуры без выполнения трубных разводок, ввод электропроводки и устройство квартирного щитка, установка металлической входной двери;
• white box (дополнительно к варианту без отделки: установка межкомнатных перегородок, монтаж силовых линий с внутриквартирной разводкой, монтаж коммутационных коробок и подрозетников, сборка и монтаж квартирного щитка, выводы под розетки и светильники, установка светильников, оштукатуривание и шпаклевка стен и перегородок и откосов оконных проемов, стяжка полов, гидроизоляция, горизонтальная разводка системы кондиционирования);
• чистовая в стилях «Классик» или «Модерн» (не выполняется только установка светильников, звонков и аналогичного оборудования, а также мебели).
Цены в первой половине ноября 2025 года — от 4,63 млн рублей за студию без отделки площадью 30 кв. м при 100% оплате, без акции — от 5,78 млн рублей. Купить квартиру можно в ипотеку, а также в рассрочку под 0%, по 100% оплате или программе trade-in.
Инфраструктура и удобства для жителей
На первом этаже запроектированы два помещения для коммерческого использования — судя по проектной декларации, там откроются фитнес-зал и кабинет врача. В секциях появятся места для хранения колясок и велосипедов.
Собственных детского сада и школы в «Октябрьском» не будет, но всё необходимое есть в нескольких минутах ходьбы: помимо социальной инфраструктуры (детские сады, школы, поликлиника), рядом находятся стадион «Балятово», магазины и прочие полезные объекты.
Преимущества проекта
1. Разнообразные планировки квартир, выбор варианта отделки.
2. Хорошая транспортная доступность.
3. Развитая инфраструктура локации.
4. Единственный строящийся проект в поселке.
Технические параметры
Класс энергоэффективности — В
Тип остекления — оконное
Наличие подземного паркинга — нет
Комментарий эксперта
Жилой комплекс «Октябрьский» — единственный строящийся ЖК в одноименном поселке городского округа Люберцы. Именно поэтому он может быть интересен жителям поселка, которые хотят улучшить жилищные условия. Тем более что рядом есть вся нужная инфраструктура — включая остановки общественного транспорта в пешей доступности.
Заметный минус — отсутствие подземного паркинга и слишком мало мест на придомовой парковке (всего 10).
Метро «Котельники» → Пройти пешком 360 метров до остановки (4 минуты) → Остановка «Метро «Котельники» → Маршрутное такси № 558к (18 минут в пути) → Остановка «Октябрьский» → Пройти пешком 296 метров (4 минуты).