Рейтинг@Mail.ru
Переверните экран
Новостройки Квартиры Ипотека Новостройки Москвы Новостройки Подмосковья Новостройки Новой Москвы Готовые новостройки Новостройки на карте Акции от застройщиков Коммерческие помещения Продавцы и застройщики Панорамы новостроек Видеообзор новостроек Экспертиза новостроек Экология Москвы и Подмосковья Студии 1-комнатные 2-комнатные 3-комнатные Квартиры на карте Ипотечный калькулятор Семейная ипотека Военная ипотека Банки и программы Медиа Новости недвижимости Мнение эксперта Аналитика рынка Покупателю Экспертиза новостроек Эксперты и авторы О проекте Контакты Реклама на сайте Vk Youtube Telegram Дзен Машиноместа Апартаменты #траншевая ипотека #рассрочка IT-ипотека Квартиры со скидками до 35% Видео 360° новостроек Субсидированная застройщиком Rutube Поиск дома в Москве Программа реновации в Москве Новостройки премиум-класса Новостройки бизнес-класса Рассрочка Траншевая ипотека Дома и коттеджи Бизнес-центры Бизнес-центры в Москве Бизнес-центры рядом с метро Строящиеся бизнес-центры Бизнес-центры класса A Бизнес-центры класса B

Жилой дом «Кварцевая ул., д. 2-5»

Новые дома, построенные по Программе реновации, были введены в эксплуатацию в 2022 году.

Настоящий проект предусматривает строительство четырнадцати жилых корпусов. Этажность варьируется от 13 до 16 этажей. Участникам Программы реновации передано 2904 квартир с остекленными лоджиями, в том числе 811 однокомнатных, 1570 двухкомнатных, 492 трехкомнатных, 28 четырехкомнатных и 3 пятикомнатных. Для маломобильных граждан отведено 23 квартиры.

Подъезды оборудованы домофонами и пандусами. Предусматриваются помещения для консьержа и колясочные. Установлены современные лифты с видеонаблюдением. Проект обеспечивает доступную среду для перемещения родителей с колясками и маломобильных групп населения. Во дворе размещаются оборудованные детские и спортивная площадки, а также площадки для отдыха.

Первый этаж дома нежилой, с высокими потолками и большой площадью остекления.

Москва, ТиНАО, Троицкий АО, Троицк
от 13 до 20.4 млн
 
Цены за квартиры от 4 февраля
по данным официального сайта
Звоните, мы ещё работаем!
Зафиксировать цену
Фотографии
41
1

Жилой дом «Кварцевая ул., д. 2-5» - цены за квартиры от застройщика 4 февраля

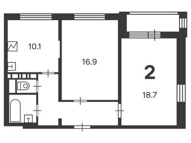
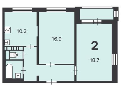
2-комнатные
59.10 — 59.60 м2
13 — 13.9  млн руб.
3-комнатные
77.60 — 97.60 м2
16.7 — 20.4  млн руб.

Расположение

Регион Новая Москва
Округ ТиНАО
Локация Троицк
Метро
Адрес
Кварцевая ул., д. 2 (к. 1-4), д. 3 (к. 1-2), д. 4 ...
на карте

Характеристики

Застройщик
Срок сдачи
сдан корпус 2
сдан корпус 3
сдан корпус 4
Тип здания
Этажность
13 — 16
Высота потолка
2.63
Класс новостройки
комфорт
Рейтинг
3.9
Стадия строительства
выдача ключей + заселение корпус 2
выдача ключей + заселение корпус 3
выдача ключей + заселение корпус 4

Подробная информация

Новые дома, построенные по Программе реновации, были введены в эксплуатацию в 2022 году.

Настоящий проект предусматривает строительство четырнадцати жилых корпусов. Этажность варьируется от 13 до 16 этажей. Участникам Программы реновации передано 2904 квартир с остекленными лоджиями, в том числе 811 однокомнатных, 1570 двухкомнатных, 492 трехкомнатных, 28 четырехкомнатных и 3 пятикомнатных. Для маломобильных граждан отведено 23 квартиры.

Подъезды оборудованы домофонами и пандусами. Предусматриваются помещения для консьержа и колясочные. Установлены современные лифты с видеонаблюдением. Проект обеспечивает доступную среду для перемещения родителей с колясками и маломобильных групп населения. Во дворе размещаются оборудованные детские и спортивная площадки, а также площадки для отдыха.

Первый этаж дома нежилой, с высокими потолками и большой площадью остекления.

сдан
Задать вопрос
Выбирайте квартиру в Жилом доме «Кварцевая ул., д. 2-5» по ценам от застройщика Фонд реновации.
Этаж 14/16
НМ, Жилой дом «Кварцевая ул., д. 2-5»
Ольховая
39 мин.
Сдан
Этаж 9/16
НМ, Жилой дом «Кварцевая ул., д. 2-5»
Ольховая
39 мин.
Сдан
Этаж 2/16
НМ, Жилой дом «Кварцевая ул., д. 2-5»
Ольховая
39 мин.
Сдан
2-комн. квартира 59,40 м2 13 201 318
Этаж 8/16
НМ, Жилой дом «Кварцевая ул., д. 2-5»
Ольховая
39 мин.
Сдан
Посмотреть 19 квартир в Жилом доме «Кварцевая ул., д. 2-5»
Этаж 14/16
НМ, Жилой дом «Кварцевая ул., д. 2-5»
Ольховая
39 мин.
Сдан
3-комн. квартира 81,60 м2 17 035 222
Этаж 15/16
НМ, Жилой дом «Кварцевая ул., д. 2-5»
Ольховая
39 мин.
Сдан
3-комн. квартира 81,80 м2 16 747 708
Этаж 4/16
НМ, Жилой дом «Кварцевая ул., д. 2-5»
Ольховая
39 мин.
Сдан
Этаж 14/16
НМ, Жилой дом «Кварцевая ул., д. 2-5»
Ольховая
39 мин.
Сдан
Посмотреть 22 квартиры в Жилом доме «Кварцевая ул., д. 2-5»
Жилой дом «Кварцевая ул., д. 2-5»Корпус 4. Фотосъемка 26.11.2024 г.Корпус 5. Фотосъемка 26.11.2024 г.Корпус 5. Фотосъемка 26.11.2024 г.Корпус 3. Фотосъемка 26.11.2024 г.Корпус 5. Фотосъемка 26.11.2024 г.Корпус 4. Фотосъемка 26.11.2024 г.Корпус 3. Фотосъемка 26.11.2024 г.Корпус 4. Фотосъемка 26.11.2024 г.Корпус 4. Фотосъемка 26.11.2024 г.Корпус 4. Фотосъемка 26.11.2024 г.Корпус 4. Фотосъемка 26.11.2024 г.Корпус 4. Фотосъемка 26.11.2024 г.Корпус 3. Фотосъемка 26.11.2024 г.Корпус 3. Фотосъемка 26.11.2024 г.Корпус 5. Фотосъемка 26.11.2024 г.Корпус 5. Фотосъемка 26.11.2024 г.Корпус 3. Фотосъемка 26.11.2024 г.Корпус 3. Фотосъемка 26.11.2024 г.Корпус 3. Фотосъемка 26.11.2024 г.Корпус 5. Фотосъемка 26.11.2024 г.Корпус 5. Фотосъемка 26.11.2024 г.Корпус 5. Фотосъемка 26.11.2024 г.Корпус 5. Фотосъемка 26.11.2024 г.Корпус 5. Фотосъемка 26.11.2024 г.Корпус 5. Фотосъемка 26.11.2024 г.Корпус 5. Фотосъемка 26.11.2024 г.Корпус 5. Фотосъемка 26.11.2024 г.Корпус 4. Фотосъемка 26.11.2024 г.Корпус 3. Фотосъемка 26.11.2024 г.Корпус 3. Фотосъемка 26.11.2024 г.Корпус 3. Фотосъемка 26.11.2024 г.Корпус 4. Фотосъемка 26.11.2024 г.Корпус 5. Фотосъемка 26.11.2024 г.Корпус 4. Фотосъемка 26.11.2024 г.Корпус 5. Фотосъемка 26.11.2024 г.Корпус 4. Фотосъемка 26.11.2024 г.Корпус 4. Фотосъемка 26.11.2024 г.Корпус 5. Фотосъемка 26.11.2024 г.Корпус 3. Фотосъемка 26.11.2024 г.Корпус 3. Фотосъемка 26.11.2024 г.
Рассказать друзьям о Жилом доме «Кварцевая ул., д. 2-5»
Копировать ссылку

Скидки и акции на новостройки Москвы

Посмотреть все спецпредложения

Жилой дом «Кварцевая ул., д. 2-5» на карте

Застройщик Фонд реновации

Сданных
объектов
236
Строящихся
объектов
13
Рейтинг
Новострой-М
4.1
Сданных
вовремя
100%
Все новостройки застройщика

Отзывы о Жилом доме «Кварцевая ул., д. 2-5»

Самый полезный отзыв
РГ
21 октября 2025
Оценка:
Планировки
Способы покупки
Двор, окружение
Расположение
Дома готовы, планировки удобные и просторные, место нормальное - мне все понравилось
Ответить
Полезный отзыв?
Самый новый отзыв
ЕБ
22 декабря 2025
Оценка:
Небольшой дом, без громких заявлений. Понравилось, что нет ощущения потока людей. Подъезды и общие зоны аккуратные. Район спокойный, без резких минусов. Инфраструктура стандартная. В целом вариант без сюрпризов — и это плюс.
Ответить
Полезный отзыв?
Добавьте отзыв, заполнив личные данные, или сначала войдите на сайт, тогда информация будет автоматически взята из личного профиля.
Оценка*

Вопросы и ответы о Жилом доме «Кварцевая ул., д. 2-5»

Будьте первым, кто задаст вопрос
Задать вопрос
Напишие свой вопрос ниже — заполнив личные данные или войдите на сайт, тогда информация будет автоматически взята из личного профиля.