





























Элитный квартал «Тишинский бульвар» строится в историческом центре Москвы — на Тишинке (Пресненский район).
Надежность застройщика
Девелопер проекта — Sminex. Компания основана в 2007 году, в конце 2022 года девелопер приобрел компанию «Интеко». Проекты Sminex учитывают потребности всех будущих жителей по стандарту Fine Development, который объединяет проектирование, строительство и управление. Сейчас в Москве девелопер реализует 12 проектов — жилых и деловых.
Описание ЖК
ЖК «Тишинский бульвар» возводится в Электрическом переулке, это часть исторической Тишинки в Пресненском районе. Ближайшая станция метро — «Белорусская».
Пресненский район, как и другие районы центра Москвы, нельзя назвать экологически чистым, негативное влияние на качество воздуха в основном оказывают загруженные дороги. Когда-то в районе было много промышленных предприятий, сейчас большая их часть выведена за границы города. На территории района есть несколько парков: Красная Пресня, детский парк «Пресненский», парк Декабрьского восстания, сквер у Патриарших прудов.
ЖК квартал «Тишинский бульвар» состоит из 14 корпусов высотой от 3 до 24 этажей. Для каждого здания предусмотрено индивидуальное архитектурное решение, застройка «Тишинского бульвара» воспринимается по-разному с разных ракурсов. Корпуса расположены так, что создаются тишина и ощущение приватности.
Старт продаж был объявлен в марте 2024 года, сейчас ведется строительство 9 корпусов, они будут сданы в эксплуатацию в III и IV кварталах 2027 года. В середине июля 2024 года в продаже есть варианты от 50-метровых евродвушек до пентхаусов площадью более 200 кв. м. Купить квартиру в «Тишинском бульваре» можно в ипотеку или в рассрочку под 9%, она предоставляется на 1 год. Цены — от 54,7 млн рублей за евродвушку площадью 51,4 кв. м.
Площадь двора-парка — 2,1 га, он свяжет три внутренних двора: Кленовый, Ивовый и Рябиновый. На его территории разместятся прогулочные дорожки и бульвар, площадь с сухим фонтаном, два пруда и ручей, галереи и зеленые комнаты для отдыха и медитации, разнообразные спортивные зоны и детские игровые площадки.
Инфраструктура
Часть инфраструктуры «Тишинского бульвара» доступна только для резидентов: в пространстве clubhouse собраны фитнес-зал с бассейном, игровая комната, соседский центр, частный детский сад. Также предусмотрены магазины, кафе, сервисы, офисы и общественные зоны отдыха. Для автомобилей — паркинг с автомойкой. В окружении квартала есть всё необходимое — от детских садов до медцентров.
Плюсы и минусы
Квартал «Тишинский бульвар» строится в историческом центре Москвы, он идеально подходит для тех, кто выбирает жилье именно здесь и в то же время мечтает о тишине и приватности.
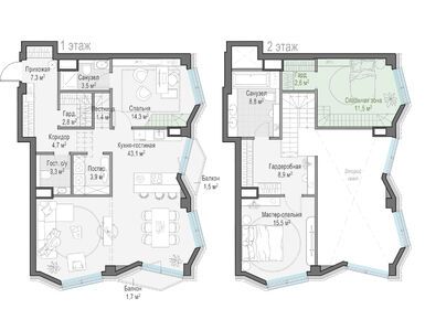
В проекте нет студий, зато есть квартиры редкого формата: пентхаусы, в том числе двухэтажные, с террасами и дровяными каминами; high level с каминами; квартиры с потолками высотой до 7 метров.
Девелопер позаботился о благоустройстве и внутренней инфраструктуре квартала, рядом тоже имеется всё необходимое.
Минус, присущий практически всем новостройкам центра Москвы, — высокие цены.
Метро «Белорусская (Замоскворецкая)» → Пройти пешком 1,3 км (15 минут)