












«Одинцовские кварталы» — малоэтажный жилой комплекс в Одинцовском городском округе рядом с Минским шоссе и недалеко от станции Лесной Городок МЦД-4.
Надежность застройщика
У «Одинцовских кварталов» богатая история — первым застройщиком была ипотечная компания М-6, которая в 2022 году была признана банкротом. После этого проектом занимались разные компании, сейчас его реализует ГК «Вектор». Группа компаний основана в 2014 году и является федеральным девелопером полного цикла. В портфеле девелопера — более 1 млн кв. м жилья и инфраструктуры в Подмосковье и Краснодарском крае.
Описание ЖК
ЖК комфорт-класса «Одинцовские кварталы» строят в деревне Солманово Одинцовского городского округа Подмосковья. До станции Лесной Городок МЦД-4 — 1 км или 13 минут пешком (от дальних домов строящейся очереди квартала – 15–20 минут).
До МКАД или аэропорта «Внуково» с одноименной станцией метро — 16 км, до станции метро «Пыхтино» — 14 км. Рядом с ЖК останавливаются автобусы и маршрутки, можно доехать до станции Одинцово МЦД-1.
Городской округ Одинцово — один из наиболее экологически благополучных районов Подмосковья. На его территории много зеленых зон и рек, основная автомагистраль — Минское шоссе — проходит близко к границам округа.
Строительство комплекса началось еще в 2012 году. Тогда он носил название «Валь д`Эмероль», после банкротства первого застройщика был переименован в «Изумрудную долину», а затем в «Одинцовские кварталы».
По изначальному проекту на 32 га планировалось построить 95 четырехэтажных корпусов. 40 корпусов уже сданы, сейчас ведется строительство еще 13, их планируется сдать в IV квартале 2024 года и во II и IV кварталах 2025 года.
В каждом дворе предусмотрены детские и спортивные площадки, беседки, места для прогулок на свежем воздухе. В районе реализована экологическая концепция «двор без машин».
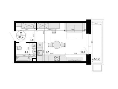
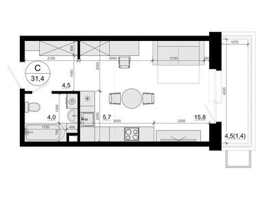
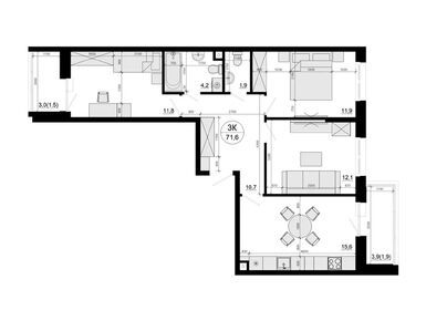
В конце декабря 2024 года в продаже представлены 69 лотов — от 1-комнатных площадью 29,1 кв. м до 3-комнатных площадью 88,3 кв. м. Квартиры реализуются с отделкой и без отделки, цены — от 7,2 млн рублей. Купить квартиру можно в ипотеку или рассрочку, а также по 100% оплате.
Инфраструктура
На первых этажах работают ПВЗ Wildberries, кофейня.
Проектом предусмотрено строительство образовательного кластера «Эврика», включающего в себя 2 детских сада, школу и стадион. Пока что эта инфраструктура только в планах: ближайшая школа расположена в соседнем Лесном Городке (до нее 1,5 км), 4 детских сада также находятся за пределами ЖК. Поликлиники для взрослых – в транспортной доступности (в поселках Кокошкино, Марушкино и городе Внуково).
Прямо возле «Одинцовских кварталов» работает санаторно-курортный комплекс Московского метрополитена, каток и детский бассейн «Капитошка». В пешей доступности находятся спа-комплекс, ресторан, несколько гостиниц, центр квестов «Тридевятое царство», пейнтбольные клубы, стрелковый спортинг-клуб.
Плюсы и минусы
Плюсы проекта — близость реки и парка, это и хороший вид из окон, и доступное место отдыха на природе. Близкое расположение станции МЦД, малая этажность домов. Квартиры обеспечиваются индивидуальными газовыми котлами для бесперебойного отопления и снабжения горячей водой.
Минусы — недостаток инфраструктуры. Также можно отметить достаточно высокие цены для Подмосковья.
Метро «Парк Победы» → Пройти пешком 69 метров (1 минута) → Остановка «Метро «Парк Победы» → Автобус № 442, 457К → Проехать 7 остановок (52 минуты в пути) → Остановка «Солманово» → Пройти пешком 640 метров (8 минут) → ЖК «Одинцовские кварталы».
Киевский вокзал → Железнодорожная станция Москва→ Проехать 1 станцию (26 минут в пути) → Железнодорожная станция «Лесной Городок» → Пройти пешком 400 метров (5 минут) → ЖК «Одинцовские кварталы».