







Семейный дом «Олива» строится в дачном поселке Лесной Городок (городской округ Одинцово) в пешей доступности от станции Лесной Городок МЦД-4 и в 14 км от МКАД по Минскому шоссе.
Надежность застройщика
Девелопер проекта — ГК «Вектор», основанная в 2014 году. В портфеле проектов — более 1 млн кв. м жилья и инфраструктуры в Подмосковье и Краснодарском крае.
Описание ЖК
Жилой комплекс «Олива» комфорт-класса возводится в дачном поселке Лесной Городок (Одинцовский городской округ) в 10 минутах ходьбы от станции Лесной Городок МЦД-4. До ближайшей станции метро БКЛ «Аминьевская» – 22 минуты езды. Также недалеко от дома есть остановка маршрутки, можно доехать до станции Одинцово МЦД-1.
Городской округ Одинцово — один из самых экологически благополучных районов Подмосковья. На его территории много зеленых зон и рек, а основная автомагистраль — Минское шоссе — проходит близко к границам округа.
Дачный поселок Лесной Городок находится рядом с Минским шоссе в окружении СНТ и зеленых зон.
Семейный дом «Олива» — это 7-этажный корпус, состоящий из четырех секций. Здание рассчитано на 156 квартир, для автомобилей предусмотрено 140 машино-мест на территории жилого комплекса и 96 — вне территории. Во входных группах запроектированы колясочные, на подземном уровне — кладовые. Во дворе расположатся детская и спортивная площадки.
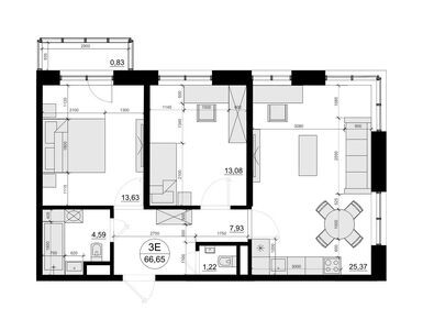
Дом планируется ввести в эксплуатацию во II квартале 2026 года. Для покупки доступны 88 квартир площадью от 28,84 кв. м до 76,93 кв. м, это варианты от студий до 3-комнатных классических планировок и евроформата. Жилье реализуется с тремя видами отделки: черновой, white box и чистовой (Grey или Light). Цены в начале марта 2025 года — от 7,4 млн рублей.
Инфраструктура
На первом этаже дома расположатся коммерческие помещения, в которых откроются объекты инфраструктуры. Рядом с ЖК «Олива» есть школа, детские сады, школа искусств, торговые центры (в одном из них работает кинотеатр), магазины, клиники, фитнес-центры и прочая необходимая инфраструктура.
Плюсы и минусы
ЖК «Семейный дом Олива» возводится в развитой локации ближнего Подмосковья с хорошей транспортной доступностью. К несомненным плюсам относится и то, что жилой комплекс оснащен достаточным количеством машино-мест. Кроме того, на выбор предложены квартиры с любым вариантом отделки.
Серьезных минусов (помимо довольно высоких цен) у новостройки, пожалуй, нет. Проектом не предусмотрена собственная социальная инфраструктура (он слишком компактен для этого), однако всё необходимое есть рядом.
Станция «Лесной городок» → Пройти пешком 1 км (13 минут)