

Жилой комплекс «Портал» строят в подмосковном городе Звенигород на Нахабинском шоссе. Это 17-этажный дом всего на 160 квартир с высоким классом энергоэффективности (А++), ввод в эксплуатацию которого запланирован на IV квартал 2026 года.
Надежность застройщика
Застройщик проекта — компания «Тройка Плюс», основанная в 2021 году. В портфеле девелопера — построенные и строящиеся жилые комплексы в Ногинске, Красноармейске, Ступино, Луховицах, Озерах, Люберцах и Звенигороде. Запланировано строительство еще 10 жилых комплексов.
Описание ЖК
Жилой комплекс «Портал» строят в микрорайоне Пронина в Звенигороде (Одинцовский район), на Нахабинском шоссе. Рядом с новостройкой есть автобусные остановки, можно доехать до ж/д станций Звенигород и Голицыно, станций Одинцово МЦД-1 и Нахабино МЦД-2, метро «Строгино» и «Кунцевская».
Звенигород — небольшой подмосковный город, расположенный на берегах Москвы-реки. Экологическая обстановка в нем — одна из лучших в Московской области. Здесь нет крупных промышленных производств, в окрестностях города есть много санаториев и домов отдыха. Правда, в 2022 году жители города жаловались на 90% износ очистных сооружений, сброс в Москву-реку грязных сточных вод, выбросы в воздух вредных веществ и другие проблемы.
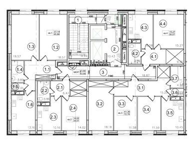
Жилой комплекс «Портал» — 17-этажный монолитный дом на 160 квартир. В холле есть комната консьержа, колясочная и санузел. На территории ЖК обустроят детские площадки, места для отдыха и прогулочные дорожки. Предусмотрена наземная парковка на 67 мест.
Планировки квартир — от одной до трех комнат, площадь лотов — от 30,53 кв. м. Жилье продается с черновой отделкой, цены — от 3,7 млн рублей (по данным на первую декаду августа 2025 года).
Инфраструктура
На первом этаже расположатся четыре коммерческих помещения. Впрочем, будущие жильцы могут не переживать — рядом с новостройкой есть вся необходимая инфраструктура: детский сад, школы, магазины, клиники, салоны красоты и прочее. В пешей доступности расположены гипермаркет «Ашан» и зеленые зоны.
Плюсы и минусы
ЖК «Портал» — проект точечной застройки в развитом районе Звенигорода. Застройщик предлагает разные варианты планировок, правда, ремонт предстоит выполнять самим покупателям. Однако вблизи новостройки есть много объектов инфраструктуры, да и транспортная доступность весьма неплохая для Подмосковья. С учетом, что в Звенигороде строят немного жилья, это хороший вариант для улучшения жилищных условий.
Метро «Строгино» → Пройти 266 метров до остановки (3 минуты) → Остановка «Станция метро Строгино, западный вход» → Автобус №881к (1 час 11 минут в пути) → Остановка «Квартал имени Маяковского» → Пройти пешком 400 метров (5 минут)