

















































































Жилой комплекс «Цветочный город» строится в Мытищах на берегу Яузы недалеко от ж/д станции Тайнинская и Октябрьского проспекта.
Надежность застройщика
Девелопер проекта — ГК «Стройтэкс». Компания присутствует на рынке недвижимости 25 лет, ее специализация — строительство жилья и административных зданий в Москве и Подмосковье. «Стройтэкс» осуществляет полный цикл работ — от выбора площадки под строительство до эксплуатации здания.
Описание ЖК
ЖК «Цветочный город» возводится в 22 микрорайоне города Мытищи на берегу реки Яуза, рядом с Березовой рощей и Комиссаровским прудом. До ж/д станции Тайнинская — 6 минут пешком. Рядом с новостройкой есть остановки автобусов и маршруток, общественный транспорт курсирует до станций МЦД Долгопрудный и Лобня, ж/д и автостанции Мытищи, а также до мытищинского «Ашана».
Город Мытищи не может похвалиться хорошей экологической ситуацией. Он граничит с МКАД, в нем развита промышленность, по территории проходят Ярославское шоссе и ж/д пути. В то же время в городе есть парки и скверы, а по соседству расположены нацпарк «Лосиный остров», Хлебниковский и Пироговский лесопарки.
Жилой комплекс комфорт-класса «Цветочный город» — это семь построенных и два строящихся корпуса переменной этажности. Всего запланировано строительство 12 корпусов и нескольких гаражных комплексов для жителей микрорайона. На территории проекта есть детские и спортивные площадки, оборудованы места для отдыха.
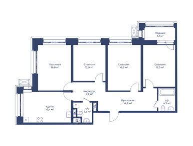
В конце марта 2025 года для покупки доступны 132 квартиры в корпусах 12 и 13. Площадь лотов — от 33,9 кв. м до 135,7 кв. м, это варианты от студий до 5-комнатных квартир. Купить квартиру в ЖК «Цветочный город» можно с чистовой или предчистовой отделкой, цены — от 8,25 млн рублей. Корпус 13 планируется ввести в эксплуатацию во II квартале 2025 года, корпус 12 — во II квартале 2027 года.
Инфраструктура
Проект воплощает концепцию «город в городе». На первых этажах корпусов предусмотрены магазины, салоны красоты, аптеки, пункты выдачи заказов и другие объекты.
Рядом с жилым комплексом работает детский сад и ведется строительство школы. Новостройка граничит с Березовой рощей и Комиссаровским прудом, неподалеку — Перловский парк и парк Мира.
Плюсы и минусы
Жилой комплекс «Цветочный город» возводится в удачном месте: на берегу Яузы, в окружении частных домов и рядом с ж/д станцией. При этом у жителей нет недостатка инфраструктуры.
Впрочем, по соседству уже возводится еще один жилой комплекс, и не исключено, что на месте индивидуальной застройки со временем появятся новые многоэтажные дома. Еще один минус — Октябрьский проспект, который проходит совсем рядом с новостройкой.
Метро «Комсомольская» → Пройти пешком 110 метров (1 минута) → Ярославский вокзал → Электрички до Софрино, Сергиева Посада, Монино, Пушкино, Фрязино-Пасс., Фрязево, Александрова-1, Красноармейска (25 минут в пути) → Станция Тайнинская → Пройти пешком 560 метров (7 минут)
Метро «Медведково» → Пройти пешком 82 метра (1 минута) → Остановка «м. Медведково» → Маршрутное такси № 270м (7 минут в пути) → Остановка «Перловская» → Пройти пешком 800 метров (10 минут) → Остановка 14-й Красноармейский переулок» → Маршрутное такси № 12 (4 минуты) → Остановка «Институт имени Эрисмана» → Пройти пешком 340 метров (4 минуты)
«Цветочный город» построен на второй линии Октябрьского проспекта Мытищ: на МКАД можно выехать в объезд Ярославского шоссе (примерное расстояние 3 км). В полукилометре от новостройки расположена платформа «Тайнинская»: доехав до платформы «Лось», можно пересесть на маршрутку или автобус до метро «Медведково» (общее время в пути – около получаса). Прямая электричка до Ярославского вокзала идёт 25 минут.