




































Новый жилой комплекс «Поколение Первых» строится в подмосковном городе Королёв в 35 минутах ходьбы от ж/д станции Болшево. Запланировано строительство 10 корпусов с паркингом и коммерческими помещениями, также будут возведены детский сад и школа.
Надежность застройщика
Девелопер проекта — ГК «Профи-Инвест», присутствующая на рынке жилищного строительства с 2010 года. В портфеле компании — проекты в Пушкино, Королёве, Ивантеевке. В рамках жилых комплексов девелопер строит также необходимую инфраструктуру. По данным Единого ресурса застройщиков, «Профи-Инвест» занимает пятое место среди подмосковных застройщиков по объему текущего строительства.
Описание проекта
Жилой комплекс бизнес-класса «Поколение Первых» строят на участке площадью 7 га на Октябрьском бульваре в микрорайоне Новые Подлипки города Королёв. До ж/д станции Болшево — 2,64 км или 35 минут пешком. Рядом с новостройкой останавливаются автобусы и маршрутки, которые довезут до метро «ВДНХ», ж/д станций Болшево и Валентиновка. Для автомобилей есть выезд на скоростное Ярославское шоссе.
В городе Королёв есть промышленные предприятия, но тем не менее это один из самых экологически благоприятных городов ближнего Подмосковья. По окраине города проходит Ярославское шоссе, на территории есть несколько зеленых зон, а с юга к городу примыкает нацпарк «Лосиный остров». ЖК «Поколение Первых» расположен между сквером им. академика В.Ф. Уткина и парком Костино, также неподалеку находится Верхний Комитетский лес.
В составе ЖК «Поколение Первых» в Королеве планируется построить 10 разноэтажных домов, рассчитанных на 1 822 квартиры. Дома будут объединены стилобатом, в котором разместится двухуровневый паркинг на 1 166 машино-мест и 124 кладовки. На территории квартала предусмотрены детские и спортивные площадки.
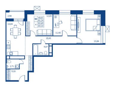
В первой декаде августа 2025 года в продаже есть 448 квартир в трех корпусах — от студий площадью 29,14 кв. м до вариантов с тремя комнатами и кухней-гостиной площадью 82,03 кв. м. Квартиры продаются с отделкой и без нее, ввод в эксплуатацию намечен на II квартал 2028 года, цены — от 6,5 млн рублей.
Инфраструктура
Собственная инфраструктура ЖК «Поколения Первых» включает коммерческие помещения на первых этажах, детский сад на 210 мест и пристройку на 450 мест к школе №5.
Школы и детские сады есть и рядом с новостройкой, также поблизости находится гипермаркет «Глобус», а для прогулок подойдут сквер им. академика В.Ф. Уткина, парк Костино и парк усадьбы Крафта.
Плюсы и минусы
ЖК «Поколение Первых» — вполне самодостаточный проект в центре Королёва. Застройщиком предусмотрена собственная инфраструктура, в окружении тоже есть всё нужное.
Минус квартала, как у большинства новостроек ближнего Подмосковья, — отдаленность метро. Однако до метро и ж/д станций курсирует общественный транспорт, и будущие жители квартала, которым нужно часто ездить в Москву, вполне могут рассчитать время в дороге.
Метро «Ростокино» → Пройти пешком 560 метров (7 минут) → Остановка «МЦК «Ростокино» → Маршрутное такси № 576 (30 минут в пути) → Остановка «Калининградская улица» → Пройти пешком 111 метров (1 минуту)
Узнайте, нужно ли заказывать пропуск при посещении отдела продаж компании Профи-Инвест по телефону +7 (499) 285-28-44.