

























































































































































































































































































































ЖК «Новое Медведково» строится в Мытищах недалеко от Мытищинского лесопарка.
Надежность застройщика
Застройщиком выступает компания Ingrad, основанная в 2012 году. Девелопер строит жилые кварталы комфорт- и бизнес-класса с объектами инфраструктуры в Москве и Подмосковье.
Описание ЖК
Проект комфорт-класса «Новое Медведково» строится в мытищинском микрорайоне 17а недалеко от Волковского шоссе. Дорога до ж/д станции Мытищи занимает 8 минут на авто, до станции метро «Медведково» — 20 минут.
Экологическая обстановка в Мытищах неоднозначная. Город граничит с МКАД, по его территории проходят Ярославское шоссе и ж/д ветка. Развита промышленность. В Мытищах есть несколько парков и скверов, к городу примыкают Пироговский лесопарк и национальный парк «Лосиный остров».
Жилой квартал состоит из нескольких десятков монолитно-кирпичных корпусов, 31 корпус уже построен, ещё 5 будут последовательно сдаваться в течение 2025 года. В сентябре 2024 году купить квартиру в ЖК «Новое Медведково» можно как в строящихся домах, так и в уже построенном корпусе №38.
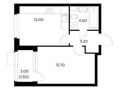
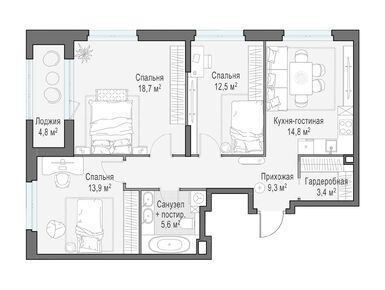
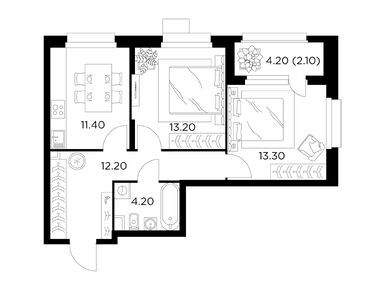
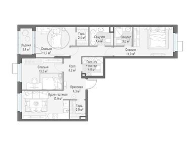
Жилой фонд ЖК «Новое Медведково» представлен студиями, 1-, 2- и 3-комнатными квартирами с классическими планировками и евроформата. Площадь лотов — от 24,9 до 87,2 кв. метров. Жилье в двух корпусах (№35 и №42) продается с отделкой в стилях «Скандия» и «Брюгге», в остальных — без отделки.
Во дворах расположены детские площадки для разных возрастов, зона воркаут и скейтпарк, беседки и скамейки. По периметру проложены веломаршруты, пешеходный бульвар переходит в городскую площадь. Рядом находятся Мытищинский лесопарк и Рупасовские пруды.
Стоимость квартир в ЖК «Новое Медведково» средняя для Мытищ — от 6,7 до 19, 6 млн рублей.
Инфраструктура
На первых этажах корпусов ЖК «Новое Медведково» работают магазины, аптеки, кафе, клиники, салоны красоты, пункты выдачи заказов и другие объекты городской инфраструктуры. Построены лингвистическая гимназия и два детских сада, летом этого года застройщик ввел в эксплуатацию школу, которая стала самой большой в Мытищах — она рассчитана на 1 735 учеников. Завершается строительство еще одного детского сада. Для автомобилей предусмотрены многоуровневые паркинги.
Плюсы и минусы
Расположение жилого квартала достаточно удачное — в отдалении от Ярославского шоссе и вблизи крупных лесопарков. У жителей имеется вся необходимая инфраструктура в пределах жилого комплекса. Разнообразие планировок позволяет выбрать квартиру для любого состава семьи. Важным преимуществом ЖК «Новое Медведково» являются доступные цены и возможность купить квартиру как в готовых, так и в строящихся домах.
Минусом можно назвать отдаленность от ж/д станции и метро, пешком до них не дойти.
Метро «Медведково» → Пройти пешком 100 метров (1 минута) → Остановка «м. Медведково» → Автобусы № 169, 177 (14 минут) → Остановка «Ядреево» → Пройти пешком 430 метров (6 минут)
Рядом с участком застройки пролегает Волковское шоссе, есть удобный проезд на Ярославское и Осташковское шоссе, через Октябрьский проспект можно выехать прямо на МКАД (примерное время в пути – 20 минут). От Мытищинского ж/д вокзала следует экспресс до Ярославского вокзала (18 минут в пути).