






Клубный дом «Новое Вашутино» строится на Вашутинском шоссе в городе Химки рядом с Химкинским лесом. Ввод в эксплуатацию запланирован на III квартал 2025 года. Девелопером проекта выступает компания «Атлант».
Надежность застройщика
Девелоперский холдинг «Атлант» присутствует на рынке с 2011 года. За это время им было реализовано более 700 тыс. кв. м недвижимости, сейчас ведется строительство жилых и коммерческих проектов общей площадью 270 тыс. кв. м. Группа компаний осуществляет свою деятельность в Москве и Подмосковье, Санкт-Петербурге и Астраханской области.
Описание ЖК
Клубный дом комфорт-класса «Новое Вашутино» возводится на Вашутинском шоссе в микрорайоне Старые Химки. Недалеко от новостройки останавливаются автобусы и маршрутки, можно доехать до станции метро «Речной вокзал» и МЦД Химки, а также до аэропорта Шереметьево.
На экологическую ситуацию города Химки влияют различные выбросы в атмосферу, в том числе отходы предприятий. Город граничит с МКАД, его территорию пересекают Ленинградское, Шереметьевское и Новокуркинское шоссе, трасса М-11 «Нева», рядом находится аэропорт Шереметьево. Самый крупный зеленый массив — Химкинский лес, на территории города есть Сходненский лесопарк, на границе расположена Захарьинская пойма.
Микрорайон Старые Химки расположен между МКАД, Ленинградским шоссе и трассой М-11. По окраине микрорайона проложен канал им. Москвы, на берегу которого есть благоустроенный парк им. Л.Н. Толстого, популярный у химчан.
«Новое Вашутино» — это одно 8-этажное здание с подземным паркингом и детскими площадками на закрытой территории. Ввод проекта в эксплуатацию запланирован на III квартал 2025 года.
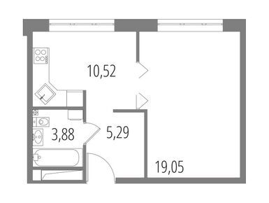
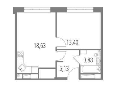
В конце апреля 2025 года покупателям предлагались 34 лота площадью от 23,7 кв. м: студии, 1- и 2-комнатные лоты по цене от 3,9 млн рублей (с учетом скидки). Помещения реализуются с предчистовой отделкой, купить их можно в ипотеку, рассрочку или по 100% оплате.
Инфраструктура
Собственная инфраструктура ЖК включает коммерческие помещения на первом этаже, коворкинг и детский клуб. До детских садов, школ и других объектов придется добираться транспортом — рядом с домом есть только СНТ, склады и автомойка.
Плюсы и минусы
Клубный дом «Новое Вашутино» в Химках строят практически на территории промзоны, об этом напоминают складские строения по соседству. Формат новостройки не предполагает наличия собственной инфраструктуры, поэтому тем, кто решит поселиться здесь с детьми, нужно подумать о том, как возить детей в детский сад и школу.
С одной стороны от дома проходит Вашутинское шоссе и находится СНТ, с другой — Химкинский лес. Впрочем, все возможные минусы перекрываются гуманными ценами.
Железнодорожная станция «Химки» → Пройти пешком 101 метр (1 минута) → Остановка «МЦД «Химки» → Автобус № 14 (17 минут в пути) → Остановка «3-ий Автокомбинат» → Пройти пешком 410 метров (5 минут)