






























































































Вилл Тауэрс — жилой комплекс, состоящий из трех небоскребов, расположен в районе Раменки, ближайшая станция метро — «Минская».
Надежность застройщика
Строительством ЖК Вилл Тауэрс занимается ООО «Минские холмы», учредителем которого является АО «СЗ «Управление экспериментальной застройки микрорайонов».
«УЭЗ» было создано в 1994 году постановлением правительства Москвы и выполняет функции застройщика и управляющей компании, входит в холдинг «Мосинжпроект». Среди собственных проектов компании: жилые комплексы «Инноватор», «Интеллигент», «Шелепиха», «Настоящее», «Мой адрес на Клинской» и другие.
Описание ЖК
Вилл Тауэрс — семейный жилой комплекс бизнес-класса, который строится на проспекте Генерала Дорохова в Раменках (ЗАО). До ТТК — 5 км (6 минут езды на автомобиле), до Садового кольца можно добраться за 15 минут, до МКАД — за 8 минут.
В 20 минутах ходьбы от комплекса находится станция Матвеевская МЦД-4, примерно за полчаса можно дойти до станции метро «Минская» (или доехать на авто за 5 минут). В 10 минутах езды на машине расположены станции метро «Раменки» и «Ломоносовский проспект». Рядом с новостройкой есть автобусная остановка, с которой можно доехать до метро «Филевский парк».
Экологическая ситуация в Раменках является приемлемой. Часть района занимают Воробьевы горы и Ботанический сад МГУ, здесь нет промышленных предприятий, но, как и во многих районах Москвы, на состояние воздуха негативно влияют загруженные дороги: район граничит с ТТК, проспектом Вернадского, МЦД-4, по его территории проходят многополосные Мичуринский и Ломоносовский проспекты, улица Минская.
ЖК «Вилл Тауэрс» состоит из трех домов высотой 52 и 56 этажей. В каждой башне установлены по 8 скоростных лифтов с возможностью спуска в паркинг. Сдать объект в эксплуатацию планируется до конца 2024 года.
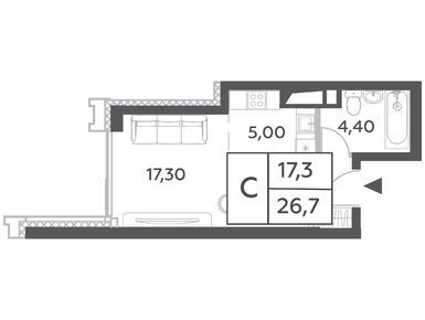
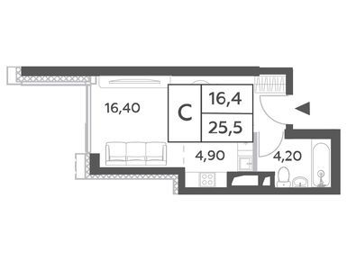
К концу октября 2024 года в продаже имеются квартиры во всех трех корпусах — Инспирейшн, Энерджи и Креативити. Площадь лотов — от 25,6 кв. м до 114,6 кв. м, это варианты от студий до квартир с тремя спальнями и кухней-гостиной. Цены — от 14,6 млн рублей с учетом скидки. Купить квартиру можно в ипотеку, в том числе по субсидированным программам, в рассрочку или по 100% оплате.
Во дворе предусмотрены оранжерея, зоны досуга, барбекю-площадка, детские и спортивные площадки. У жителей будет собственная прогулочная набережная.
Инфраструктура
В составе проекта запланированы два детских сада на 250 мест и школа на 550 мест. Для автомобилей — пятиуровневый паркинг. Первые этажи домов отведены под коммерцию — там появятся кафе, фитнес-центр, магазины и рестораны.
Кроме этого, в самом районе Раменки отлично развита инфраструктура — здесь есть магазины, детские сады, школы, поликлиники. Недалеко расположены главное здание МГУ и кампусы ведущих вузов: МГИМО, РУДН и РАНХиГС.
Несмотря на близость центра, поблизости много парков. В 2,5 км находится природный заказник «Долина реки Сетунь» и Мосфильмовский пруд, также неподалеку расположены Матвеевский лес, Парк Победы и Воробьевы горы.
Плюсы и минусы
Плюсы ЖК Вилл Тауэрс— расположение в престижном районе, наличие собственной инфраструктуры, хорошая транспортная доступность. Можно выбрать видовую квартиру, однако окна ряда квартир выходят на дорогу.
Среди минусов — соседство с многополосной магистралью, соединяющей ТТК и МКАД, поэтому на ней всегда активный поток автомобилей.
Станция метро «Минская» → Пройти 6 метров до остановки «Метро «Минская» (1 минута) → Проехать автобусом П209 до остановки «Матвеевское» (17 минут в пути) → Пройти пешком 500 метров (5 минут в пути)