






ЖК «Дом на Сиреневой» находится в подмосковном городе Щелково, рядом с лесным массивом и рекой Клязьмой. Оба корпуса этого проекта введены в эксплуатацию в середине 2024 года, поэтому купить квартиру в ЖК «Дом на Сиреневой» можно уже с ключами.
Надежность застройщика
ЖК «Дом на Сиреневой» возведен специализированным застройщиком «Олимп Гарант». Компания входит в состав ГК «Р-Инвест», осуществляющей строительство жилых домов на территории Щелково. В портфолио девелопера — введенный в эксплуатацию ЖК «Солнечный парк», теннисный клуб «Первая ракетка» и два универсальных спортивных комплекса.
Адрес «Дома на Сиреневой»: Московская обл., Щелково, мкр. №1, ул. Полевая 4А и 4Б.
Описание ЖК
ЖК «Дом на Сиреневой» находится в Заречном районе Щелково, в 2,4 км от железнодорожной станции Воронок, через которую курсируют электрички до Москвы. Доехать до Ярославского вокзала можно без пересадок за 56 мин. Также из Заречного района следует прямой автобус до станции метро «Щелковская», дорога занимает около 1 часа. Автомобилисты смогут добраться до МКАД за 50 мин. по Ярославскому или Щелковскому шоссе.
Экологическая обстановка в локации сложная из-за высокой степени загрязненности почв и реки Клязьмы. Здесь находятся крупные производственные предприятия, а также очистные сооружения. Однако ЖК «Дом на Сиреневой» расположен вдали от промзон, в окружении жилых кварталов, в 15 мин. ходьбы от реки и леса, что делает его привлекательным для тех, кто хотел купить жилье в тихом и развитом районе Щелково.
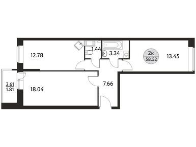
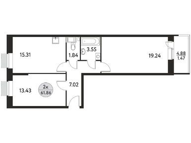
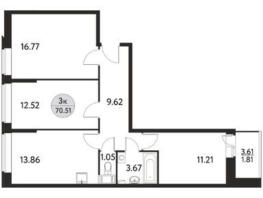
В составе ЖК «Дом на Сиреневой» два восемнадцатиэтажных корпуса на 384 и 157 квартир. В апреле 2025 года в продаже представлены квартиры от студий до трехкомнатных, площадью от 21,2 до 84,2 кв. м. Есть лоты с балконами и раздельными санузлами. Отличительная особенность планировок в этом проекте — узкие коридоры и маленькие прихожие.
В ЖК «Дом на Сиреневой» можно купить квартиру с готовой отделкой, но таких лотов осталось немного. Большинство помещений передаются покупателям без ремонта.
Инфраструктура
ЖК «Дом на Сиреневой» — это возможность купить квартиру в развитом районе г. Щелково. Здесь уже есть вся необходимая инфраструктура от магазинов до образовательных учреждений. По соседству с ЖК находится детский сад «Цветик-Семицветик», ещё один — детский сад №5 — расположен в 560 м от новостройки. Пешая прогулка до школы №3 займет не более 6 мин., до гимназии №2 — 11 мин. До спорткомплекса, рынка и торгового центра можно дойти за 17 мин., до поликлиники — за 15 мин.
Собственная инфраструктура «Дома на Сиреневой» ограничивается супермаркетом «Пятерочка» на первом этаже.
Плюсы и минусы
ЖК «Дом на Сиреневой» в Щелково подойдет тем, кто хочет купить жилье недалеко от столицы, с высокой транспортной доступностью и приятным природным окружением. Проект заинтересует семейных покупателей с детьми, так как рядом с домами есть несколько школ и садиков.
Однако стоит учитывать и некоторые особенности проекта, такие как отсутствие парковочных мест на территории, а также благоустроенного двора. Искать игровые площадки родителям с детьми придется в соседних кварталах.