




























ЖК «Соболевка» построен в подмосковном городе Щелково на берегу Клязьмы и недалеко от ж/д станции Щелково. До МКАД — 20 км. Девелопер проекта — ГК «Гранд»
Надежность застройщика
ГК «Гранд» была основана в 2004 году. В портфеле компании — жилые комплексы во Фрязино, Щелково, Лосино-Петровском и Нижнем Новгороде. На счету застройщика также инфраструктурные объекты: детские сады, школы, больницы и торговые центры.
Расположение и транспортная доступность проекта
ЖК «Соболевка» находится в микрорайоне Соболевка города Щелково. До ж/д станции Щелково — около 20 минут пешком. До нее можно доехать и на автобусе, как и до станций Загорянская и Гагаринская, автостанций Фрязино и Фряново.
Экология и особенности района
Экологическую обстановку в Щелково трудно назвать благоприятной — в городе работают промышленные предприятия, по его территории проходят Фряновское шоссе и Пролетарский проспект, по границе — Щелковское шоссе. Крупных зеленых зон в городе нет, парк только один — это Щелковский городской парк культуры и отдыха. Однако зеленые массивы имеются по соседству, в том числе национальный парк «Лосиный остров».
Архитектура и благоустройство
Жилой квартал класса «комфорт+» «Соболевка» состоит из 15 корпусов высотой 6–17 этажей. Светлые фасады домов «разбавлены» яркими вставками — красными, желтыми, оранжевыми. Динамику зданиям добавляют сочетание вертикальных и горизонтальных элементов.
На территории ЖК оборудованы детские и спортивные площадки, места для отдыха, парковки для автомобилей и велосипедов, есть станции для зарядки электрокаров.
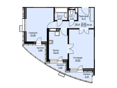
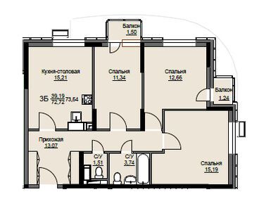
Планировки и типы помещений
В марте 2026 года в продаже есть 281 квартира в трех 17-этажных корпусах. Это варианты от студий площадью 31,2 кв. м до 3-комнатных площадью 77,3 кв. м. Особенности планировок: кухни-гостиные, гардеробные, балконы, несколько санузлов. Квартиры продаются без отделки и с предчистовой отделкой, цены предлагается узнать по запросу.
Для сравнения: ближайшая новостройка — ЖК «Пустовский» от ГК «Веста». Три корпуса их четырех уже сданы в эксплуатацию, последний планируется сдать в IV квартале 2026 года. Купить квартиру можно от 7 млн рублей.
Инфраструктура и удобства для жителей
На первых этажах жилых домов работают супермаркеты и различные магазины, салоны красоты, стоматологическая клиника, пункты выдачи заказов и другие объекты инфраструктуры. Планируется построить детский сад, школу и поликлинику.
Практически все необходимое есть и рядом с новостройкой — детские сады, школы, магазины, клиники.
Преимущества проекта
1. Экологически благоприятная локация.
2. Развитая инфраструктура.
3. Ключи в день покупки.
Технические параметры
Класс энергоэффективности — В
Тип остекления — стандартное
Наличие подземного паркинга — нет
Комментарий эксперта
Среди основных недостатков ЖК «Соболевка» – удаленность от центра Москвы. Однако комплекс может подойти всем, кто не собирается покидать Щелково или, например, работает удаленно и не ездит в столицу ежедневно — тем более что ключи можно получить сразу в день покупки. Также стоит отметить отсутствие подземного паркинга.
Среди плюсов – неплохая экология, развитая инфраструктура, наличие видовых квартир, возможность любоваться рекой и гулять в окружающих парках.
Москва (Ярославский вокзал) → Проехать одну станцию (1 час в пути) → Станция Щёлково → Пройти пешком 1,5 км (15 минут в пути) → ЖК «Соболевка»
Станция метро «Щёлковская» → Пройти пешком 300 метров (3 минуты в пути) → Автостанция центральная, Автобус № 361, 349, 335к → Проехать 20 остановок (40 минут в пути) → Остановка «Троицкий собор» → Пройти пешком 1,2 км (12 минут в пути) → ЖК «Соболевка»