






































ЖК «Новоград Монино» — это масштабный проект по развитию территории в рабочем поселке Монино городского округа Щелково Московской области.
Надежность застройщика
Застройщиком ЖК «Новоград Монино» выступает ООО «Специализированный застройщик "Аверус"» (входит в группу компаний «Аверус»). Компания работает на рынке жилья относительно недавно, была зарегистрирована в 2018 году, это ее первый проект. Но на данный момент квартиры реализуются в уже готовых домах, поэтому покупатели могут лично увидеть приобретаемую недвижимость.
Информация о ЖК
Концепция ЖК «Новоград Монино» предполагает строительство двух новых районов с объектами социальной инфраструктуры, паркингами и торговыми центрами на территории в 79 га. Они появятся в р/п Монино (Московская область, городской округ Щелково).
От места застройки до МКАД — 25 км по Горьковскому шоссе, до ближайшей станции метро («Новогиреево») можно добраться за 40 минут на личном транспорте или за 1,5 часа на прямом автобусе (в зависимости от пробок, время может увеличиться). В 15-20 минутах ходьбы от комплекса находится железнодорожная станция Монино (около часа езды до МЦК «Ростокино» или 1 час 20 минут до Ярославского вокзала).
На первом этапе в ЖК планируется строительство Северного района — это 19 семиэтажных домов на 3 279 квартир. На втором, в Южном районе, должны появиться еще 25 домов высотой в семь этажей на 3 949 квартир. Весь комплекс спроектирован в единой стилистике, фасады домов выполнены в сочетании темного и светлого цветов.
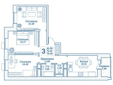
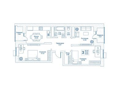
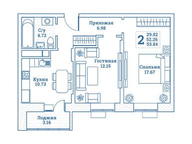
На официальном сайте ЖК «Новоград Монино» доступны 26 квартир в уже введенных в эксплуатацию корпусах (1, 2, 3) площадью от 37,1 кв. метра до 79,6 кв. метров. Цены — от 4,8 млн до 8,2 млн рублей.
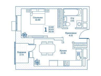
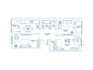
В октябре 2024 года в ЖК «Новое Монино» можно купить квартиры в 10 готовых корпусах (1 и 2 очередь). Жилой фонд представлен однокомнатными, двухкомнатными и трехкомнатными вариантами. Площадь лотов — от 34 до 80,7 кв. метров. Цены начинаются от 4,3 млн рублей. Максимальная стоимость на сайте застройщика — 9,5 млн рублей. Все квартиры в комплексе сдаются без отделки.
Купить квартиру в ЖК «Новоград Монино» можно за наличные, с использованием материнского капитала или в ипотеку (в том числе военную).
Инфраструктура
При строительстве Северного района ЖК застройщик также планирует возвести два детских сада на 500 мест, школу на 800 учеников, торговый центр площадью 26,8 тыс. кв. метров. Для владельцев автомобилей планируется строительство двух закрытых паркингов на 1,4 тыс. машино-мест.
В Южном районе комплекса из социальных объектов должны появиться детский сад на 300 детей, школа на 850 учеников, детско-взрослая поликлиника и физкультурно-оздоровительный комплекс на 500 посетителей. Из коммерческих объектов — торговый центр (площадью 26,8 тыс. метров), два кафе на 120 мест и ресторан с гостиницей. В этой части ЖК «Новоград Монино» застройщик также обещает сдать пять закрытых паркингов на 2,5 тыс. машино-мест.
В самом рабочем поселке Монино также есть поликлиники, несколько школ и детских садов. Здесь расположен один из крупнейших музеев авиации в Европе — Центральный музей военно-воздушных сил РФ, Дом офицеров, два храма, небольшой скейт-парк и стадион.
Плюсы и минусы новостройки
Поселок Монино окружен зеленой зоной и множеством СНТ. Недалеко находится озеро Леданово — одно из излюбленных мест отдыха местных жителей.
Приятным плюсом является стоимость (цены на квартиры начинаются от 4,3 млн рублей) и планировки. Все квартиры (даже самые маленькие однокомнатные) идут с остекленными лоджиями, в трехкомнатных лотах их две. Кстати, в двух- и трехкомнатных вариантах предусмотрены два санузла, что тоже является плюсом. В планировках домов нет студий — везде только изолированные комнаты.
Из минусов можно отметить, что застройщик не предлагает варианты с отделкой, все квартиры продаются без нее. А это значит, что для покупателя итоговая цена квартиры вырастет на стоимость ремонта. Заехать в такое жилье сразу тоже не получится.
Также нужно отметить и то, что проект только начинают строить, а значит, возможно, еще несколько лет собственники будут жить по соседству со стройплощадкой и ждать появления новых объектов инфраструктуры.
Среди минусов можно назвать также довольно высокую загруженность Горьковского шоссе и плотные пробки в часы пик. Однако в качестве альтернативы жители могут использовать электричку, станция которой расположена в пешей доступности.
ЖД станция «Монино» → Маршрутное такси № 886 (5 минут в пути) → Восточные ворота → Пройти пешком 1,4 км (20 минут)