












ЖК «Идеал» возводится в Балашихе, в 500 м от Горенского лесопарка.
Адрес новостройки: Московская обл., г. Балашиха, Балашихинское ш., корп. 1.
Надежность застройщика
Застройщиком ЖК «Идеал» выступает компания RuGroup Development, основанная в 2001 году. Компания занимается инвестициями и девелопментом в сегменте жилой и коммерческой недвижимости. Проект в Балашихе RuGroup Development реализует под брендом СЗ «Альфа Проджект». Стоит отметить, что реализация осуществляется с опережением декларируемого срока на 2 квартала.
Описание ЖК
ЖК «Идеал» расположен в северной части Балашихи. С одной стороны проект граничит с территорией Северной промзоны, с другой — с жилыми кварталами и строящимся ЖК другого застройщика. В 500 метрах от «Идеала» начинается территория Горенского лесопарка, а менее чем в 1,5 км — территория национального парка «Лосиный остров». Такое соседство нивелирует близость промышленных объектов и обеспечивает будущим новоселам широкие возможности для досуга на природе. В получасе ходьбы от новостройки протекает р. Пехорка, по обоим берегам которой разбиты парки «Солнечная» и «Заречная». Также за полчаса можно дойти до благоустроенного сквера Ветеранов.
С точки зрения транспортной доступности ЖК имеет неплохое расположение. Ближайшая железнодорожная станция — Балашиха — находится в 3 км от новостройки, доехать до нее на машине можно за 10 мин., на автобусе — за 10-20 мин., в зависимости от выбранного маршрута. Путь до автобусной остановки «Лесной городок» занимает не более 10 мин. пешком.
Со столицей локацию застройки соединяют две автомагистрали. Если ехать на машине до МКАД по Щелковскому шоссе, то дорога займет около 15 мин., а по шоссе Энтузиастов — 21 мин. От Балашихи также следуют автобусные маршруты до станций метро «Новогиреево» и «Щелковская».
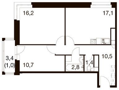
ЖК «Идеал» в Балашихе представляет собой один многосекционный корпус, в котором можно купить квартиру площадью — от 30,3 до 66,4 кв. м. Высота секций варьируется от 13 до 17 этажей. На подземном этаже разместится паркинг на 262 машино-места, ещё 185 мест для автомобилей будет на придомовой территории. Приватный благоустроенный двор и общественные пространства разместятся на стилобате.
В начале февраля 2025 года в проекте доступно 209 лотов. В их числе однокомнатные, двухкомнатные, трехкомнатные квартиры евроформата (кухня-гостиная считается за комнату). Среди предложений есть варианты с балконами, угловым остеклением, окнами на две стороны.
В ЖК «Идеал» можно купить квартиру с готовой отделкой в нейтральных светлых тонах или выбрать вариант без ремонта.
Инфраструктура
Собственная инфраструктура жилого комплекса представлена зоной коммерции на первых этажах, где в будущем откроются магазины, кафе, салоны красоты и другие сервисы. Необходимые социальные объекты: поликлиника, школы, детские сады, спортклубы и магазины — есть в пешей доступности от новостройки в микрорайоне Гагарина и микрорайоне Авиаторов.
Плюсы и минусы
ЖК «Идеал» в Балашихе — это возможность купить комфортабельное жильё в современном проекте недалеко от Москвы. Сама по себе Балашиха — развитый город с разнообразной инфраструктурой, которая, в силу стремительного роста новостроек и численности населения, продолжает улучшаться.
Среди плюсов проекта можно отметить наличие подземного и плоскостного паркингов, закрытой территории, квартир с готовой отделкой. Минус — соседство с промышленными территориями и загруженные дороги.
Станция метро «Щелковская» → Пройти пешком 270 метров (3 минуты в пути) → Остановка «Метро «Щелковская» → Автобусы 889, 338, 384, 395 → Подождать 4 минуты → Проехать 11 остановок (17 минут в пути) → Остановка «Лесной городок» → Пройти 890 метров (11 минут в пути)