«Дом 56» — это квартал премиум-класса в Басманном районе. Жилой комплекс находится в 10 мин. езды от Садового кольца и всего в двух станциях метро от Кремля. Рядом — научно-исследовательский кластер МГТУ им. Н.Э. Баумана, а также другие вузы, многочисленные детские сады и школы — все необходимое для качественного и всестороннего образования. В 5 мин. ходьбы — набережная Яузы. Чем ещё интересна новостройка, кроме удачного расположения, узнал «Новострой-М».
Примечание
В статье перечислены только факты о проекте, собранные из открытых источников. В рубрике «Экспертиза проекта» Новострой-М решил отказаться от оценок и оценочных суждений: право делать выводы из описанных фактов мы предоставляем нашим читателям.
«Галс-девелопмент» — застройщик ЖК «Дом 56» — работает на строительном рынке Москвы с 1994 года. Проекты компании также представлены в Санкт-Петербурге, Сочи и Казани. Девелопер специализируется на строительстве многоквартирных домов в сегментах «бизнес» и «премиум», коммерческой и загородной недвижимости. В портфеле компании 29 проектов, общая площадь которых достигает 3,5 млн кв. м. Посмотреть, какие ЖК застройщик возводит сейчас в Москве, можно по ссылке.
«Дом 56» — премиальный жилой комплекс в ЦАО. В составе проекта три монолитно-кирпичные башни, размещённые на едином стилобате с двухуровневым подземным паркингом. Комплекс отличается технологичностью и современной архитектурой. Также рядом будет построен один 9-этажный дом по программе реновации.
Территория застройки составляет 0,69 га. Кроме жилых домов, здесь появится приватный двор с зонами для досуга детей и взрослых и зона коммерции в стилобатной части.
ЖК «Дом 56» в цифрах:
Архитектурный облик «Дома 56» спроектирован бюро Pride. В составе проекта три башни в стиле параметрический минимализм. Высота центральной башни составляет 98 м. — 27 этажей. Другие башни немного ниже — 20 и 23 этажа. За счет скругленных углов и смещенных относительно друг друга пилонов создаётся эффект закручивания.
Фасады зданий облицованы металлическими панелями с оттенками меди, стали и никеля. Большая площадь остекления усиливает эффект сияния металла. В темное время суток архитектуру жилого комплекса подчеркнёт подсветка, установленная на фасадах, входных группах и во дворе.








Башни располагаются на стилобате. На двух подземных этажах разместится паркинг, на первом — центральное гранд-лобби, откуда можно будет перейти в нужный корпус по крытой галерее.
Центральное лобби — это светлое пространство с высокими потолками и панорамным остеклением. Дизайн-проект для лобби разработан студией Haast. Для внутренней отделки будут использованы премиальные материалы серо-бежевых оттенков, пол также будет светлым. Дизайнерская мебель и декор создадут ощущение домашнего уюта.



Для резидентов в лобби будет работать консьерж-сервис и детский клуб. Встретить гостей или пообщаться с соседями можно будет в уютной зоне ожидания. Оставить велосипед или детскую коляску — в специальной колясочной комнате.
Внутренний двор жилого комплекса будет огорожен по периметру, чтобы в него не смогли попасть посторонние. В этом приватном пространстве жители смогут отдыхать и работать на свежем воздухе, разместившись на стильных лавочках или в лаундже под навесом. Для занятий спортом во дворе будет оборудована зона воркаута. Для игр и развития маленьких жителей — площадка с горкой, качелями и безопасным резиновым покрытием.



Во дворе будут высажены цветы, травы, кустарники и деревья. Растения подобраны с учётом сезонной декоративности, благодаря чему двор будет уютным и стильным в любое время года.
Жилой комплекс «Дом 56» построен с применением современных материалов и технологий. Здание отличается высоким классом энергоэффективности, благодаря чему на поддержание комфортной температуры внутри будет затрачиваться меньше ресурсов. Окна в пол позволят реже пользоваться осветительными приборами, большую часть дня в квартирах будет достаточно естественного света.
В квартиры будет подаваться вода, прошедшая через систему фильтров, очищенная и смягченная. Конвекторы отопления будут спрятаны в полу, а в квартирах с отделкой будет выполнена подготовка для установки кондиционера.
Для обеспечения безопасности жителей предусмотрены системы контроля доступа на входе в лобби и въезде в паркинг. В общественных зонах будут установлены камеры видеонаблюдения, датчики огня и дыма, элементы системы пожаротушения, энергоэффективная система освещения. Скоростные бесшумные лифты позволят быстро подняться на нужный этаж.
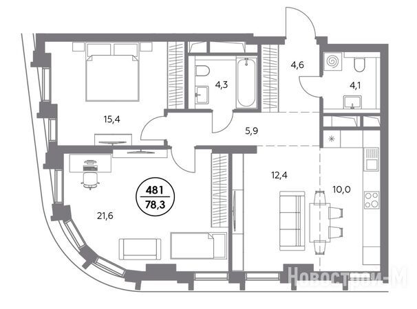
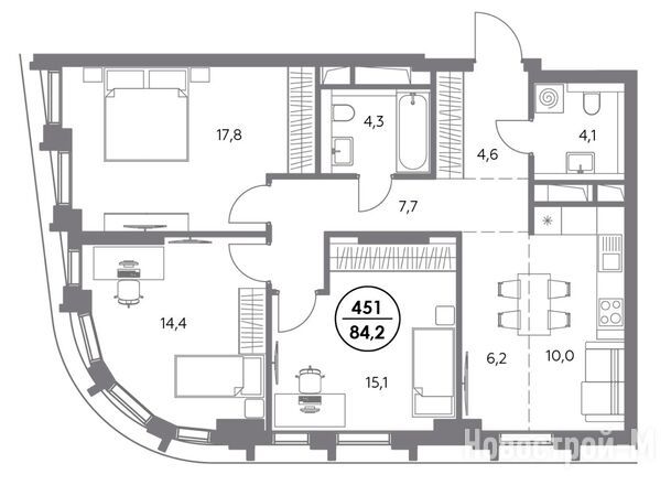
Квартирография жилого комплекса включает в себя 510 квартир премиум-класса, среди которых:
В июле 2025 года в продаже представлены квартиры площадью от 26 до 90 кв. м. Есть лоты с угловой кухней-гостиной, большим количеством окон, несколькими санузлами, гардеробными и постирочными комнатами. Также в презентации проекта заявлены квартиры с террасами — «коллекционные лоты для истинных ценителей».




Во всех квартирах первого корпуса застройщик выполнит чистовую отделку. Покупатели смогут выбрать один из двух вариантов дизайна — Smart White или Casual Grey.
Стиль Smart White — это современное решение, в основе которого белый и бежевый оттенки. Такой интерьер будет светлым, лёгким, расслабляющим.
Стиль Casual Grey — современная классика. Базовые цвета — белый и светло-серый. Интерьер создаст чувство защищенности и спокойствия.






Готовая отделка включает в себя все черновые работы, в том числе разводку электричества и инженерных сетей, подготовку под установку кондиционера, возведение внутренних перегородок, установку осветительных приборов, монтаж сантехники в ванной. Для финишной отделки будет использован керамогранит, иранский известняк, на пол уложат дубовую инженерную доску.
В корпусах №2 и №3 квартиры будут без отделки. Будущие владельцы смогут реализовать здесь индивидуальные дизайн-проекты, а также приобрести несколько смежных квартир и объединить их в большую семейную резиденцию.
Жилой комплекс расположен в 200 м. от ул. Бакунинской и в 600 м. от ТТК (Лефортовский тоннель). Въезд на территорию комплекса и в подземный паркинг осуществляется со стороны ул. Фридриха Энгельса.
Расположение новостройки удобно как для пешеходов, так и для тех, кто перемещается на автомобиле. Выехать на ТТК на машине можно за 3-4 мин., добраться до Садового кольца — за 10 мин. Дорога до делового кластера «Москва-Сити» займет около получаса, 20-25 мин. потребуется, чтобы выехать на МКАД.
В 15 мин. ходьбы от новостройки находятся станции метро «Бауманская» (Арбатско-Покровская линия) и «Электрозаводская» (БКЛ и МЦД-3). Автобусные остановки находятся в 5 мин. ходьбы — на Бакунинской и Большой Почтовой улицах.
Добраться до площади Трех вокзалов и Восточного вокзала на общественном транспорте можно за 20-25 мин., на автомобиле — за 10 мин.
Станции метро, БКЛ и МЦД, время в пути от ЖК «Дом 56»:
Басманный район — один из наиболее экологически благополучных районов центра Москвы. Здесь слабо ощущается влияние объектов промышленности, плотность населения средняя, а загруженность дорог ниже, чем в соседних локациях. EcoStandard оценивает экологическую ситуацию в Басманном районе как «приемлемую», а влияние негативных факторов — на 7 баллов из 10.
Хуже всего на состоянии экологии здесь сказывается недостаточная площадь озеленения. Через территорию района протекает река Яуза, дойти до которой жители новостройки смогут пешком за 5-7 мин. Вдоль реки есть небольшой сквер, где можно устраивать ежедневные прогулки.
Пешком за 25 мин. можно дойти до Лефортовского парка. До других парков придется ехать на машине или общественном транспорте. Расстояние до парка Сокольники составляет чуть больше 3 км. — это 10 мин. на машине или 22 мин. на прямом автобусе. До Измайловского парка — почти 5 км. Преодолеть их на машине можно за 15 мин., дорога на общественном транспорте (автобусе, трамвае или метро) займет порядка 40 мин.
Жителям премиального комплекса будет доступен детский клуб и зона отдыха в лобби, а также приватный внутренний двор. В стилобатной части здания запланирована зона коммерции: здесь откроются кафе, ресторан, магазины и другие заведения, но чтобы в них попасть, резидентам придется выйти на улицу и пройти несколько метров.
Басманный район готов предложить новоселам богатую инфраструктуру: образовательную, развлекательную и спортивную.
Детские сады
В 5 мин. ходьбы от новостройки находится два дошкольных отделения школы на Яузе — корпус №1 во 2-м Ирининском пер., 7, стр. 1 и корпус №3 на Большой Почтовой ул., 14А.
Из государственных ДОО рядом также есть отделения школы №354 им. Д. М. Карбышева. Расстояние до корпуса в Переведеновском пер.,11 — всего 670 м. До корпуса №6 на Бакунинской ул., 11 корп. 1 — 1,2 км или 15 мин. ходьбы.
За 8 мин. можно дойти до дошкольного отделения школы № 1429 имени Н.А. Боброва, расположенного в Переведеновском пер., 14. Ещё один дошкольный корпус школы №1429 расположен по адресу: Спартаковская площадь, 5/7 — в 13 мин. ходьбы.
Менее чем за 10 мин. можно дойти до частных детских садов и центров: «Клевер» на Рубцовской наб., 2, корп. 3, «РадугаДети» на Рубцовской наб., 4, корп. 3, «Мишутка» на Бакунинской ул., 45, Sun School на Большой Почтовой ул., 30, стр. 1, корп. 10.
Школы
На дорогу до школы живущие в «Доме 56» ученики смогут тратить меньше 20 мин., так как рядом расположено сразу несколько общеобразовательных организаций. Расстояние до школы на Яузе (Корпус №4) и школы № 1247 имени Ю. Балтрушайтиса составляет 640 м. или 7 мин. ходьбы. Корпус №3 школы на Яузе расположен на расстоянии 1,2 км, в Кондрашёвском тупике, 3 — дойти до него можно за 15 мин.
До общеобразовательного корпуса школы №354 им. Д. М. Карбышева в Лефортовском пер., 10 можно дойти за 18 мин. Дорога до школы № 345 имени А. С. Пушкина (на Бауманской ул.) займет 16 мин.
Кроме того, в пешей доступности от «Дома 56» расположен научно-исследовательский кластер МГТУ имени Н. Э. Баумана, Институт госзакупок, Социально-педагогический институт, МИЭП и другие высшие учебные заведения.
Супермаркеты
В пешей доступности у жителей комплекса будет большое количество продовольственных магазинов известных сетей: «Пятерочка», «ВкусВилл», «КуллКлевер», «Дикси», «Азбука вкуса». Расстояние до ближайшего супермаркета составляет всего 340 м. В 5 мин. ходьбы есть пункты выдачи маркетплейсов «Озон», «Яндекс.Маркет», Wildberries.
Поликлиники
Получить консультацию врачей различного профиля жители «Дома 56» смогут как в частных, так и в государственных учреждениях. В 800 м. от новостройки находится Медицинский центр Елены Малышевой. В 13 мин. ходьбы (1,1 км) расположена поликлиника № 64, филиал № 2, а также стоматологическое отделение. В 15 мин. ходьбы находится больница им. Бурденко.
Детских поликлиник рядом с домом нет. Ближайшая — детская городская поликлиника № 104, филиал № 3 — находится за рекой Яузой, по адресу: Семёновская наб., 3/1к1. Дойти до нее пешком можно за 18 мин., доехать на машине — за 10 мин. Детская городская поликлиника № 32, филиал № 3 расположена на расстоянии 1,8 км. До нее 22 мин. ходьбы или 5 мин. на машине. В 2 км от новостройки есть детская городская поликлиника № 52, филиал № 1, дойти до которой можно за полчаса или доехать на машине за 5 мин.
Чтобы увидеть объекты, нажмите на соответствующую кнопку внизу карты.
Фитнес-центры
В пешей доступности от нового ЖК работают несколько фитнес-клубов и спортивных студий различной направленности. В 5 мин. ходьбы есть клуб единоборств для девушек My Mafia и танцевальная студия Sofa Dance.
За 8 мин. можно дойти до клуба «БауманкаФит», в котором есть тренажерный зал и бассейн.
В 9 мин. ходьбы расположены тренажерный зал Gymnizer, студия пилатеса Art Of Pilates и студия растяжки Lady Stretch. Примерно столько же времени потребуется, чтобы дойти до Спортивного комплекса МГТУ имени Н. Э. Баумана, где можно заниматься в бассейне, и спортивного манежа «Металлугр» для любителей футбола.
Также рядом (15 мин. пешком) есть фитнес-клуб Velobeat, где можно позаниматься сайклингом и ФОК Университета имени О. Е. Кутафина с большим плавательным бассейном. В 4 мин. ходьбы есть детский бассейн — Аквастудия Alice & Bimbie.
Безопасность
Басманный район входит в состав ЦАО — это культурный, деловой, научный и туристический центр Москвы, где безопасности уделяется особое внимание. Район не входит в рейтинги наиболее криминальных.
Как сообщает начальник ОМВД по Басманному району, по итогам последних двух лет отмечается тенденция к снижению уровня преступности.
Ближайший участковый пункт полиции расположен по адресу: ул. Фридриха Энгельса, 37-41кА — это около 700 м от ЖК. Ещё один участковый пункт находится недалеко от ст. м. «Бауманская», на расстоянии 1,3 км от новостройки. Расстояние от «Дома 56» до ОМВД по Басманному району составляет 2,1 км — 25 мин. пешком или 7 мин. на машине.
Продажи квартир в жилом комплексе «Дом 56» стартовали в октябре 2023 г. С тех пор средняя стоимость квадратного метра менялась незначительно:
Самый доступный лот из имеющихся в продаже в настоящее время — 29-метровая студия без отделки, стоимость лота составляет 18 млн руб. Студия площадью 26,8 кв. м. с ремонтом «под ключ» обойдется покупателям в 20,7 млн руб.
Цены на однокомнатные квартиры начинаются от 26,5 млн руб. Приобрести квартиру с двумя изолированными спальнями, двумя санузлами и просторной кухней-гостиной можно за 41,5 млн руб.
Самый дорогой лот — трехкомнатная квартира площадью 89,9 кв. м. стоимостью 51,6 млн руб.
Актуальные цены в ЖК «Дом 56»:
|
Тип жилья |
Метраж, кв. м |
Цена, руб. |
Цена за кв. м, тыс. руб. |
|
студии |
29.40 — 29.60 |
23 070 200 — 23 078 800 |
779.7 — 784.7 |
|
1-комнатные |
44.60 — 55.30 |
31 846 800 — 50 473 400 |
656 — 982 |
|
2-комнатные |
61.90 — 89.70 |
46 576 400 — 66 428 000 |
637.7 — 823.7 |
|
3-комнатные |
97.80 — 105.20 |
59 219 000 — 67 904 000 |
605.5 — 645.5 |
Застройщик предлагает несколько вариантов приобретения недвижимости: по 100% предоплате, в ипотеку или рассрочку.
Оформить ипотеку можно в одном из банков-партнёров на удобных условиях с субсидией от застройщика: со ставкой 4,4% на первый год, со ставкой 10,7% на первые два года или со ставкой 13,7% на первые три года. Такой вариант позволяет наиболее эффективно выплачивать кредит, если в первые годы вносить средства сверх установленного банком платежа. Срок кредитования может достигать 30 лет.
Также оформить ипотеку можно по программе государственной поддержки семей с детьми под 6% на весь срок. На таких условиях можно получить ипотечный кредит до 12 млн руб. Если сумма кредитования больше, оформляется комбинированная ипотека.
Рассрочка от застройщика предоставляется без процентов на срок до 12 мес.
Данные об условиях кредитования действительны на момент публикации статьи. Актуальную информацию вы всегда можете найти в карточке проекта.
В Басманном районе не так много проектов, которые могли бы составить конкуренцию «Дому 56». Одним из них является ЖК «Level Бауманская» на Большой Почтовой улице. По расположению, транспортной доступности и доступности объектов инфраструктуры он идентичен «Дому 56», но его строительство завершится немного раньше — в 4 квартале 2025 года.
Застройщиком ЖК «Level Бауманская» выступает компания Level Group. В этом проекте 4 жилых корпуса высотой от 9 до 21 этажа и многоуровневый паркинг. Также есть подземная стоянка и благоустроенный приватный двор. Квартирография жилого комплекса представлена лотами различной площади — от 22-метровых студий до просторных пятикомнатных резиденций площадью до 149 кв. м. Также в проекте есть ситихаусы с высокими потолками (6,3 м.) и собственным двориком.
Актуальные цены в ЖК «Level Бауманская»:
|
Тип жилья |
Метраж, кв. м |
Цена, руб. |
Цена за кв. м, тыс. руб. |
| апартаменты | |||
|
3-комнатные |
132.00 |
54 289 112 |
411.3 |
|
4-комнатные |
121.50 — 131.70 |
47 383 235 — 56 758 775 |
390 — 431 |
|
5-комнатные |
185.50 |
65 097 637 |
350.9 |
| квартиры | |||
|
2-комнатные |
40.20 |
32 390 821 |
805.7 |
|
3-комнатные |
109.00 |
62 433 123 |
572.8 |
|
4-комнатные |
92.40 — 94.60 |
62 421 205 — 76 988 665 |
675.6 — 813.8 |
|
многокомнатные |
113.90 |
90 200 650 |
791.9 |
Значительная часть лотов уже распродана. В июле 2025 года в ЖК «Level Бауманская» можно приобрести студию, двухкомнатные, трехкомнатные, четырехкомнатные и пятикомнатные квартиры, преимущественно без отделки. Стоимость лотов — от 16,2 до 93 млн руб.
Ещё один проект — это ЖК «Интеллигент» на Семеновской набережной. Комплекс состоит из трех корпусов, расположенных в нескольких метрах от входа на станцию метро «Электрозаводская». Высота башен составляет 28 этажей, все они размещены на стилобате. Проектом предусмотрен наземно-подземный паркинг и кладовые помещения, а также приватный двор на крыше стилобата.
Актуальные цены в ЖК «Интеллигент»:
|
Тип жилья |
Метраж, кв. м |
Цена, руб. |
Цена за кв. м, тыс. руб. |
|
студии |
27.90 — 28.90 |
18 740 768 — 18 801 475 |
648.5 — 673.9 |
|
2-комнатные |
36.60 — 53.30 |
23 587 186 — 30 686 877 |
548.1 — 764.3 |
|
3-комнатные |
57.40 — 82.60 |
29 096 165 — 41 210 684 |
461.1 — 617.5 |
|
4-комнатные |
92.10 — 97.70 |
49 553 924 — 56 486 019 |
537.6 — 578.2 |
В проекте предлагаются квартиры площадью 24,4 до 98,5 кв. м. Среди них есть варианты с балконами, фигурными эркерами и открытыми террасами. Окна многих квартир выходят на сторону реки. Строительство ЖК «Интеллигент» должно завершиться уже в конце 2025 года (срок был перенесен на 6 кварталов). В настоящее время в этом комплексе можно приобрести квартиры от студий до четырехкомнатных по цене от 16,3 до 54,2 млн руб.
Резюме
ЖК «Дом 56» — это уникальное предложение на московском рынке недвижимости по соотношению расположения (в ЦАО), класса (премиум) и стоимости жилья (от 18 млн руб.) Дом находится в удалении от крупных магистралей и железных дорог, в пешей доступности от набережной и Лефортовского парка — что добавляет плюсов его расположению.
К преимуществам новостройки также можно отнести современную архитектуру, благодаря которой «Дом 56» станет новой доминантой в своей локации, благоустроенный двор, эргономичные планировки квартир, окна в пол, наличие лотов с готовой дизайнерской отделкой.
В числе минусов стоит отметить недостаточное количество парковочных мест (212 машино-мест на 510 квартир), небольшую для премиального жилья площадь квартир, ограниченный набор сервисов для резидентов.
В целом, проект отлично подойдет для проживания семей с детьми, так как в пешей доступности есть множество образовательных учреждений: от детских садов до вузов. Студии и однокомнатные лоты можно рассмотреть как объекты для инвестиций.
Дата публикации 29 июля 2025