











































































ЖК «Пироговская ривьера» — проект комфорт-класса вблизи г. Мытищи, в 15 км от МКАД. Комплекс возводится прямо на берегу Пироговского водохранилища, в окружении лесных массивов, благодаря чему его жители смогут наслаждаться свежим воздухом и активно проводить время на природе.
Надежность застройщика
На сегодняшний день застройщиком выступает компания «КомфортИнвест». Основана она была около 10 лет назад, ЖК «Пироговская ривьера» является её единственным проектом. Стоит отметить, что застройщику не всегда удается соблюдать сроки ввода домов (большинство корпусов в проекте сданы, однако в 4 домах были переносы сроков ввода, по двум домам – более чем на год). Основная причина задержек — сложности с документами на земельные участки.
Описание ЖК
Добраться до новостройки можно по Осташковскому шоссе или Ярославскому шоссе. Расстояние от МКАД составляет порядка 15 км, преодолеть его на автомобиле можно за полчаса, если не будет пробок. Но в утренние и вечерние часы, а также в дачный сезон заторы вблизи развязок являются обычным делом, из-за них время в пути может увеличиваться до 1,5 часов.
Но у локации есть вполне обозримые перспективы улучшения транспортной доступности. Уже в 2024 году должно быть завершено строительство платной трассы «Виноградово – Болтино – Тарасовка». Эта дорога сделает более удобным выезд от ЖК на Ярославское шоссе и сократит время в пути до МКАД. Хорда активно строится: уложено 94% земляного полотна, на территории 8,6 км уже готово покрытие, а на 10,6 км создан основной конструктив дороги.
Путь до ЖК «Пироговская ривьера» для тех, кто планирует купить здесь квартиру, но не имеет личного автомобиля, будет сопряжена с некоторыми сложностями: здесь нет железной дороги, а ближайшая станция метро находится за МКАД. Ещё недавно добираться до неё приходилось на двух автобусах или на одном — маршруты №509 / 314 / 314 к — но до остановки этих автобусов нужно идти пешком порядка 20 мин. Сейчас прямой автобус №438 останавливается в 2 минутах от ЖК. Он позволяет добраться до метро «Медведково» за 1 час, но ходит (согласно расписанию) лишь 1–2 раза в час. Альтернативный способ проезда — автобус до ст. Мытищи и электропоезд до Ярославского вокзала. Варианты есть, но назвать их комфортными для ежедневного проезда к месту учебы или работы на территории столицы пока не получается.
И всё же локация для жилого комплекса выбрана удачно, особенно если оценивать ее по видовым характеристикам и экологическим показателям. Территория комплекса включает в себя участок береговой линии протяженностью около 300 м. С северной и северо-восточной стороны находятся участки леса, на юге — Пироговский и Мытищинский лесопарки. Природное окружение не только выполняет гигиеническую функцию, но и обеспечивает широкие возможности для отдыха, спорта и семейного досуга.
Общая площадь застройки составляет 49 га. По плану здесь должно быть построено 20 монолитных домов высотой 5–9 этажей. В настоящий момент (апрель 2024 года) завершено строительство 11 корпусов и здания детского сада. Ещё один корпус будет закончен в IV квартале 2024 года (по данным ЕИСЖС Наш Дом).
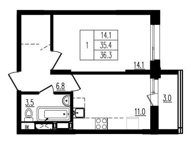
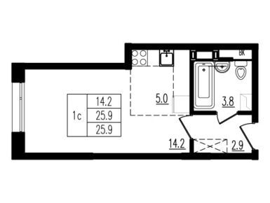
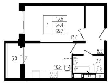
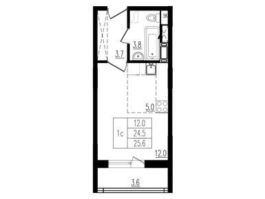
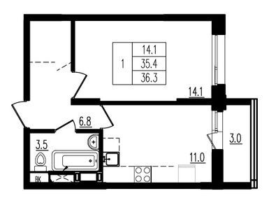
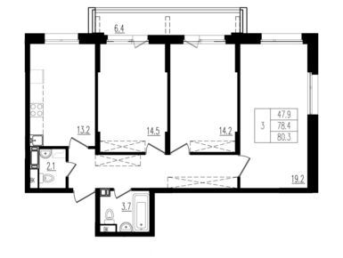
В ЖК «Пироговская ривьера» реализуются квартиры в новых корпусах №13, 14 и 15. В продаже студии, однокомнатные, двухкомнатные и трехкомнатные квартиры площадью от 25,4 до 89,9 кв. м. Доступны лоты с линейными, распашными и угловыми планировками, а также евроформата. В «Пироговской ривьере» также есть квартиры с балконами, лоджиями и гостевыми санузлами. Отделка не предусмотрена, но эту опцию можно обсудить как дополнительную при заключении договора с застройщиком.
Кроме квартир в ЖК «Пироговская Ривьера» можно купить кладовое или коммерческое помещение.
Внутренние дворы комплекса благоустроено в соответствии с современными тенденциями: пространство разделено на функциональные зоны, установлены детские игровые комплексы и спортивное оборудование.
Инфраструктура
ЖК находится на удалении от больших населенных пунктов, но застройщик позаботился о том, чтобы создать здесь собственную инфраструктуру. В микрорайоне уже ведут прием врачи в детском и взрослом поликлинических отделениях, работает садик. Строительство школы запланировано, пока маленькие жители новостройки посещают Пироговскую школу. Расположена она на расстоянии около 1,5 км, время в пути пешком — 15–18 мин.
На территории ЖК уже работают магазины, аптеки и пункты выдачи товаров маркетплейсов. Остальная инфраструктура, включая кафе, спортивные и досуговые центры, есть в пос. Пироговский.
Плюсы и минусы
Жилой комплекс представляет собой выгодное сочетание городских удобств и природного окружения. В числе его преимуществ можно отметить близость большого водоема, в котором можно купаться, а также лесных массивов, где можно гулять, ходить на лыжах, устраивать пикники, собирать ягоды и грибы. Есть выбор квартир в уже сданных домах. Вся необходимая инфраструктура есть в пешей доступности. Планировки стандартные, но вполне соответствующие запросам современного городского жителя.
Из недостатков — ограниченная транспортная доступность и недостаточное количество машино-мест на придомовой территории. Если дорожная ситуация постепенно будет улучшаться, то с парковкой по мере заселения новых домов всё будет только усложняться.
Метро «Медведково» → Пройти пешком 110 метров до остановки (1 минута) → Остановка «м. Медведково» → Автобус № 314к (22 минуты в пути) → Остановка «Микрорайон Пирогово» → Пройти пешком 1 км (12 минут)
От Москвы добраться до комплекса можно по Осташковскому, Дмитровскому или Ярославскому шоссе. Время в пути займёт не более получаса. Между автостанцией Мытищи и метро «Медведково» курсируют автобусы №№ 23, 26 и соответствующие маршрутные такси, они довозят пассажиров до остановки «Микрорайон Пирогово» за 10-15 минут.