































Жилой комплекс «Серебро» построен в подмосковном городе Пушкино. Это три 17-этажных корпуса на Ярославском шоссе, рядом есть вся нужная инфраструктура, парки и река Серебрянка.
Надежность застройщика
Девелопер проекта — ГК «Виктория Девелопмент». О компании известно, что она образована в 2012 году в Электростали, в ее портфеле — два сданных жилых комплекса: «Высоково» (Электросталь) и «Серебро» (Пушкино).
Описание проекта
ЖК «Серебро» относится к комфортному классу, он находится на Ярославском шоссе в городе Пушкино. Рядом с новостройкой есть остановки общественного транспорта, на автобусе можно доехать до ж/д станций Пушкино и Щелково, ж/д станции Мамонтовская, станции метро «ВДНХ». В перспективе рядом откроется станция МЦД-5. Дорога до МКАД по Ярославскому шоссе на автомобиле займет 15 минут.
Город Пушкино расположен в 17 км от МКАД по Ярославскому шоссе. Он считается относительно благополучным в экологическом отношении, но есть нюансы: в городе есть несколько производств, по его территории проходят Ярославское шоссе и ж/д линия, а в начале 2025 года Росприроднадзор отреагировал на сообщения о сливе неочищенных канализационных вод в реку Уча.
Хотя город практически окружен зелеными зонами и Учинским водохранилищем, в самом Пушкино парков не так уж много. Среди них: Пушкинский ПКиО, дендропарк ВНИИЛМ, Серебрянка и Березовая роща, Клязьминский парк, Северный лесопарк и Морозовский лес.
ЖК «Серебро» построен недалеко от парка Серебрянка с одноименной рекой, немного дальше есть другие зеленые зоны.
Жилой комплекс «Серебро» — это три 17-этажных корпуса. На его территории имеются детские и спортивные площадки, места для отдыха и парковки.
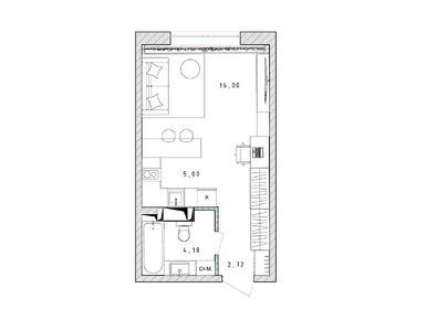
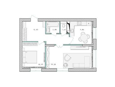
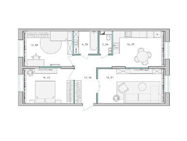
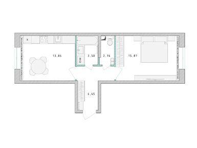
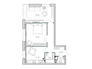
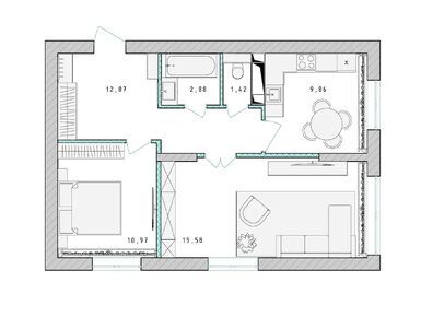
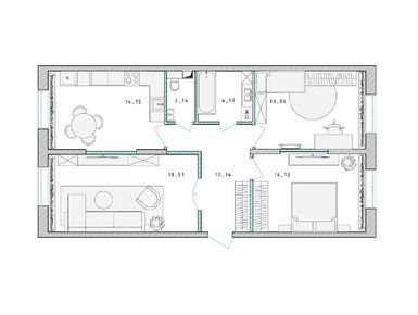
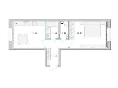
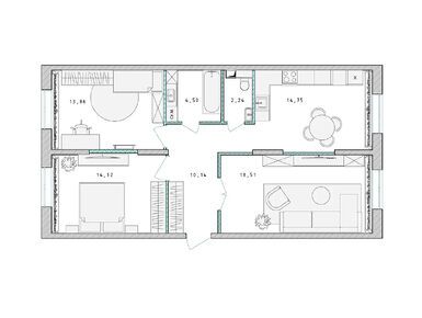
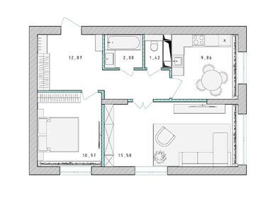
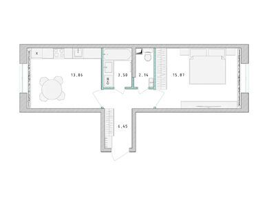
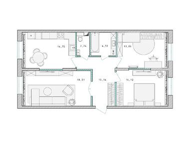
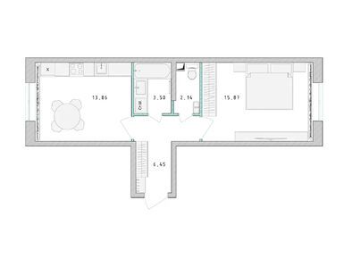
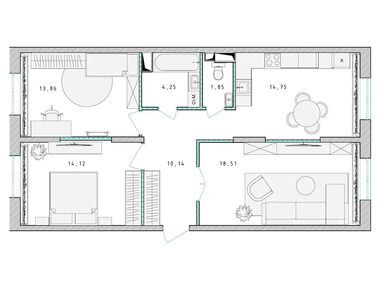
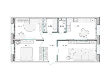
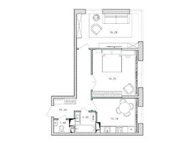
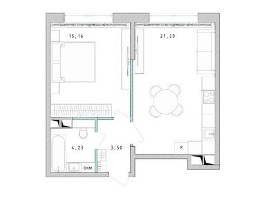
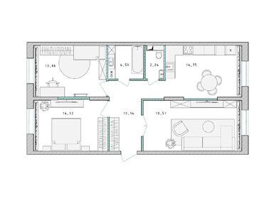
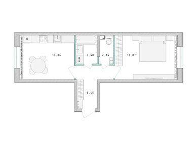
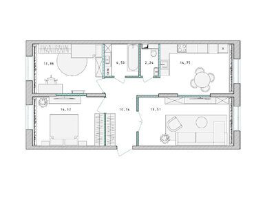
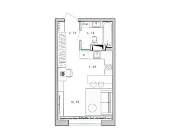
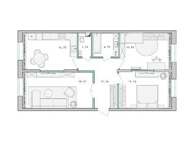
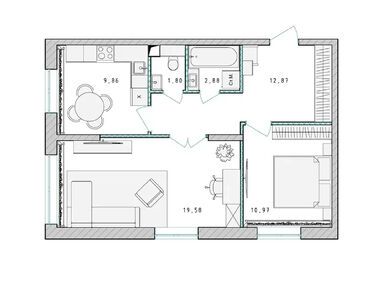
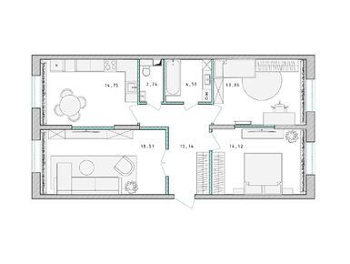
Проект уже введен в эксплуатацию. В середине июля 2025 года покупателям предложены квартиры от студий площадью 27,7 кв. м до вариантов с тремя комнатами и кухней-гостиной площадью 88 кв. м. Жилье реализуется без отделки, цены — от 3,6 млн рублей. Купить квартиру можно в ипотеку или рассрочку.
Инфраструктура
Инфраструктура первых этажей жилого комплекса представлена магазинами, пунктами выдачи заказов, салонами красоты.
Совсем рядом с ЖК «Серебро» работает торговый центр «Пулмарт» с супермаркетами «Чижик» и «Доброцен» и различными магазинами. По другую сторону Ярославского шоссе расположены строительный гипермаркет «Бауцентр» и ТРЦ «Акварель» с кинотеатром и фудкортом. Относительно недалеко есть детские сады и школы. Поблизости находятся парк Серебрянка и дендропарк.
Плюсы и минусы
ЖК «Серебро» построен в развитом районе города Пушкино, рядом есть всё необходимое для комфортной жизни. Ключи выдаются в день покупки, и после ремонта можно праздновать новоселье.
Из минусов можно отметить близость Ярославского шоссе — но оно же и гарантирует быструю дорогу до Москвы.
Метро «Медведково» → Пройти пешком 190 метров (2 минуты) → Остановка «м. Медведково» → Автобус № 774 ( 10 минут в пути) → Остановка «Платформа Лось» → Пройти пешком 270 метров (3 минуты) → Железнодорожная станция Лось → Подождать 8 минут → Проехать одну станцию (27 минут в пути) → Железнодорожная станция Пушкино → Пройти пешком 140 метров (2 минуты) → Остановка «Станция Пушкино» → Автобус № 451 (7 минут в пути) → Остановка «Ветлечебница» → Пройти пешком 440 метров (5 минут)
Метро «Медведково» → Пройти пешком 190 метров (2 минуты) → Остановка «м. Медведково» → Автобус № 172 (13 минут в пути) → Остановка «Улица Егора Абакумова» → Пройти пешком 230 метров (3 минуты) → Автобус № 451 (40 минут в пути) → Остановка «Микрорайон Серебрянка» → Пройти пешком 450 метров (5 минут)