





ЖК «Инноватор» в Москве — новостройка бизнес-класса в районе Раменки (ЗАО). Дом возводится в минуте ходьбы от станции метро «Мичуринский проспект». Рядом есть несколько крупных парков.
Надежность застройщика
Застройщик ЖК «Инноватор» — ООО СЗ «ТПУ Мичуринский проспект» — входит в группу компаний «УЭЗ». АО «УЭЗ» представлено на рынке Москвы с 1994 года. С 2017 года входит в состав участников программы реновации в Москве. В частности, в 2021 году компания ввела в эксплуатацию свыше 900 тыс. кв. метров недвижимости. Реализует квартиры в ЖК «Инноватор» компания «Мосреалстрой». Генподрядчик проекта — китайская компания China Railway Construction Corporation (CRCC).
Информация о ЖК
ЖК «Инноватор» находится на пересечении Мичуринского проспекта и ул. Удальцова, рядом — метро «Мичуринский проспект» (Солнцевская и БКЛ), что обеспечивает новостройке отличную транспортную доступность. Время в пути на автомобиле до ТТК составит 15-20 минут, до Садового кольца — 25 минут. Путь до МКАД займет 10-15 минут. На метро до «Москва-Сити» — 16 минут, добраться на общественном транспорте до центра города можно за 40 минут.
ЖК «Инноватор» — это два монолитно-кирпичных корпуса на стилобате с подземным паркингом. Высота домов — 28 этажей (+ два подземных яруса, в которых расположатся машино-места и кладовые помещения). В корпусах спроектировано 587 квартир.
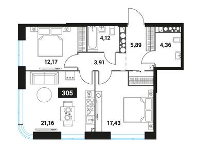
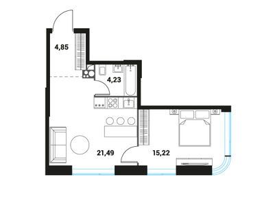
Дома будут сданы в I квартале 2025 года, более 80% квартир в них распродано. В октябре 2024 года в ЖК «Инноватор» можно купить квартиру площадью от 22 до 100 кв. метров. К продаже представлены студии, двухкомнатные и трехкомнатные квартиры евроформата. Есть лоты с мастер-спальней, дополнительным санузлом и угловым остеклением. В небольших студиях спроектированы кухня-ниша, совмещенный санузел и спальня, место для шкафа-купе. Квартиры отличаются высокими потолками (от 3,1 до 4,5 метра), наличием панорамных окон. Жилье продается без отделки.
Купить квартиру от застройщика в ЖК «Инноватор» можно по цене от 14,7 млн руб. (данные по состоянию на октябрь 2024 года).
Инфраструктура
На первых этажах жилых корпусов разместится вся необходимая инфраструктура: магазины, кафе, салоны красоты и SPA, фитнес-клуб и многое другое. В лобби будут стойки ресепшен, зоны ожидания, комнаты для хранения личных вещей, санузлы и мойки для мытья лап собак.
В подземном паркинге предусмотрены кладовые помещения. Приватный двор с ландшафтным дизайном, детскими и спортивными площадками, местами для спокойного отдыха разместится на стилобате.
Собственной социальной инфраструктуры проектом не предусмотрено. Однако в радиусе 10 минут езды от ЖК работают порядка 10 городских школ, а также частные школы. Ближайшая школа с дошкольным отделением находится в 5 минутах ходьбы от ЖК «Инноватор». На таком же расстоянии расположены 3 детских сада и ясли. До ближайшей поликлиники №209 — 6 минут пешком.
Поблизости находятся крупные зеленые зоны — долина реки Очаковки, парк Событие, парк им. 50-летия Октября, ландшафтный заказник Долина реки Раменки, парк Олимпийской деревни. Парки также обеспечивают приятные виды из окон квартир, особенно на высоких этажах.
Плюсы и минусы ЖК
Квартиры в ЖК «Инноватор» подойдут широкому кругу покупателей — и семьям с детьми, и молодым специалистам или студентам. Комплекс удобно расположен как для автомобилистов, так и для пешеходов.
Хотя в ЖК нет своих социальных объектов, расположение в Раменках как одном из наиболее комфортных районов Москвы гарантирует пешую доступность школ, детских садов и поликлиник.
Среди минусов новостройки — достаточно близкое примыкание дорог и ТПУ «Мичуринский проспект», однако тот же фактор обеспечивает дому отличную транспортную доступность.
метро «Мичуринский проспект» → Пройти пешком 350 метров (4 минуты)