Жилой комплекс бизнес-класса Ália строится в районе Покровское-Стрешнево, в 10 минутах ходьбы от станции метро «Спартак», рядом со спортивным комплексом и бизнес-парком. Покупателям предлагаются разнообразные форматы жилья — от квартир в клубных и многоквартирных домах до редких ситихаусов и городских таунхаусов. Часть проекта уже реализована. О том, что уже есть в жилом районе Ália и каким он станет через несколько лет, узнал Новострой-М.
Примечание
В статье перечислены только факты о ЖК, собранные из открытых источников. В рубрике «Экспертиза проекта» Новострой-М решил отказаться от оценок и оценочных суждений: право делать выводы из описанных фактов о жилом комплексе мы предоставляем нашим читателям.
Кто строит?
Застройщиком проекта выступает компания Asterus, которая была основана в 2018 году. Она осуществляет работу в трех направлениях — девелопмент, управление активами и развитие IT-компетенций в сфере строительства. В своей работе Asterus опирается на принципы устойчивого развития и человекоцентричности, а также использует инновации.
Свою деятельность как девелопер компания начала со спортивного комплекса «Чкалов Арена», который стал новым центром притяжения в районе Покровское-Стрешнево. Затем успешно ввела в эксплуатацию две первых очереди масштабного проекта Ália. Девелопер сотрудничает с ведущими архитектурными и ландшафтными бюро России и мира, а его финансовым партнёром выступает ПАО «Сбербанк».
Что строят?
Ália — это проект комплексной застройки участка площадью 71 га на берегу Москвы-реки в районе Покровское-Стрешнево. Жилой комплекс включает в себя 6 урбан-блоков: City 1, City 2, City 3, Park 1, Park 2 и River 1, — общий объем жилой застройки превышает 700 тыс. кв. м.
Среди них предусмотрены как высотные корпуса (башни Lighthouse, Landmark, Culture, Panorama, Gateway), так и секционные дома (до 22 этажей) и 11-этажный клубный дом.
Также в районе Ália предусмотрены объекты спортивной, образовательной, торговой и развлекательной инфраструктуры. Комплекс организован по принципу «15-минутного города», в котором всё необходимое для комфортной жизни есть в 15-минутной пешей доступности.
Недавно (в марте этого года) мы побывали на территории ЖК, и вы можете оценить ход строительства.







У жителей нового района будет собственная благоустроенная набережная протяженностью 3 км и центральный парк площадью 8 тыс. кв. м.
ЖК Ália в цифрах:
|
№ дома |
Лоты |
Энергоэффект. |
Машино-места |
Класс |
Срок ввода |
|
City 1 |
752 |
В |
366 |
Бизнес |
I кв. 2022 |
|
Park 1, City 2 |
1314 |
В |
691 |
Бизнес |
I кв. 2024 |
|
Park 2 |
582 |
В |
213 |
Бизнес |
IV кв. 2025 |
|
City 3, River 1 |
1393 |
В |
456 |
Бизнес |
II кв. 2028 |
Архитектура и дизайн
Район Ália состоит из урбан-блоков, каждый из которых включает в себя несколько разновысотных корпусов. Здесь есть как 7-этажные дома, так и башни высотой в 42 этажа, а также секционные дома, в составе которых есть даже 2-этажные секции. Архитектурная концепция проекта разработана международным бюро SOM (это авторы знаменитого небоскрёба Burj Khalifa).









Среди архитектурных особенностей новостройки можно отметить: элегантность и сдержанность зданий, использование разных по цвету и фактуре материалов для внешней отделки, фасады-хамелеоны из композитных алюминиевых панелей, увеличенную площадь остекление и панорамные окна, эксплуатируемые крыши малоэтажных домов, наличие башен-доминант, которые обрамят въезд в новый район.
В каждом урбан-блоке предусмотрено центральное лобби с дизайнерской отделкой, круглосуточным консьерж-сервисом, зоной для отдыха, общения и работы, бук-кроссингом и кофе-поинтом, детской игровой комнатой, а также функциональными помещениями для хранения корреспонденции и посылок, колясочной и гостевым санузлом.
Высота потолков в лобби достигает 4,5 м, а панорамное остекление делает пространства еще светлее и просторнее.
В лобби корпусов, как и в центральных входных группах, выполнена дизайнерская отделка с использованием премиальных материалов, эксклюзивной мебели и декора. Зонирование в лобби выполнено с помощью разных видов освещения. В каждом лобби предусмотрена лапомойка, санузел и комната для хранения детского транспорта. Кроме того, все лобби являются сквозными — резиденты смогут выйти на улицу или в приватный внутренний двор.
Благоустройство
В районе Ália благоустройство займет порядка 30 га. Здесь предусмотрено создание центрального парка, прогулочной набережной, приватных дворов внутри каждого урбан-блока.
Центральный парк уже открыт для жителей района. На площади 8 тыс. кв. м высажено множество растений, обустроены лаундж-зоны, проложены пешеходные дорожки. Главным объектом центрального парка является сухой фонтан, который зимой превращается в событийную площадь с рождественской елью.







Первые жители введенных в эксплуатацию урбан-блоков уже оценили качество и функциональность благоустройства внутренних дворов. В каждом из них предусмотрена большая игровая зона для детей с различными горками, лазалками, песочницами и необычным рельефом, спортивная зона с уличными тренажерами и воркаутом, зона для тихого отдыха и работы с лавочками и столиками.
Множество растений создают особую атмосферу во дворах. Для ухода за ними управляющая компания привлекла профессионального садовника.
Безопасность и технологии
Дома в районе Ália являются высокотехнологичными. На их подземных этажах предусмотрены вместительные паркинги с местами для автомобилей разного размера (в том числе представительского класса), с индивидуальными кладовыми помещениями и местами под мотоциклы. Для доступа в паркинг используется система распознавания автомобильных номеров. Специальные датчики контролируют степень загазованности подземного помещения. Коэффициент обеспеченности машино-местами в разных урбан-блоках составляет от 0,3 до 0,5.
Территория комплекса огорожена по периметру и закрыта для посторонних. Здесь ведется круглосуточное видеонаблюдение, установлены датчики движения и тревожные кнопки на детских площадках.
Система управления доступом позволяет резидентам заходить на территорию, в подъезды и паркинг без ключей.
Корпуса оснащены скоростными бесшумными лифтами. Также во многих секциях предусмотрены технические лоджии для размещения внешних блоков кондиционеров.
Система автоматической передачи показаний счетчиков позволяет не беспокоиться о своевременной подаче данных в ресурсоснабжающие организации.
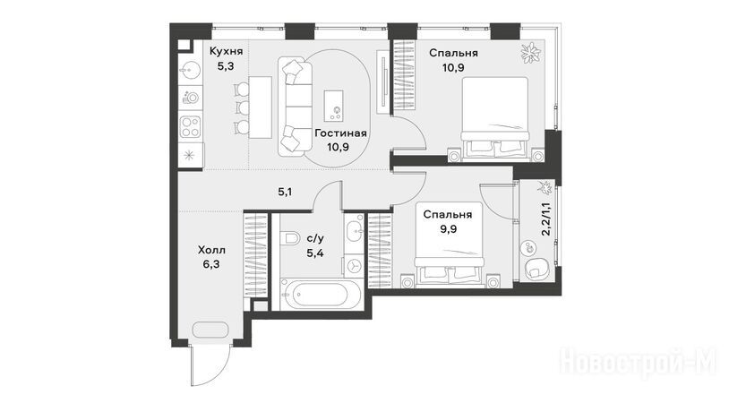
Планировки
В районе Ália покупателям предлагается 140 различных планировочных решений и максимальное разнообразие форматов жилья, способное удовлетворить самые взыскательные запросы. Здесь есть квартиры в многоэтажных корпусах и резиденции в клубных домах, роскошные пентхаусы, городские виллы (таунхаусы в составе секционных домов), ситихаусы с отдельным входом и фасадным остеклением. Высота потолков в квартирах составляет 3-4,4 м, в ситихаусах — 5,1 м.
В апреле 2025 года в продаже представлены:
Доступны для покупки несколько лотов в готовых домах с возможностью получить ключи в день сделки. Также представлен большой выбор квартир в домах, которые будут сданы в конце 2025 и в конце 2028 года.









В квартирах предусмотрены просторные кухни-гостиные, гардеробные, гостевые санузлы, просторные прихожие с нишей для встраиваемой системы хранения, мастер-спальни. Есть лоты с лоджиями, балконами, террасами, угловым остеклением, двусторонней и трехсторонней ориентацией окон, с окном в ванной или с окном в гардеробной комнате.
Таунхаусы имеют два жилых этажа, отдельный вход и эксплуатируемую крышу, на которой располагается приватное патио.
Около 50% квартир реализуется без отделки, другая половина — в состоянии white box.
Где строят?
Жилой комплекс Ália расположен в районе Покровское-Стрешнево, на полуострове, образованном Москвой-рекой, рекой Сходней и каналом им. Москвы. Когда-то эту территорию занимал аэродром Тушино, о чем напоминают названия местных улиц — Аэроклубная, Виражная, Спортивной Авиации, Летная, а также Небесный и Чкаловский бульвары.
Основной и единственной магистралью для автомобилистов здесь является Волоколамское шоссе. Удобный выезд в обе стороны позволяет не терять времени на поиск разворотов. Расстояние до МКАД чуть больше 3 км, преодолеть которые на автомобиле можно за 8 мин.
Дорога до центра занимает чуть больше времени. Доехать на автомобиле до ТТК можно за 20-25 мин., в зависимости от загруженности дорог и развязок. Путь до Садового кольца (13,5 км) занимает полчаса или 40-45 мин. в часы пик. Также около 30-35 мин. занимает дорога до ММДЦ «Москва-Сити».
Пешеходы смогут воспользоваться станцией метро «Спартак» (Таганско-Краснопресненской линии), расположенной на расстоянии менее 1 км, в 10-15 мин. ходьбы (в зависимости от удаленности конкретного урбан-блока). За 15 мин. можно дойти до станции метро «Тушинская» (та же Таганско-Краснопресненская линия) и одноименной станции МЦД-2. Кроме того, вокруг строящегося района расположены автобусные остановки. Дорога на общественном транспорте до самого сердца столицы занимает порядка 25-30 мин.
Экология
Район Покровское-Стрешнево отличается благоприятной экологической обстановкой. Он расположен в западной части столицы и со всех сторон окружен реками и заповедниками. В рейтинге EcoStandard эта локация получила 5 баллов из 10 по степени воздействия негативных факторов. Здесь слабо ощущается влияние промышленности, а невысокая плотность населения и низкий автомобильный трафик делают этот район прекрасным местом для активной жизни, занятий спортом и отдыха на природе.
Для жителей Ália предусмотрены собственные рекреационные зоны на территории комплекса — центральный парк и прогулочная набережная. Также рядом есть благоустроенный Чкаловский бульвар и экопарк «Примавера» (до него 12 мин. ходьбы). За 19 мин. можно дойти до парка Берег реки Сходня, за полчаса — до парка Долина реки Химка. Дорога до большого парка Покровское-Стрешнево на общественном транспорте займет около получаса, на личном автомобиле — 15 мин.
Большой Строгинский затон, Серебряный бор и природно-исторический парк Москворецкий жители высотных домов смогут видеть из своих окон. А чтобы доехать до этих локаций на автомобиле, потребуется порядка 25 мин.
Инфраструктура
Район Ália организован в соответствии с концепцией Work.Live.Play.Learn. Ее главный принцип состоит в том, чтобы все необходимое для жизни, работы, отдыха и развития было в 15-минутной пешей доступности.
Для спорта в составе района Ália есть масштабный комплекс «Чкалов Арена» и множество спортивных площадок, для работы — деловой центр «Ростех-Сити», для учебы — 3 школы (одна из которых, на 825 мест, уже открыта) и 4 детских сада (один, на 300 мест, уже работает), для отдыха — более 100 коммерческих объекта на территории: кафе, магазины, салоны красоты и другие сервисы, а также парк, набережная и благоустроенные дворы. Также на генплане проекта указана поликлиника рядом со спортивным комплексом.
Кроме того, жители новостройки смогут пользоваться современной инфраструктурой полуострова.
На территории микрорайона собственный детский сад в составе школы №58. В 5 мин. ходьбы находятся дошкольные отделения школы №727: «Воробей», «Теремок», «Солнечный город». Ещё два детских сада строятся в соседних кварталах. Дошкольное отделение №8 школы №830 расположено за Волоколамским шоссе, дойти до него можно за 15 мин. В 10 мин. ходьбы от нового ЖК есть частный детский сад Smile Fish.
Собственное отделение школы №58 расположено внутри микрорайона Ália, между урбан-блоками City 2 и Park 1. В 5 мин. ходьбы есть отделение школы №727, другие две школы строятся в соседних ЖК. Ещё один корпус школы №727 расположен за Волоколамским шоссе, в 18 мин. ходьбы.
В ЖК Ália уже открылась «Пятерочка», в которой можно купить товары первой необходимости. В 5 мин. ходьбы есть супермаркеты «ВкусВилл», «Магнит», «Авокадо», а также магазины формата «у дома». До торгового центра «Покровское-Стрешнево» можно дойти за 18 мин. Около 25 мин. займет пешая прогулка до ТЦ «Авиатор», ТЦ «Праздник» и ТЦ «Ладный».
Чтобы увидеть объекты, нажмите на соответствующую кнопку внизу карты:
С поликлиниками ситуация обстоит сложнее. На самом полуострове есть частные медицинские центры: «Медок» в 6-8 мин. ходьбы, «Полимед» в 8 мин. пешком, амбулатория «Апреспорт» в составе «Чкалов Арена», диагностические центры «Пикассо» и «ВитроКлиник» рядом с Волоколамским шоссе, а также несколько лабораторий.
До муниципальной поликлиники придется ехать на машине или общественном транспорте. Поликлиника №115 находится почти в 4 км. (Адрес: Врачебный пр., 10, корп. 3). Доехать до нее на машине можно за 11 мин., дорога на автобусе займет 22 мин. До поликлиники №219 можно дойти пешком за полчаса, прямого автобуса нет, большую часть путь всё равно придется пройти пешком. На автомобиле дорога займет 13 мин.
Отделения детской поликлиники №94 есть на Вишневой улице и во 2-м Тушинском проезде. До любого из них идти пешком придется не менее 32 мин., на машине можно добраться за 10-12 мин. Общественным транспортом добираться неудобно, так как большую часть пути всё равно придется идти. На метро можно доехать до детской городской поликлиники №58, расположенной по адресу: Новощукинская ул., 10, корп. 1.
Застройщик обещает, что жителям Ália будет доступно 25 видов спорта, и для этого никуда не нужно будет ехать. Широкий выбор секций для детей и взрослых предлагает спортивный центр «Чкалов Арена» (баскетбол, танцы, фигурное катание, спортивная гимнастика, единоборства и ОФП). В 10 мин. ходьбы расположен стадион «Лукойл Арена», где базируется футбольный клуб «Спартак». На территории самого ЖК уже работают студия растяжки L.A.B Space и тренажерный зал Endless Fitness. В 5 мин. ходьбы есть клуб Jumping For Your Soul, а также фитнес-клуб TS Fitness. В 10 мин. ходьбы — клуб «СДМ-Фитнес».
В пешей доступности (20-25 мин.) находятся теннисные корты и детская спортивная школа «Буревестник», там же — вейк-клубы WakeStart, Wake People River Spot и Wave Hunters, где можно научиться кататься на сап-бордах или освоить другие виды спорта на воде.
Безопасность
Полуостров в районе Покровское-Стрешнево активно застраивается и заселяется, из-за чего количество обращений в местные органы внутренних дел увеличилось на 4%. Однако в целом этот район остается спокойным и благополучным. В последнем отчете начальника МВД есть информация о том, что около половины из всех зарегистрированных на территории района преступлений были совершены не жителями Москвы, что опять же является следствием активного развития территории с привлечением рабочих из других городов и стран. По завершении строительства ситуация должна стабилизироваться.
Ближайший к ЖК Ália участковый пункт полиции находится в 1 км или 12 мин. ходьбы (рядом с Волоколамским шоссе). Расстояние до ОВД по району покровское-Стрешнево составляет 2,5 км — полчаса пешком или 7 мин. на машине.
Цены и способы покупки
Старт продаж квартир в Ália состоялся в октябре 2019 года, тогда войти в проект можно было с минимальными вложениями от 6,3 млн рублей.
Купить недвижимость в проекте Ália в апреле 2025 года можно по цене от 12,4 млн руб. За эту цену продается 23-метровая студия без ремонта на 2 этаже в урбан-блоке City 3, который будет готов к концу 2028 года. Самая доступная из двухкомнатных квартир обойдется в 22 млн. Это «двушка» площадью 54,4 кв. м., с большой кухней-гостиной, лоджией и угловым остеклением на 4 этаже в урбан-блоке City 3. Стоимость трехкомнатных квартир начинается от 37,6 млн. руб. А самый дорогой лот из имеющихся в продаже — это двухуровневый таунхаус с отдельным входом и патио на крыше. Его площадь — 163,4 кв. м., а стоимость — 86,6 млн руб.
Актуальные цены в ЖК Ália:
|
Тип жилья |
Метраж, кв. м |
Цена, руб. |
Цена за кв. м, тыс. руб. |
|
студии |
25.00 — 30.00 |
17 109 792 — 19 499 600 |
633.7 — 748.8 |
|
1-комнатные |
34.00 — 90.00 |
22 648 500 — 42 419 522 |
471.3 — 740.7 |
|
2-комнатные |
49.00 — 79.90 |
28 911 390 — 47 319 648 |
511.7 — 704.3 |
|
3-комнатные |
79.00 — 169.00 |
48 650 625 — 96 861 050 |
534 — 905 |
|
4-комнатные |
103.00 — 113.00 |
65 946 375 — 86 866 800 |
605 — 768.7 |
|
многокомнатные |
141.00 |
90 410 360 |
641.2 |
Цены на недвижимость указаны с учетом скидки от застройщика. Она распространяется на выделенный пул квартир и составляет от 13% до 22% при условии покупки по 100% предоплате или оформлении ипотеки без субсидий.
Партнерами проекта являются десятки российских банков. Они предлагают кредит с минимальной ставкой от 6% годовых (субсидированные программы и программы с господдержкой) на срок до 30 лет. Ставки по стандартным ипотечным программам начинаются от 22,3% годовых. Действуют специальные условия приобретения жилья для семей с детьми, военных и IT-специалистов.
Покупатели также могут оформить рассрочку на индивидуальных условиях в зависимости от выбранного лота и срока сдачи дома. Взять в рассрочку можно в том числе и квартиры в готовых домах, ключи выдаются при условии внесения не менее 40% от стоимости недвижимости.
Данные об условиях кредитования действительны на момент публикации статьи. Актуальную информацию вы всегда можете найти в карточке проекта.
Конкуренты
Покровское-Стрешнево — район, который может предложить покупателям широкий выбор недвижимости в современных жилых комплексах комфорт и бизнес-класса. Ближайшими конкурентами для жилого района Ália являются Клубный город на реке Primavera и ЖК Holland park.
Как и Ália, они имеют прибрежное расположение, похожий уровень транспортной доступности и обеспеченности инфраструктурой, однако у каждого проекта есть свои особенности.
Клубный город на реке Primavera располагается на первой линии Москвы-реки вдоль одноименного экопарка. Застройщиком проекта выступает ООО «СЗ «Стадион «Спартак», он уже успешно сдал две 22-этажные секции корпуса Rossini. Сейчас ведется строительство еще двух кварталов — Vivaldi (срок сдачи намечен на II квартал 2025 года) и Bellini (сдается в 2028 году). Здесь можно отметить, что и сроки готовности пересекаются с проектом Ália. В Клубном городе Primavera покупателям предлагаются видовые квартиры площадью от 40 до 210 кв. м., с количеством спален от 1 до 5. Среди лотов есть варианты с угловым остеклением, квартиры на первом этаже с собственным патио и отдельным входом, двухуровневые квартиры и квартиры с террасами. Цены на недвижимость варьируются от 23 до 167 млн руб.
Актуальные цены в ЖК Primavera:
|
Тип жилья |
Метраж, кв. м |
Цена, руб. |
Цена за кв. м, тыс. руб. |
|
1-комнатные |
40.60 — 101.60 |
26 252 800 — 78 689 200 |
586 — 947.5 |
|
2-комнатные |
63.10 — 139.60 |
37 071 250 — 122 415 240 |
586 — 1040.7 |
|
3-комнатные |
74.70 — 171.60 |
43 774 200 — 135 323 760 |
586 — 940.6 |
|
4-комнатные |
142.90 — 185.10 |
117 821 050 — 175 377 650 |
768 — 948.5 |
|
многокомнатные |
209.20 — 344.80 |
189 430 600 — 386 382 880 |
905.5 — 1120.6 |
ЖК Holland park — проект ПИК на второй линии от Москвы-реки. Проектом предусмотрена поквартальная застройка участка домами высотой от 12 до 24 этажей. Часть домов уже введена в эксплуатацию и заселена. В продаже есть квартиры «с ключами» и квартиры в строящихся корпусах, которые будут сдаваться в I квартале 2026 года. В проекте предлагаются квартиры разного формата — от 22-метровых студий до трехкомнатных квартир площадью 91 кв. м. Есть варианты с угловым остеклением, французскими балконами, высокими потолками, мастер-спальнями, гардеробными, постирочными и несколькими санузлами. Все помещения передаются собственникам без отделки. Стоимость недвижимости — от 10,7 до 36 млн руб. Важным преимуществом проекта является богатая внутренняя инфраструктура, собственные детские сады и школы, а также благоустроенные дворы-парки.
Актуальные цены в ЖК Holland park:
|
Тип жилья |
Метраж, кв. м |
Цена, руб. |
Цена за кв. м, тыс. руб. |
|
1-комнатные |
35.00 — 40.60 |
22 172 500 — 25 563 540 |
559.1 — 642.3 |
|
2-комнатные |
52.90 — 57.90 |
27 992 044 — 31 772 130 |
483.5 — 596.1 |
|
3-комнатные |
73.40 — 88.70 |
34 740 220 — 41 360 810 |
441.2 — 477.2 |
Резюме
Жилой район Ália — проект, учитывающий интересы разных категорий покупателей: амбициозных бизнесменов, семей с детьми, молодых пар без детей, приверженцев активного образа жизни, а также инвесторов. Выделить главное преимущество жилого комплекса сложно, он обладает рядом привлекательных особенностей:
Застройщик начал обустраивать эту локацию с создания здесь общественно-значимых объектов — спортивного комплекса и бизнес-парка, что сделало новый жилой комплекс ещё более привлекательным. Социальные объекты также возводятся параллельно с жилыми корпусами, а темпы строительства позволяют получить готовое жильё в течение одного-трех лет.
Дата публикации 08 апреля