Рейтинг@Mail.ru
Переверните экран
Новостройки Квартиры Ипотека Новостройки Москвы Новостройки Подмосковья Новостройки Новой Москвы Готовые новостройки Новостройки на карте Акции от застройщиков Коммерческие помещения Продавцы и застройщики Панорамы новостроек Видеообзор новостроек Экспертиза новостроек Экология Москвы и Подмосковья Студии 1-комнатные 2-комнатные 3-комнатные Квартиры на карте Ипотечный калькулятор Семейная ипотека Военная ипотека Банки и программы Медиа Новости недвижимости Мнение эксперта Аналитика рынка Покупателю Экспертиза новостроек Эксперты и авторы О проекте Контакты Реклама на сайте Vk Youtube Telegram Дзен Машиноместа Апартаменты #траншевая ипотека #рассрочка IT-ипотека Квартиры со скидками до 40% Видео 360° новостроек Субсидированная застройщиком Rutube Поиск дома в Москве Программа реновации в Москве Новостройки премиум-класса Новостройки бизнес-класса Рассрочка Траншевая ипотека ГАЛС Дома и коттеджи Бизнес-центры Бизнес-центры в Москве Бизнес-центры рядом с метро Строящиеся бизнес-центры Бизнес-центры класса A Бизнес-центры класса B ЛСР

Жилой дом «3-я Прядильная ул., з/у 10»

Новый дом построят по Программе реновации и введут в эксплуатацию в 2027 году.

Участникам Программы реновации передано 194 квартиры, в том числе 43 студий, 70 однокомнатных, 59 двухкомнатных и 22 трехкомнатных. Этажность варьируется от 12 до 17 этажей. Во всех квартирах высота потолка достигает 2.69 м, увеличены оконные проемы, остеклены балконы и лоджии, на фасаде дома установлены блоки-корзины под кондиционеры. Квартиры сданы с чистовой отделкой под ключ.

В холле расположены колясочная, установлены современные лифты высокой грузоподъемности. Вход в здание сквозной, на две стороны и находится на уровне земли так же, как и пол вестибюля и зоны лифта.

В доме устроен подземный паркинг вместимостью 39 машино-мест. Во дворе сделаны детская и спортивная площадки, установлены камеры видеонаблюдения, создано освещение. Двор озеленен.

Москва, ВАО, Измайлово
от 10 до 24.1 млн
 
Цены за квартиры от 5 декабря
по данным официального сайта
Звоните, мы ещё работаем!
Зафиксировать цену
Фотографии
1

Жилой дом «3-я Прядильная ул., з/у 10» - цены за квартиры от застройщика 5 декабря

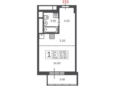
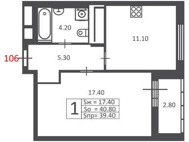
1-комнатные
29.90 — 48.50 м2
10 — 17.1  млн руб.
2-комнатные
57.90 — 64.60 м2
18.1 — 20.6  млн руб.
3-комнатные
76.80 — 79.30 м2
23.1 — 24.1  млн руб.

Расположение

Регион Москва
Округ ВАО
Район Измайлово
Метро
Адрес
3-я Прядильная ул., з/у 10
на карте

Характеристики

Застройщик
Тип здания
Этажность
12 — 17
Высота потолка
2.69
Рейтинг
3.9

Подробная информация

Новый дом построят по Программе реновации и введут в эксплуатацию в 2027 году.

Участникам Программы реновации передано 194 квартиры, в том числе 43 студий, 70 однокомнатных, 59 двухкомнатных и 22 трехкомнатных. Этажность варьируется от 12 до 17 этажей. Во всех квартирах высота потолка достигает 2.69 м, увеличены оконные проемы, остеклены балконы и лоджии, на фасаде дома установлены блоки-корзины под кондиционеры. Квартиры сданы с чистовой отделкой под ключ.

В холле расположены колясочная, установлены современные лифты высокой грузоподъемности. Вход в здание сквозной, на две стороны и находится на уровне земли так же, как и пол вестибюля и зоны лифта.

В доме устроен подземный паркинг вместимостью 39 машино-мест. Во дворе сделаны детская и спортивная площадки, установлены камеры видеонаблюдения, создано освещение. Двор озеленен.

Задать вопрос
Выбирайте квартиру в Жилом доме «3-я Прядильная ул., з/у 10» по ценам от застройщика Фонд реновации.
Этаж 6/17
Москва, Жилой дом «3-я Прядильная ул., з/у 10»
Измайловская
15 мин.
Строится
Этаж 14/17
Москва, Жилой дом «3-я Прядильная ул., з/у 10»
Измайловская
15 мин.
Строится
Этаж 17/17
Москва, Жилой дом «3-я Прядильная ул., з/у 10»
Измайловская
15 мин.
Строится
Этаж 17/17
Москва, Жилой дом «3-я Прядильная ул., з/у 10»
Измайловская
15 мин.
Строится
Посмотреть 53 квартиры в Жилом доме «3-я Прядильная ул., з/у 10»
Этаж 4/17
Москва, Жилой дом «3-я Прядильная ул., з/у 10»
Измайловская
15 мин.
Строится
Этаж 16/17
Москва, Жилой дом «3-я Прядильная ул., з/у 10»
Измайловская
15 мин.
Строится
Этаж 4/17
Москва, Жилой дом «3-я Прядильная ул., з/у 10»
Измайловская
15 мин.
Строится
Этаж 14/17
Москва, Жилой дом «3-я Прядильная ул., з/у 10»
Измайловская
15 мин.
Строится
Посмотреть 29 квартир в Жилом доме «3-я Прядильная ул., з/у 10»
Этаж 6/17
Москва, Жилой дом «3-я Прядильная ул., з/у 10»
Измайловская
15 мин.
Строится
Этаж 5/17
Москва, Жилой дом «3-я Прядильная ул., з/у 10»
Измайловская
15 мин.
Строится
Посмотреть 9 квартир в Жилом доме «3-я Прядильная ул., з/у 10»
Жилой дом «3-я Прядильная ул., з/у 10»
Рассказать друзьям о Жилом доме «3-я Прядильная ул., з/у 10»
Копировать ссылку

Скидки и акции на новостройки Москвы

Посмотреть все спецпредложения

Жилой дом «3-я Прядильная ул., з/у 10» на карте

Застройщик Фонд реновации

Сданных
объектов
207
Строящихся
объектов
9
Рейтинг
Новострой-М
4
Сданных
вовремя
100%
Все новостройки застройщика

Отзывы о Жилом доме «3-я Прядильная ул., з/у 10»

Будьте первым, кто оставит отзыв
о Жилой дом «3-я Прядильная ул., з/у 10»
Добавьте отзыв, заполнив личные данные, или сначала войдите на сайт, тогда информация будет автоматически взята из личного профиля.
Оценка*

Вопросы и ответы о Жилом доме «3-я Прядильная ул., з/у 10»

Будьте первым, кто задаст вопрос
Задать вопрос
Напишие свой вопрос ниже — заполнив личные данные или войдите на сайт, тогда информация будет автоматически взята из личного профиля.